













Book your tour. Save an average of $18,473. We'll handle the rest.
- Confirmed tours
- Get matched & compare top deals
- Expert help, no pressure
- No added fees
Estimated value based on Jome data, T&C apply
- 4 bd
- 3.5 ba
- 3,305 sqft
3904 Seafood Rd, Awendaw, SC 29429
Why tour with Jome?
- No pressure toursTour at your own pace with no sales pressure
- Expert guidanceGet insights from our home buying experts
- Exclusive accessSee homes and deals not available elsewhere
Jome is featured in
- Single-Family
- Quick move-in
- $487.74/sqft
- $1,200/annual HOA
Home description
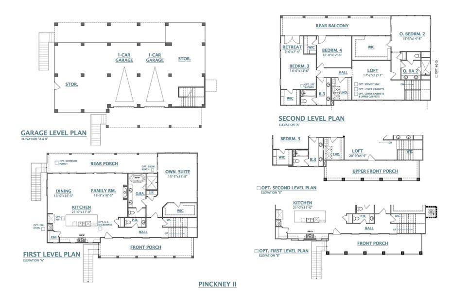
Welcome to the Pinckney! This 4 bedroom coastal oasis offers over 3,200 square feet of luxury. The main living level offers an expansive front porch overlooking the stunning Copahee Sound marsh. The kitchen features an oversized island and chef's dream with conveniences like an under counter microwave, plenty of cabinet space, and upgraded features throughout. The open concept kitchen, dining, and great room lead onto a massive rear screened porch to enjoy the lowcountry's natural beauty. First floor primary suite offers a retreat from reality with a freestanding tub and large shower. Not one, but two large walk-in closets! Upstairs you'll find the three additional bedrooms and spacious loft, perfect for a media area or game room. PLUS an additional balcony with access from all three bedrooms and loft! Tour the Pinckney today! Interior photography of similar homes.
May also be listed on the Dream Finders Homes website
Information last verified by Jome: Monday at 6:01 AM (November 10, 2025)
Home highlights
Busy deep-water port driving Charleston’s economy with global shipping, cruise access, and job opportunities.
Book your tour. Save an average of $18,473. We'll handle the rest.
We collect exclusive builder offers, book your tours, and support you from start to housewarming.
- Confirmed tours
- Get matched & compare top deals
- Expert help, no pressure
- No added fees
Estimated value based on Jome data, T&C apply
Home details
- Property status:
- Move-in ready
- Lot width (feet):
- 40
- Size:
- 3,305 sqft
- Stories:
- 3+
- Beds:
- 4
- Baths:
- 3
- Half baths:
- 1
- Garage spaces:
- 3
Construction details
- Builder Name:
- Dream Finders Homes
Home features & finishes
- Garage/Parking:
- GarageAttached Garage
- Interior Features:
- Walk-In ClosetFoyerPantry
- Laundry facilities:
- Utility/Laundry Room
- Property amenities:
- Porch
- Rooms:
- KitchenPowder RoomFamily RoomOpen Concept Floorplan

Community details
Overlook at Copahee Sound
by Dream Finders Homes, Awendaw, SC
- 4 homes
- 3,305 - 3,305 sqft
View Overlook at Copahee Sound details
More homes in Overlook at Copahee Sound
About the builder - Dream Finders Homes
Neighborhood
Home address
- City:
- Awendaw
- County:
- Charleston
- Zip Code:
- 29429
Schools in Charleston County School District
- Grades PK-12Privatepalmetto christian academy1.0 mi1223 beck drna
GreatSchools’ Summary Rating calculation is based on 4 of the school’s themed ratings, including test scores, student/academic progress, college readiness, and equity. This information should only be used as a reference. Jome is not affiliated with GreatSchools and does not endorse or guarantee this information. Please reach out to schools directly to verify all information and enrollment eligibility. Data provided by GreatSchools.org © 2025
Places of interest
Getting around
Air quality
Noise level
A Soundscore™ rating is a number between 50 (very loud) and 100 (very quiet) that tells you how loud a location is due to environmental noise.
Natural hazards risk
Climate hazards can impact homes and communities, with risks varying by location. These scores reflect the potential impact of natural disasters and climate-related risks on Charleston County
Provided by FEMA

Considering this home?
Our expert will guide your tour, in-person or virtual
Need more information?
Text or call (888) 486-2818
Financials
Estimated monthly payment
Similar homes nearby
Recently added communities in this area
Nearby communities in Awendaw
New homes in nearby cities
More New Homes in Awendaw, SC
- Home
- New homes
- South Carolina
- Charleston Metropolitan Area
- Charleston County
- Awendaw
- Overlook at Copahee Sound
- 3904 Seafood Rd, Awendaw, SC 29429
































