














Book your tour. Save an average of $18,473. We'll handle the rest.
- Confirmed tours
- Get matched & compare top deals
- Expert help, no pressure
- No added fees
Estimated value based on Jome data, T&C apply



























Why tour with Jome?
- No pressure toursTour at your own pace with no sales pressure
- Expert guidanceGet insights from our home buying experts
- Exclusive accessSee homes and deals not available elsewhere
Jome is featured in
- Single-Family
- Quick move-in
- $152.38/sqft
- $400/annual HOA
Home description
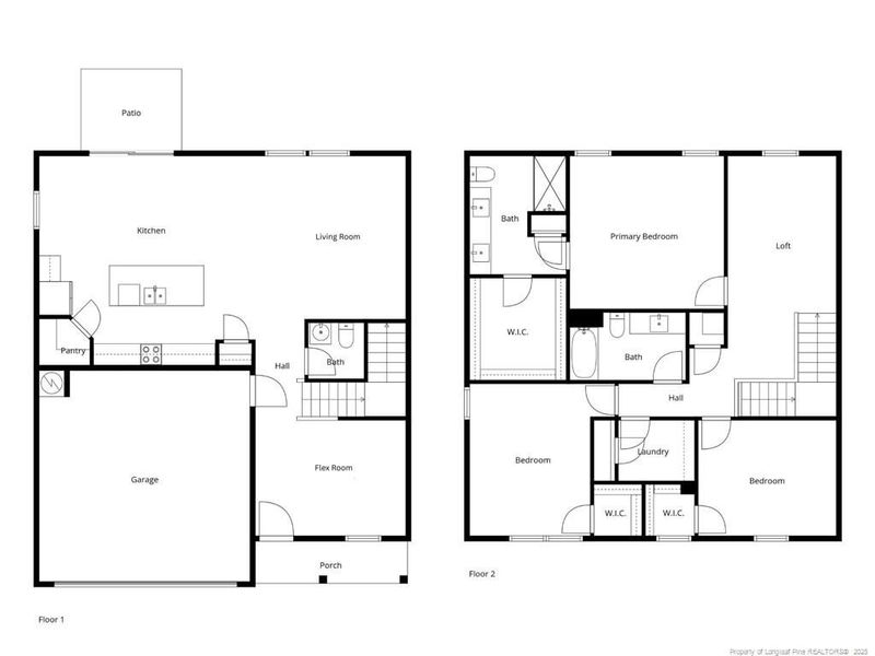
Sellers offering a $4,000 use as you choose credit to Buyers with an acceptable offer! PLUS a transferable home warranty for extra peace of mind! Welcome to this beautiful home featuring three spacious bedrooms, a versatile first-floor flex space, and an upstairs loft! The first floor boasts an open-concept design, complete with LVP flooring in wet areas, a convenient half bath, and a stylish kitchen that flows seamlessly into the casual dining area and family room—perfect for entertaining! The kitchen is a true highlight with crisp white cabinetry, granite countertops, and a large center island. Upstairs, you’ll find a versatile loft area- perfect for a second living space or playroom, along with three bedrooms and two full bathrooms. The primary suite offers a spacious retreat with a large walk-in closet and a private bathroom featuring a walk-in shower. This beauty is nestled in a peaceful cul-de-sac and also minutes from downtown Angier. Don't wait! Schedule your showing today!
KELLER WILLIAMS REALTY (FAYETTEVILLE), MLS LP751076
May also be listed on the Starlight Homes website
Information last verified by Jome: Today at 4:17 AM (December 30, 2025)
Home highlights
Raleigh’s premier arena hosting NHL games, concerts, and events near NC State and suburban neighborhoods.
Book your tour. Save an average of $18,473. We'll handle the rest.
We collect exclusive builder offers, book your tours, and support you from start to housewarming.
- Confirmed tours
- Get matched & compare top deals
- Expert help, no pressure
- No added fees
Estimated value based on Jome data, T&C apply
Home details
- Property status:
- Move-in ready
- Lot size (acres):
- 0.19
- Size:
- 2,165 sqft
- Stories:
- 2
- Beds:
- 3
- Baths:
- 2.5
- Garage spaces:
- 2
Construction details
- Builder Name:
- Starlight Homes
- Year Built:
- 2023
Home features & finishes
- Construction Materials:
- Vinyl SidingBrick
- Flooring:
- Vinyl FlooringCarpet FlooringTile FlooringHardwood Flooring
- Foundation Details:
- Slab
- Garage/Parking:
- Car CarportGarageAttached Garage
- Kitchen:
- DishwasherMicrowave OvenRefrigeratorGranite countertopKitchen IslandKitchen Range
- Laundry facilities:
- Laundry Facilities On Upper Level
- Property amenities:
- Cul-de-sacBasementLandscapingWalk-in ShowerPatioPorch
- Rooms:
- Open Concept Floorplan

Get a consultation with our New Homes Expert
- See how your home builds wealth
- Plan your home-buying roadmap
- Discover hidden gems
Utility information
- Heating:
- Electric Heating, Heat Pump, Zoned Heating, Water Heater

Community details
Lynn Ridge
by Starlight Homes, Angier, NC
- 1 home
- 2,165 - 2,165 sqft
View Lynn Ridge details
Community amenities
- Waterfront Lots
About the builder - Starlight Homes
Neighborhood
Home address
Schools in Harnett County Schools
GreatSchools’ Summary Rating calculation is based on 4 of the school’s themed ratings, including test scores, student/academic progress, college readiness, and equity. This information should only be used as a reference. Jome is not affiliated with GreatSchools and does not endorse or guarantee this information. Please reach out to schools directly to verify all information and enrollment eligibility. Data provided by GreatSchools.org © 2025
Places of interest
Getting around
Noise level
A Soundscore™ rating is a number between 50 (very loud) and 100 (very quiet) that tells you how loud a location is due to environmental noise.
Natural hazards risk
Climate hazards can impact homes and communities, with risks varying by location. These scores reflect the potential impact of natural disasters and climate-related risks on Harnett County
Provided by FEMA

Considering this home?
Our expert will guide your tour, in-person or virtual
Need more information?
Text or call (888) 486-2818
Financials
Estimated monthly payment
Let us help you find your dream home
How many bedrooms are you looking for?
Similar homes nearby
Recently added communities in this area
Nearby communities in Angier
New homes in nearby cities
More New Homes in Angier, NC
KELLER WILLIAMS REALTY (FAYETTEVILLE), MLS LP751076
© 2025 Doorify MLS, Inc. of North Carolina. All rights reserved. Brokers make an effort to deliver accurate information, but buyers should independently verify any information on which they will rely in a transaction. The listing broker shall not be responsible for any typographical errors, misinformation, or misprints, and they shall be held totally harmless from any damages arising from reliance upon this data. This data is provided exclusively for consumers’ personal, non-commercial use. Some IDX listings have been excluded from this IDX display. Closed (sold) listings may have been listed and/or sold by a real estate firm other than the firm(s) featured on this website. Closed data is not available until the sale of the property is recorded in the MLS. Home sale data is not an appraisal, CMA, competitive or comparative market analysis, or home valuation of any property. Listings marked with an icon are provided courtesy of the Doorify MLS, Inc. of North Carolina, Internet Data Exchange Database.
Read moreLast checked Dec 30, 7:41 pm
- Jome
- New homes search
- North Carolina
- Raleigh-Durham Area
- Harnett County
- Angier
- Lynn Ridge
- 28 White Hart Ct, Angier, NC 27501





























