



Book your tour. Save an average of $18,473. We'll handle the rest.
We collect exclusive builder offers, book your tours, and support you from start to housewarming.
- Confirmed tours
- Get matched & compare top deals
- Expert help, no pressure
- No added fees
Estimated value based on Jome data, T&C apply


Why tour with Jome?
- No pressure toursTour at your own pace with no sales pressure
- Expert guidanceGet insights from our home buying experts
- Exclusive accessSee homes and deals not available elsewhere
Jome is featured in
- Single-Family
- Ready by June 2026
- $154.23/sqft
- $600/annual HOA
Home description
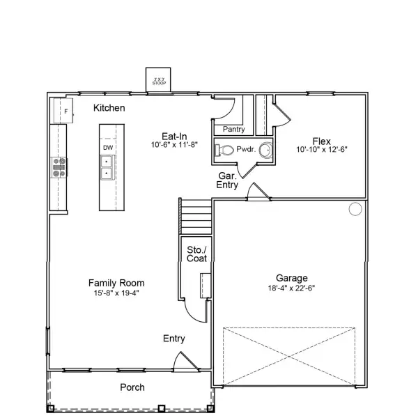
Space and flexibility come together seamlessly in the McDowell.
Designed for how people actually live today, the McDowell offers four bedrooms, two-and-a-half baths, and multiple flex spaces that provide versatility without sacrificing flow. The main level features a bright, open-concept layout where the kitchen, dining, and living areas connect naturally around a large center island--perfect for everyday living and entertaining. A main-level flex room adds even more options for a home office, playroom, or additional living space.
Upstairs continues to impress with a spacious loft and an additional flex area ideal for a media room, workspace, or second living area. All four bedrooms are located on the upper level, creating a thoughtful separation between living and private spaces. Set on a flat, wooded homesite just over half an acre, this property offers privacy and outdoor space that's both usable and inviting--a combination that's increasingly hard to find. With its generous layout and flexible design, this is a home you truly need to see in person to appreciate.
May also be listed on the Mungo Homes website
Information last verified by Jome: Today at 5:51 AM (April 30, 2026)
Book your tour. Save an average of $18,473. We'll handle the rest.
We collect exclusive builder offers, book your tours, and support you from start to housewarming.
- Confirmed tours
- Get matched & compare top deals
- Expert help, no pressure
- No added fees
Estimated value based on Jome data, T&C apply
Home details
- Property status:
- Under construction
- Size:
- 2,255 sqft
- Stories:
- 2
- Beds:
- 4
- Baths:
- 2
- Half baths:
- 1
- Garage spaces:
- 2
Construction details
- Builder Name:
- Mungo Homes
- Completion Date:
- June, 2026
Home features & finishes
- Garage/Parking:
- Garage
- Rooms:
- Primary Bedroom Upstairs

Get a consultation with our New Homes Expert
- See how your home builds wealth
- Plan your home-buying roadmap
- Discover hidden gems

Community details
Cambridge Reserve
by Mungo Homes, Angier, NC
- 10 homes
- 10 plans
- 1,017 - 2,771 sqft
View Cambridge Reserve details
More homes in Cambridge Reserve
- Home at address 78 Osgood St, Angier, NC 27501

McDowell
$345,000
- 4 bd
- 2.5 ba
- 2,255 sqft
78 Osgood St, Angier, NC 27501
- Home at address 67 Bainbridge Ct, Angier, NC 27501

Russell
$385,000
- 4 bd
- 3 ba
- 2,519 sqft
67 Bainbridge Ct, Angier, NC 27501
- Home at address 83 Lowell Cv, Angier, NC 27501

Russell
$405,384
- 4 bd
- 3 ba
- 2,557 sqft
83 Lowell Cv, Angier, NC 27501
Floor plans in Cambridge Reserve
- View details for Guilford - Genesis Value Collection

Guilford - Genesis Value Collection
$305,000+- 4 bd
- 2.5 ba
- 1,772 sqft
- View details for McDowell - Genesis Value Collection

McDowell - Genesis Value Collection
$319,000+- 4 bd
- 2.5 ba
- 2,218 sqft
About the builder - Mungo Homes
Neighborhood
Home address
Schools in Harnett County Schools
GreatSchools’ Summary Rating calculation is based on 4 of the school’s themed ratings, including test scores, student/academic progress, college readiness, and equity. This information should only be used as a reference. Jome is not affiliated with GreatSchools and does not endorse or guarantee this information. Please reach out to schools directly to verify all information and enrollment eligibility. Data provided by GreatSchools.org © 2025
Places of interest
Getting around

Considering this home?
Our expert will guide your tour, in-person or virtual
Need more information?
Text or call (888) 545-5198
Financials
Estimated monthly payment
Let us help you find your dream home
How many bedrooms are you looking for?
Similar homes nearby
Recently added communities in this area
Nearby communities in Angier
New homes in nearby cities
More New Homes in Angier, NC
- Jome
- New homes search
- North Carolina
- Raleigh-Durham Area
- Harnett County
- Angier
- Cambridge Reserve
- 263 Bunker Hill Pl, Angier, NC 27501




























