









Book your tour. Save an average of $18,473. We'll handle the rest.
We collect exclusive builder offers, book your tours, and support you from start to housewarming.
- Confirmed tours
- Get matched & compare top deals
- Expert help, no pressure
- No added fees
Estimated value based on Jome data, T&C apply


















Why tour with Jome?
- No pressure toursTour at your own pace with no sales pressure
- Expert guidanceGet insights from our home buying experts
- Exclusive accessSee homes and deals not available elsewhere
Jome is featured in
- Single-Family
- Quick move-in
- $145.33/sqft
- $88/monthly HOA
Home description
May also be listed on the Meritage Homes website
Information last verified by Jome: Today at 2:33 AM (April 22, 2026)
Book your tour. Save an average of $18,473. We'll handle the rest.
We collect exclusive builder offers, book your tours, and support you from start to housewarming.
- Confirmed tours
- Get matched & compare top deals
- Expert help, no pressure
- No added fees
Estimated value based on Jome data, T&C apply
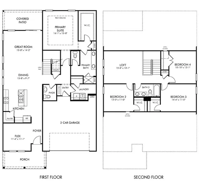
Home details
- Property status:
- Move-in ready
- Size:
- 2,448 sqft
- Stories:
- 2
- Beds:
- 4
- Baths:
- 2
- Half baths:
- 1
- Garage spaces:
- 2
- HERS index:
- 61
Construction details
- Builder Name:
- Meritage Homes
Home features & finishes
- Garage/Parking:
- Garage
- Interior Features:
- Blinds
- Kitchen:
- Dishwasher
- Laundry facilities:
- Washer
- Rooms:
- Attic

Get a consultation with our New Homes Expert
- See how your home builds wealth
- Plan your home-buying roadmap
- Discover hidden gems
Utility information
- Utilities:
- HVAC

Community details
Buffalo Ridge
by Meritage Homes, Newton, NC
- 25 homes
- 1,710 - 3,237 sqft
View Buffalo Ridge details
More homes in Buffalo Ridge
- Home at address 1436 Wildflower St, Newton, NC 28658

Lennon
Savings$311,880
- 4 bd
- 2.5 ba
- 1,932 sqft
1436 Wildflower St, Newton, NC 28658
- Home at address 2073 Sunflower Cir, Newton, NC 28658

Rockwell
Savings$339,130
- 4 bd
- 3 ba
- 2,165 sqft
2073 Sunflower Cir, Newton, NC 28658
- Home at address 1445 Wildflower St, Newton, NC 28658

Lennon
Savings$339,880
- 4 bd
- 2.5 ba
- 1,932 sqft
1445 Wildflower St, Newton, NC 28658
- Home at address 2111 Sunflower Cir, Newton, NC 28658

Dakota
Savings$343,780
- 4 bd
- 2.5 ba
- 2,491 sqft
2111 Sunflower Cir, Newton, NC 28658
- Home at address 0016 Tbd, Newton, NC 28658

Dakota
Savings$349,280
- 4 bd
- 2.5 ba
- 2,491 sqft
0016 Tbd, Newton, NC 28658
- Home at address 2067 Sunflower Cir, Newton, NC 28658

Home
Savings$355,780
- 4 bd
- 2.5 ba
- 2,448 sqft
2067 Sunflower Cir, Newton, NC 28658
About the builder - Meritage Homes

- 313communities on Jome
- 7,039homes on Jome
Neighborhood
Home address
Schools in Newton-Conover City Schools
GreatSchools’ Summary Rating calculation is based on 4 of the school’s themed ratings, including test scores, student/academic progress, college readiness, and equity. This information should only be used as a reference. Jome is not affiliated with GreatSchools and does not endorse or guarantee this information. Please reach out to schools directly to verify all information and enrollment eligibility. Data provided by GreatSchools.org © 2025
Places of interest
Getting around
Air quality
Noise level
A Soundscore™ rating is a number between 50 (very loud) and 100 (very quiet) that tells you how loud a location is due to environmental noise.

Considering this home?
Our expert will guide your tour, in-person or virtual
Need more information?
Text or call (888) 545-5198
Financials
Estimated monthly payment
Let us help you find your dream home
How many bedrooms are you looking for?
Similar homes nearby
Recently added communities in this area
Nearby communities in Newton
New homes in nearby cities
More New Homes in Newton, NC
- Jome
- New homes search
- North Carolina
- Charlotte Metropolitan Area
- Catawba County
- Newton
- Buffalo Ridge
- 0113 Tbd, Newton, NC 28658



























