









Book your tour. Save an average of $18,473. We'll handle the rest.
We collect exclusive builder offers, book your tours, and support you from start to housewarming.
- Confirmed tours
- Get matched & compare top deals
- Expert help, no pressure
- No added fees
Estimated value based on Jome data, T&C apply






Why tour with Jome?
- No pressure toursTour at your own pace with no sales pressure
- Expert guidanceGet insights from our home buying experts
- Exclusive accessSee homes and deals not available elsewhere
Jome is featured in
- Single-Family
- Ready by August 2026
- $206.11/sqft
- 17 days on Jome
Home description
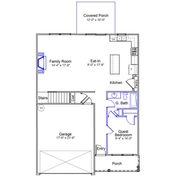
This two-story Meriwether home has four bedrooms, three bathrooms, and a large open loft space upstairs. There's also a guest bedroom with a full bathroom on the main level. The kitchen features an island with beautiful pendants, stainless steel appliances, and a gas range. The great room flows seamlessly into the kitchen and boasts an eye-catching fireplace. Step upstairs to a large open loft space that can be used as an additional living space for entertaining. The spacious primary bedroom features an ensuite bathroom with a garden tub and separate tile shower, dual sinks, and a spacious walk-in closet that leads to the laundry. Two additional bedrooms share a bathroom, completing this functional home. Lastly, enjoy outdoor living on the rear covered porch!
May also be listed on the Mungo Homes website
Information last verified by Jome: Today at 5:54 AM (April 26, 2026)
Book your tour. Save an average of $18,473. We'll handle the rest.
We collect exclusive builder offers, book your tours, and support you from start to housewarming.
- Confirmed tours
- Get matched & compare top deals
- Expert help, no pressure
- No added fees
Estimated value based on Jome data, T&C apply
Home details
- Property status:
- Under construction
- Size:
- 2,260 sqft
- Stories:
- 2
- Beds:
- 4
- Baths:
- 3
- Garage spaces:
- 2
Construction details
- Builder Name:
- Mungo Homes
- Completion Date:
- August, 2026
Home features & finishes
- Garage/Parking:
- Garage
- Rooms:
- Primary Bedroom Upstairs

Get a consultation with our New Homes Expert
- See how your home builds wealth
- Plan your home-buying roadmap
- Discover hidden gems

Community details
Clairmont
by Mungo Homes, Charlotte, NC
- 12 homes
- 8 plans
- 1,548 - 2,844 sqft
View Clairmont details
More homes in Clairmont
- Home at address 1231 Bansal Dr, Charlotte, NC 28215

McDowell
$446,590
- 4 bd
- 3 ba
- 2,223 sqft
1231 Bansal Dr, Charlotte, NC 28215
- Home at address 1231 Bansal Dr, Unit 185, Charlotte, NC 28215

Home
$447,290
- 5 bd
- 2.5 ba
- 2,217 sqft
1231 Bansal Dr, Unit 185, Charlotte, NC 28215
- Home at address 1227 Bansal Dr, Charlotte, NC 28215

Lancaster
$453,769
- 4 bd
- 2.5 ba
- 2,177 sqft
1227 Bansal Dr, Charlotte, NC 28215
- Home at address 1227 Bansal Dr, Unit 184, Charlotte, NC 28215

Home
$456,769
- 4 bd
- 2.5 ba
- 2,177 sqft
1227 Bansal Dr, Unit 184, Charlotte, NC 28215
- Home at address 4013 Juno Dr, Charlotte, NC 28215

Pickens
$462,379
- 4 bd
- 2.5 ba
- 2,436 sqft
4013 Juno Dr, Charlotte, NC 28215
- Home at address 4013 Juno Dr, Unit 188, Charlotte, NC 28215

Home
$463,069
- 5 bd
- 3 ba
- 2,436 sqft
4013 Juno Dr, Unit 188, Charlotte, NC 28215
Floor plans in Clairmont
- View details for Guilford - Genesis Value Collection

Guilford - Genesis Value Collection
$398,000+- 4 bd
- 2.5 ba
- 1,772 sqft
- View details for Lancaster - Genesis Value Collection

Lancaster - Genesis Value Collection
$415,000+- 4 bd
- 2.5 ba
- 2,152 sqft
About the builder - Mungo Homes
Neighborhood
Home address
Schools in Estill County School District
- Grades PK-PKPublicsouth irvine early learning center5.4 mi1000 south irvine rdna
GreatSchools’ Summary Rating calculation is based on 4 of the school’s themed ratings, including test scores, student/academic progress, college readiness, and equity. This information should only be used as a reference. Jome is not affiliated with GreatSchools and does not endorse or guarantee this information. Please reach out to schools directly to verify all information and enrollment eligibility. Data provided by GreatSchools.org © 2025
Getting around
2 nearby routes: 2 bus, 0 rail, 0 otherNoise level
A Soundscore™ rating is a number between 50 (very loud) and 100 (very quiet) that tells you how loud a location is due to environmental noise.

Considering this home?
Our expert will guide your tour, in-person or virtual
Need more information?
Text or call (888) 545-5198
Financials
Estimated monthly payment
Let us help you find your dream home
How many bedrooms are you looking for?
Recently added communities in this area
Nearby communities in Charlotte
More New Homes in Charlotte, NC
- Jome
- New homes search
- North Carolina
- Charlotte Metropolitan Area
- Estill County
- Charlotte
- Clairmont
- 1305 Bansal Dr, Charlotte, NC 28215









