






Book your tour. Save an average of $18,473. We'll handle the rest.
We collect exclusive builder offers, book your tours, and support you from start to housewarming.
- Confirmed tours
- Get matched & compare top deals
- Expert help, no pressure
- No added fees
Estimated value based on Jome data, T&C apply



Why tour with Jome?
- No pressure toursTour at your own pace with no sales pressure
- Expert guidanceGet insights from our home buying experts
- Exclusive accessSee homes and deals not available elsewhere
Jome is featured in
- Single-Family
- Under construction
- $190.09/sqft
- 0.22-acre lot
Home description
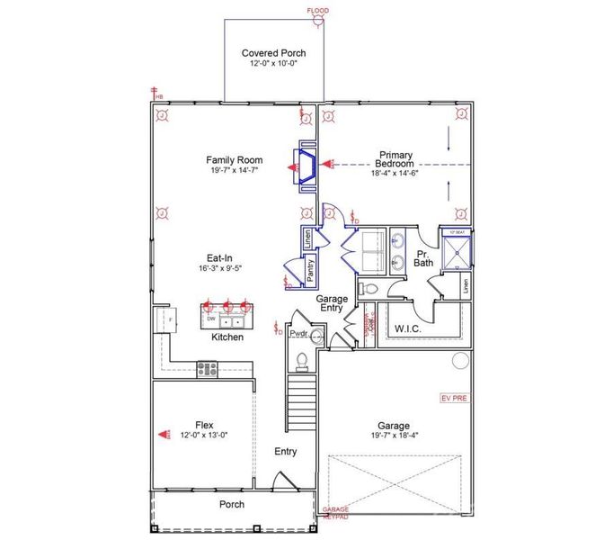
This primary-on-main home features an open concept great room with large kitchen and a front room flex space that is a great design for a study or dining room. The loft upstairs makes a perfect hang out or could be easily converted to a 5th bedroom by adding a door and wall over the staircase. Every bedroom features a large walk-in closet, and the primary bedroom is nearly as large as the family room! Whether you want to stay cozy by the gas fireplace, hang out with friends on the rear covered porch, or entertain from the kitchen, this home has it all!
This home is under construction now with a completion estimated for August.
Chosen custom selections include:
Exterior: Pickens Elevation D, Alside Conquest Juniper Ridge as the main Vinyl siding as well as the board and batten siding, plus Alside Antique Parchment cedar shake makes the perfect complementary color.
Structural: Primary Suite on main, Gas Fireplace, Covered Rear Porch, Primary Bath large tile shower, Vaulted ceiling over primary bedroom.
Design: White Cabinets, Carrara Pisa Marbled Quartz Countertops, Soft Beige LVP Flooring everywhere except carpet in bedrooms 2, 3 & 4, Hardwood Stairs.
Technology: Video Doorbell & Hub, Full Home Networking with centralized tech box, programmable thermostats.
Appliances: SS Gas Range, microwave, dishwasher.
Energy Efficiency: Every home independently tested and receives HERS certification.
Similar Homes available for a preview tour in person at another community while this home is under construction and virtual tours of the Pickens plan by Mungo Homes are available on YouTube.
Mungo Homes, MLS CAR4365850
May also be listed on the Mungo Homes website
Information last verified by Jome: Today at 12:09 AM (April 12, 2026)
Home highlights
Major public research university in Charlotte offering strong STEM programs and fueling regional innovation and growth.
Book your tour. Save an average of $18,473. We'll handle the rest.
We collect exclusive builder offers, book your tours, and support you from start to housewarming.
- Confirmed tours
- Get matched & compare top deals
- Expert help, no pressure
- No added fees
Estimated value based on Jome data, T&C apply
Home details
- Property status:
- Under construction
- Lot size (acres):
- 0.22
- Size:
- 2,436 sqft
- Stories:
- 2
- Beds:
- 5
- Baths:
- 3
- Garage spaces:
- 2
Construction details
- Builder Name:
- Mungo Homes
- Year Built:
- 2026
Home features & finishes
- Construction Materials:
- Stone
- Cooling:
- Central Air
- Flooring:
- Wood FlooringVinyl FlooringCarpet Flooring
- Foundation Details:
- Slab
- Garage/Parking:
- Door OpenerGarageAttached Garage
- Interior Features:
- Sliding Doors
- Kitchen:
- DishwasherMicrowave OvenOvenGas CooktopConvection OvenGas OvenKitchen Range
- Laundry facilities:
- Laundry Facilities On Upper LevelDryerUtility/Laundry Room
- Property amenities:
- PatioFireplacePorch
- Rooms:
- Family Room
- Security system:
- Smoke DetectorCarbon Monoxide Detector

Get a consultation with our New Homes Expert
- See how your home builds wealth
- Plan your home-buying roadmap
- Discover hidden gems
Utility information
- Heating:
- Gas Heating, Forced Air Heating
- Sewer:
- Public Sewer
- Utilities:
- Natural Gas on Property, Underground Utilities, Internet Cable, Internet-Fiber, Cable Available
- Water source:
- Public

Community details
Clairmont
by Mungo Homes, Charlotte, NC
- 11 homes
- 8 plans
- 1,548 - 2,844 sqft
View Clairmont details
Community amenities
- Playground
- Community Pool
- Community Pond
- Cabana
- Sidewalks Available
More homes in Clairmont
- Home at address 1231 Bansal Dr, Unit 185, Charlotte, NC 28215

Home
$447,290
- 5 bd
- 2.5 ba
- 2,217 sqft
1231 Bansal Dr, Unit 185, Charlotte, NC 28215
- Home at address 1221 Bansal Dr, Charlotte, NC 28215

Telfair
$482,166
- 5 bd
- 3 ba
- 2,844 sqft
1221 Bansal Dr, Charlotte, NC 28215
- Home at address 1221 Bansal Dr, Unit 187, Charlotte, NC 28215

Home
$482,166
- 5 bd
- 3 ba
- 2,844 sqft
1221 Bansal Dr, Unit 187, Charlotte, NC 28215
Floor plans in Clairmont
- View details for Brunswick - Genesis Value Collection

Brunswick - Genesis Value Collection
$389,000+- 3 bd
- 2 ba
- 1,548 sqft
- View details for Guilford - Genesis Value Collection

Guilford - Genesis Value Collection
$398,000+- 4 bd
- 2.5 ba
- 1,772 sqft
About the builder - Mungo Homes
Neighborhood
Home address
- City:
- Charlotte
- County:
- Mecklenburg
- Zip Code:
- 28215
Schools in Charlotte-Mecklenburg Schools
GreatSchools’ Summary Rating calculation is based on 4 of the school’s themed ratings, including test scores, student/academic progress, college readiness, and equity. This information should only be used as a reference. Jome is not affiliated with GreatSchools and does not endorse or guarantee this information. Please reach out to schools directly to verify all information and enrollment eligibility. Data provided by GreatSchools.org © 2025
Places of interest
Getting around
2 nearby routes: 2 bus, 0 rail, 0 otherNoise level
A Soundscore™ rating is a number between 50 (very loud) and 100 (very quiet) that tells you how loud a location is due to environmental noise.

Considering this home?
Our expert will guide your tour, in-person or virtual
Need more information?
Text or call (888) 545-5198
Financials
Estimated monthly payment
Let us help you find your dream home
How many bedrooms are you looking for?
Similar homes nearby
Recently added communities in this area
Nearby communities in Charlotte
New homes in nearby cities
More New Homes in Charlotte, NC
Mungo Homes, MLS CAR4365850
Based on information submitted to the MLS GRID as of 10/21/2024 2:31 PM CDT. All data is obtained from various sources and may not have been verified by the broker or MLS GRID. Supplied Open House Information is subject to change without notice. All information should be independently reviewed and verified for accuracy. Properties may or may not be listed by the office/agent presenting the information. Properties displayed may be listed or sold by various participants in the MLS. The Digital Millennium Copyright Act of 1998, 17 U.S.C. § 512 (the “DMCA”) provides recourse for copyright owners who believe that material appearing on the Internet infringes their rights under U.S. copyright law. If you believe in good faith that any content or material made available in connection with our website or services infringes your copyright, you (or your agent) may send us a notice requesting that the content or material be removed, or access to it blocked. Notices must be sent in writing by email to DMCAnotice@MLSGrid.com. The DMCA requires that your notice of alleged copyright infringement include the following information: (1) description of the copyrighted work that is the subject of claimed infringement; (2) description of the alleged infringing content and information sufficient to permit us to locate the content; (3) contact information for you, including your address, telephone number and email address; (4) a statement by you that you have a good faith belief that the content in the manner complained of is not authorized by the copyright owner, or its agent, or by the operation of any law; (5) a statement by you, signed under penalty of perjury, that the information in the notification is accurate and that you have the authority to enforce the copyrights that are claimed to be infringed; and (6) a physical or electronic signature of the copyright owner or a person authorized to act on the copyright owner’s behalf. Failure to include all of the above information may result in the delay of the processing of your complaint.
Read moreLast checked Apr 12, 11:00 am
- Jome
- New homes search
- North Carolina
- Charlotte Metropolitan Area
- Mecklenburg County
- Charlotte
- Clairmont
- 4013 Juno Dr, Unit 188, Charlotte, NC 28215































