



Book your tour. Save an average of $18,473. We'll handle the rest.
We collect exclusive builder offers, book your tours, and support you from start to housewarming.
- Confirmed tours
- Get matched & compare top deals
- Expert help, no pressure
- No added fees
Estimated value based on Jome data, T&C apply

Why tour with Jome?
- No pressure toursTour at your own pace with no sales pressure
- Expert guidanceGet insights from our home buying experts
- Exclusive accessSee homes and deals not available elsewhere
Jome is featured in
- Single-Family
- Under construction
- $229.05/sqft
- $41.67/monthly HOA
Home description
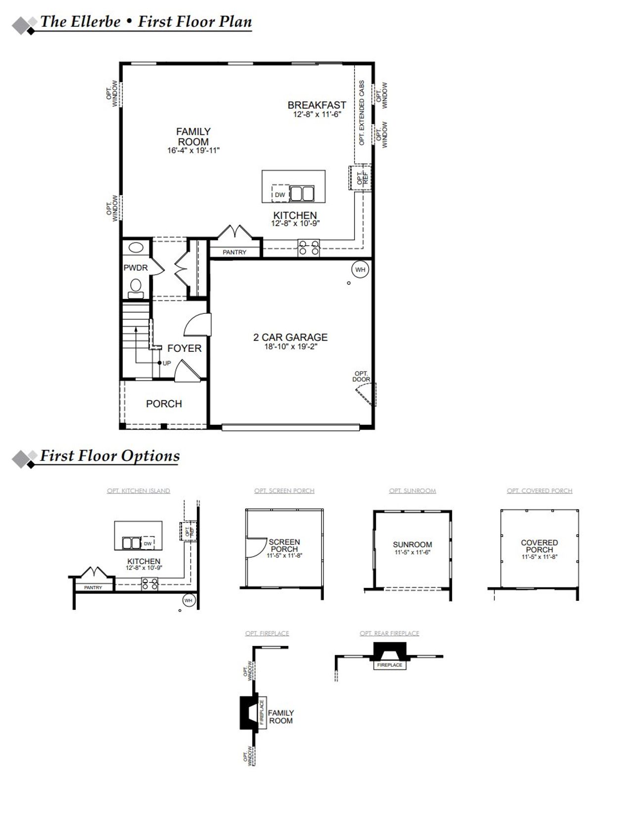
The Ellerbe is a two-story, four-bedroom, two-and-a-half-bath home with a crawl space foundation, a spacious and open family room, a kitchen with island and pantry, a separate breakfast area, and a screen porch. The second floor features all four bedrooms, including the primary bedroom, a laundry room, and a hall bathroom.
May also be listed on the Eastwood Homes website
Information last verified by Jome: Today at 6:35 AM (April 7, 2026)
Book your tour. Save an average of $18,473. We'll handle the rest.
We collect exclusive builder offers, book your tours, and support you from start to housewarming.
- Confirmed tours
- Get matched & compare top deals
- Expert help, no pressure
- No added fees
Estimated value based on Jome data, T&C apply
Home details
- Property status:
- Under construction
- Size:
- 1,893 sqft
- Stories:
- 2
- Beds:
- 4
- Baths:
- 2
- Half baths:
- 1
- Garage spaces:
- 2
Construction details
- Builder Name:
- Eastwood Homes
Home features & finishes
- Foundation Details:
- Crawl Space
- Garage/Parking:
- Garage
- Interior Features:
- Loft
- Property amenities:
- Porch

Get a consultation with our New Homes Expert
- See how your home builds wealth
- Plan your home-buying roadmap
- Discover hidden gems

Community details
Castlewood
by Eastwood Homes, Archer Lodge, NC
- 5 homes
- 8 plans
- 1,541 - 3,047 sqft
View Castlewood details
More homes in Castlewood
- Home at address 114 Arundel Dr, Archer Lodge, NC 27527

Stanley
$419,900
- 4 bd
- 3 ba
- 2,162 sqft
114 Arundel Dr, Archer Lodge, NC 27527
- Home at address 118 Arundel Dr, Archer Lodge, NC 27527

Wilmington
$459,900
- 4 bd
- 2.5 ba
- 2,464 sqft
118 Arundel Dr, Archer Lodge, NC 27527
- Home at address 113 Arundel Dr, Archer Lodge, NC 27527

Cypress
$469,900
- 4 bd
- 3 ba
- 2,464 sqft
113 Arundel Dr, Archer Lodge, NC 27527
Floor plans in Castlewood
About the builder - Eastwood Homes
Neighborhood
Home address
- City:
- Archer Lodge
- County:
- Johnston
- Zip Code:
- 27527
Schools in Johnston County Schools
GreatSchools’ Summary Rating calculation is based on 4 of the school’s themed ratings, including test scores, student/academic progress, college readiness, and equity. This information should only be used as a reference. Jome is not affiliated with GreatSchools and does not endorse or guarantee this information. Please reach out to schools directly to verify all information and enrollment eligibility. Data provided by GreatSchools.org © 2025
Places of interest
Getting around

Considering this home?
Our expert will guide your tour, in-person or virtual
Need more information?
Text or call (888) 545-5198
Financials
Estimated monthly payment
Let us help you find your dream home
How many bedrooms are you looking for?
Similar homes nearby
Recently added communities in this area
Nearby communities in Archer Lodge
New homes in nearby cities
More New Homes in Archer Lodge, NC
- Jome
- New homes search
- North Carolina
- Raleigh-Durham Area
- Johnston County
- Archer Lodge
- Castlewood
- 104 Arundel Dr, Archer Lodge, NC 27527































