









Book your tour. Save an average of $18,473. We'll handle the rest.
We collect exclusive builder offers, book your tours, and support you from start to housewarming.
- Confirmed tours
- Get matched & compare top deals
- Expert help, no pressure
- No added fees
Estimated value based on Jome data, T&C apply






Why tour with Jome?
- No pressure toursTour at your own pace with no sales pressure
- Expert guidanceGet insights from our home buying experts
- Exclusive accessSee homes and deals not available elsewhere
Jome is featured in
- Single-Family
- Ready by July 2026
- $178.2/sqft
- 1 days on Jome
Home description
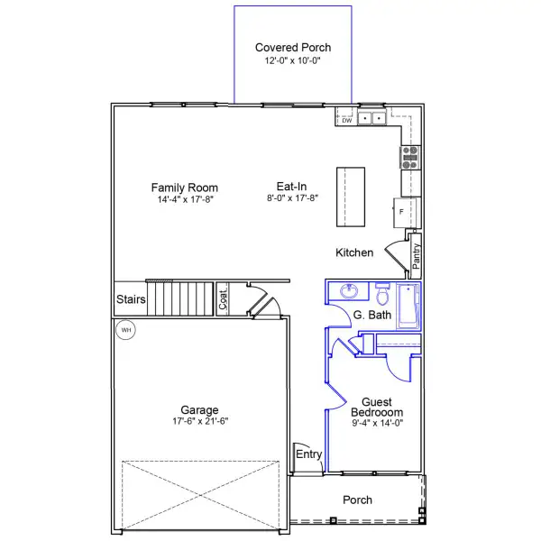
Welcome to the popular Meriwether plan in Hanes Lake, currently being built on Homesite #2! This thoughtfully designed four-bedroom, three-bathroom home offers a flexible layout perfect for modern living. The main level features a private guest bedroom with a full bath, ideal for visitors or a home office. The open concept kitchen shines with quartz countertops, warm toned cabinetry, and flows seamlessly into the main living areas. Upstairs, you will find three spacious bedrooms plus a huge loft, providing the perfect space for a second living area, playroom, or media room. Enjoy outdoor living on the covered porch overlooking a nice, usable backyard. Hanes Lake offers incredible amenities including a community pool, walking trails, lake access, and more, making this home the perfect blend of comfort and lifestyle.
May also be listed on the Mungo Homes website
Information last verified by Jome: Today at 5:58 AM (April 1, 2026)
Book your tour. Save an average of $18,473. We'll handle the rest.
We collect exclusive builder offers, book your tours, and support you from start to housewarming.
- Confirmed tours
- Get matched & compare top deals
- Expert help, no pressure
- No added fees
Estimated value based on Jome data, T&C apply
Home details
- Property status:
- Under construction
- Size:
- 2,260 sqft
- Stories:
- 2
- Beds:
- 4
- Baths:
- 3
- Garage spaces:
- 2
Construction details
- Builder Name:
- Mungo Homes
- Completion Date:
- July, 2026
Home features & finishes
- Garage/Parking:
- Garage
- Rooms:
- Primary Bedroom Upstairs

Get a consultation with our New Homes Expert
- See how your home builds wealth
- Plan your home-buying roadmap
- Discover hidden gems

Community details
Hanes Lake
by Mungo Homes, Winston-Salem, NC
- 15 homes
- 9 plans
- 1,476 - 3,578 sqft
View Hanes Lake details
More homes in Hanes Lake
- Home at address 2587 Raspberry Hill Dr, Winston-Salem, NC 27106

Pickens
$420,000
- 4 bd
- 2.5 ba
- 2,436 sqft
2587 Raspberry Hill Dr, Winston-Salem, NC 27106
- Home at address 2017 Honeysuckle Vine Run, Winston-Salem, NC 27106

McDowell
$420,139
- 5 bd
- 3 ba
- 2,255 sqft
2017 Honeysuckle Vine Run, Winston-Salem, NC 27106
- Home at address 719 Cinnamon Hill Dr, Winston-Salem, NC 27106

Nantahala II
$470,000
- 4 bd
- 3.5 ba
- 2,458 sqft
719 Cinnamon Hill Dr, Winston-Salem, NC 27106
- Home at address 3234 Spicewood Lake Dr, Winston-Salem, NC 27106

Savannah
$485,000
- 5 bd
- 3.5 ba
- 2,942 sqft
3234 Spicewood Lake Dr, Winston-Salem, NC 27106
- Home at address 750 Cinnamon Hill Dr, Winston-Salem, NC 27106

Nantahala II
$490,000
- 4 bd
- 3.5 ba
- 2,450 sqft
750 Cinnamon Hill Dr, Winston-Salem, NC 27106
- Home at address 726 Cinnamon Hill Dr, Winston-Salem, NC 27106

Saluda II
$525,375
- 4 bd
- 3 ba
- 2,942 sqft
726 Cinnamon Hill Dr, Winston-Salem, NC 27106
Floor plans in Hanes Lake
- View details for Nantahala II - Vanguard Collection

Nantahala II - Vanguard Collection
$419,000+- 4 bd
- 2.5 ba
- 2,450 sqft
- View details for Nottely - Vanguard Collection

Nottely - Vanguard Collection
$422,000+- 4 bd
- 2.5 ba
- 2,490 sqft
About the builder - Mungo Homes
Neighborhood
Home address
- City:
- Winston-Salem
- County:
- Forsyth
- Zip Code:
- 27106
Schools in Forsyth County Schools
GreatSchools’ Summary Rating calculation is based on 4 of the school’s themed ratings, including test scores, student/academic progress, college readiness, and equity. This information should only be used as a reference. Jome is not affiliated with GreatSchools and does not endorse or guarantee this information. Please reach out to schools directly to verify all information and enrollment eligibility. Data provided by GreatSchools.org © 2025
Places of interest
Getting around
Air quality
Noise level
A Soundscore™ rating is a number between 50 (very loud) and 100 (very quiet) that tells you how loud a location is due to environmental noise.

Considering this home?
Our expert will guide your tour, in-person or virtual
Need more information?
Text or call (888) 545-5198
Financials
Estimated monthly payment
Let us help you find your dream home
How many bedrooms are you looking for?
Similar homes nearby
Recently added communities in this area
Nearby communities in Winston-Salem
New homes in nearby cities
More New Homes in Winston-Salem, NC
- Jome
- New homes search
- North Carolina
- Forsyth County
- Winston-Salem
- Hanes Lake
- 2011 Honeysuckle Vine Run, Winston-Salem, NC 27106






























