








Book your tour. Save an average of $18,473. We'll handle the rest.
We collect exclusive builder offers, book your tours, and support you from start to housewarming.
- Confirmed tours
- Get matched & compare top deals
- Expert help, no pressure
- No added fees
Estimated value based on Jome data, T&C apply














Why tour with Jome?
- No pressure toursTour at your own pace with no sales pressure
- Expert guidanceGet insights from our home buying experts
- Exclusive accessSee homes and deals not available elsewhere
Jome is featured in
- Single-Family
- Ready by May 2026
- $191.27/sqft
- $125/monthly HOA
Home description
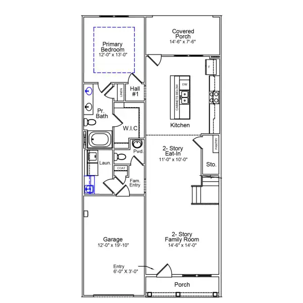
Discover a warm welcome at Ovation at Sweetbrier, Durham's friendly 55+ community. Here, thoughtfully designed townhomes offer easy main-level living, stylish finishes, and a carefree lifestyle--all crafted just for you. Welcome to the Hyacinth--a carefully crafted interior unit featuring three bedrooms, two-and-one-half baths, and a spacious loft. Step inside and you'll be greeted by the great room's soaring two-story ceiling, making an immediate and lasting impression. Expansive windows on both levels fill the home with natural light, while high-end finishes create a refined, pristine feel. The kitchen blends style and function, perfect for everyday meals or entertaining friends. Just beyond, the primary bedroom provides a private and comfortable retreat, complete with an en-suite bath featuring dual quartz-topped sinks, a tiled shower with glass enclosure, and a walk-in closet. Step outside to your covered porch--an ideal spot for morning coffee or afternoon tea. Upstairs, discover two additional bedrooms, a full bath, and a loft overlooking the stunning great room below. A generous unfinished storage room keeps seasonal items tucked away, while a convenient laundry room and half bath by the garage entry add to the home's thoughtful design. As a resident, you'll have access to resort-style amenities--including a welcoming clubhouse, sparkling pool, fitness center, tennis courts, community gardens, and a calendar full of activities to joy with friends and neighbors. Best of all, you're just moments from Brier Creek, I-540, RDU, and the area's top shopping, dining, and healthcare--so everything you need for a happy, easygoing lifestyle is always close by.
May also be listed on the Mungo Homes website
Information last verified by Jome: Today at 5:46 AM (March 31, 2026)
Home highlights
Expansive Raleigh-area park with forested trails, fishing lakes, and quiet escapes near Triangle suburbs.
Book your tour. Save an average of $18,473. We'll handle the rest.
We collect exclusive builder offers, book your tours, and support you from start to housewarming.
- Confirmed tours
- Get matched & compare top deals
- Expert help, no pressure
- No added fees
Estimated value based on Jome data, T&C apply
Home details
- Property status:
- Under construction
- Size:
- 1,856 sqft
- Stories:
- 2
- Beds:
- 3
- Baths:
- 2
- Half baths:
- 1
- Garage spaces:
- 1
Construction details
- Builder Name:
- Mungo Homes
- Completion Date:
- May, 2026
Home features & finishes
- Garage/Parking:
- Garage
- Rooms:
- Primary Bedroom Downstairs

Get a consultation with our New Homes Expert
- See how your home builds wealth
- Plan your home-buying roadmap
- Discover hidden gems

Community details
Ovation at Sweetbrier
by Mungo Homes, Durham, NC
- 27 homes
- 7 plans
- 1,303 - 2,216 sqft
View Ovation at Sweetbrier details
More homes in Ovation at Sweetbrier
- Home at address 1103 Bell Heather Rd, Durham, NC 27703

Hyacinth - Vanguard Collection
$355,000
- 3 bd
- 2.5 ba
- 1,856 sqft
1103 Bell Heather Rd, Durham, NC 27703
- Home at address 1114 Bell Heather Rd, Durham, NC 27703

Hyacinth - Vanguard Collection
$355,000
- 3 bd
- 2.5 ba
- 1,856 sqft
1114 Bell Heather Rd, Durham, NC 27703
- Home at address 1116 Bell Heather Rd, Unit 69, Durham, NC 27703

Hyacinth - Vanguard Collection
$355,000
- 3 bd
- 2.5 ba
- 1,856 sqft
1116 Bell Heather Rd, Unit 69, Durham, NC 27703
- Home at address 1122 Bell Heather Rd, Unit 66, Durham, NC 27703

Home
$355,000
- 3 bd
- 2.5 ba
- 1,856 sqft
1122 Bell Heather Rd, Unit 66, Durham, NC 27703
- Home at address 1130 Bell Heather Rd, Unit 62, Durham, NC 27703

Home
$355,000
- 3 bd
- 2.5 ba
- 1,856 sqft
1130 Bell Heather Rd, Unit 62, Durham, NC 27703
- Home at address 1205 Bell Heather Rd, Durham, NC 27703

Hyacinth - Vanguard Collection
$358,000
- 3 bd
- 2.5 ba
- 1,856 sqft
1205 Bell Heather Rd, Durham, NC 27703
Floor plans in Ovation at Sweetbrier
- View details for Hyacinth - Vanguard Collection

Hyacinth - Vanguard Collection
$370,000+- 3 bd
- 2.5 ba
- 1,856 sqft
- View details for Hydrangea - Vanguard Collection

Hydrangea - Vanguard Collection
$380,000+- 3 bd
- 2.5 ba
- 1,883 sqft
About the builder - Mungo Homes
Neighborhood
Home address
Schools in Durham Public Schools
- Grades PK-03Privatetutorial -1/2 christian schools3.5 mi3026 holloway stna
GreatSchools’ Summary Rating calculation is based on 4 of the school’s themed ratings, including test scores, student/academic progress, college readiness, and equity. This information should only be used as a reference. Jome is not affiliated with GreatSchools and does not endorse or guarantee this information. Please reach out to schools directly to verify all information and enrollment eligibility. Data provided by GreatSchools.org © 2025
Places of interest
Getting around
Air quality
Noise level
A Soundscore™ rating is a number between 50 (very loud) and 100 (very quiet) that tells you how loud a location is due to environmental noise.

Considering this home?
Our expert will guide your tour, in-person or virtual
Need more information?
Text or call (888) 545-5198
Financials
Estimated monthly payment
Let us help you find your dream home
How many bedrooms are you looking for?
Similar homes nearby
Recently added communities in this area
Nearby communities in Durham
New homes in nearby cities
More New Homes in Durham, NC
- Jome
- New homes search
- North Carolina
- Raleigh-Durham Area
- Durham County
- Durham
- Ovation at Sweetbrier
- 1130 Bell Heather Rd, Durham, NC 27703

































