









Book your tour. Save an average of $18,473. We'll handle the rest.
We collect exclusive builder offers, book your tours, and support you from start to housewarming.
- Confirmed tours
- Get matched & compare top deals
- Expert help, no pressure
- No added fees
Estimated value based on Jome data, T&C apply






























Why tour with Jome?
- No pressure toursTour at your own pace with no sales pressure
- Expert guidanceGet insights from our home buying experts
- Exclusive accessSee homes and deals not available elsewhere
Jome is featured in
- Single-Family
- Quick move-in
- $224/sqft
- $105/monthly HOA
Home description
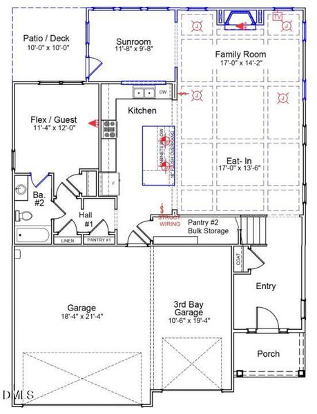
Step into this beautifully designed Saluda II home in the Sweetbrier community, offering generous living spaces, refined finishes, and an inviting layout ideal for both everyday comfort and entertaining. A bright foyer leads into an open main level where the great room flows seamlessly into the dining area and thoughtfully planned kitchen. The added sunroom expands the living space with natural light and creates a perfect daily retreat. The kitchen is arranged with a gourmet layout, enhanced by upgraded cabinetry construction and a wall-mounted hood. An expanded island anchors the space and offers exceptional functionality for cooking, gathering, or casual meals. Upstairs, the primary suite provides a peaceful escape with a boxed ceiling and a spacious walk-in tile shower. Additional bedrooms and a flexible loft accommodate a variety of living needs, whether for work, play, or guests. Hall baths feature upgraded cabinetry and raised vanities for added comfort. Throughout the home, selections such as luxury vinyl plank flooring in key areas, upgraded lighting, and enhanced technology wiring elevate everyday living. A fireplace in the great room adds warmth and ambiance, while added windows bring even more natural light into the home. Situated in a sought-after Durham location near shopping, dining, RTP, and major highways, this home combines thoughtful design with modern convenience. A standout opportunity in Sweetbrier--move-in ready with carefully curated upgrades throughout!
Clayton Properties Group INC, MLS 10155645
May also be listed on the Mungo Homes website
Information last verified by Jome: Today at 4:22 AM (March 28, 2026)
Home highlights
Expansive Raleigh-area park with forested trails, fishing lakes, and quiet escapes near Triangle suburbs.
Book your tour. Save an average of $18,473. We'll handle the rest.
We collect exclusive builder offers, book your tours, and support you from start to housewarming.
- Confirmed tours
- Get matched & compare top deals
- Expert help, no pressure
- No added fees
Estimated value based on Jome data, T&C apply
Home details
- Property status:
- Move-in ready
- Lot size (acres):
- 0.14
- Size:
- 2,942 sqft
- Stories:
- 2
- Beds:
- 4
- Baths:
- 3
- Garage spaces:
- 3
Construction details
- Builder Name:
- Mungo Homes
- Year Built:
- 2026
- Roof:
- Roof Gutter, Shingle Roofing
Home features & finishes
- Appliances:
- Exhaust Fan Vented
- Construction Materials:
- CementFrame
- Cooling:
- Central Air
- Flooring:
- Ceramic FlooringVinyl FlooringCarpet FlooringTile Flooring
- Foundation Details:
- Slab
- Garage/Parking:
- Door OpenerGarageFront Entry Garage/ParkingAttached Garage
- Interior Features:
- Walk-In ClosetPantryTray CeilingDual Closets
- Kitchen:
- DishwasherMicrowave OvenOvenDisposalStainless Steel AppliancesGas CooktopQuartz countertopKitchen IslandCooktop
- Laundry facilities:
- Laundry Facilities On Upper LevelDryerWasherUtility/Laundry Room
- Lighting:
- Lighting Recessed
- Property amenities:
- BasementWalk-in ShowerPatioFireplaceYard
- Rooms:
- KitchenDining RoomFamily RoomOpen Concept Floorplan

Get a consultation with our New Homes Expert
- See how your home builds wealth
- Plan your home-buying roadmap
- Discover hidden gems
Utility information
- Heating:
- Zoned Heating, Water Heater, Central Heating, Gas Heating, Tankless water heater

Community details
Sweetbrier
by Mungo Homes, Durham, NC
- 39 homes
- 16 plans
- 1,899 - 4,009 sqft
View Sweetbrier details
Community amenities
- Woods View
- Playground
- Fitness Center/Exercise Area
- Club House
- Community Pool
- Park Nearby
- Sidewalks Available
More homes in Sweetbrier
- Home at address 2113 Pink Peony Cir, Durham, NC 27703

Winterberry - Vanguard Collection
$425,000
- 4 bd
- 3.5 ba
- 2,459 sqft
2113 Pink Peony Cir, Durham, NC 27703
- Home at address 2107 Pink Peony Cir, Durham, NC 27703

Winterberry - Vanguard Collection
$435,000
- 4 bd
- 3.5 ba
- 2,497 sqft
2107 Pink Peony Cir, Durham, NC 27703
- Home at address 2115 Pink Peony Cir, Durham, NC 27703

Winterberry
$450,000
- 4 bd
- 3.5 ba
- 2,479 sqft
2115 Pink Peony Cir, Durham, NC 27703
- Home at address 2120 Pink Peony Cir, Durham, NC 27703

Winterberry
$450,662
- 4 bd
- 3.5 ba
- 2,459 sqft
2120 Pink Peony Cir, Durham, NC 27703
- Home at address 944 Westerland Wy, Durham, NC 27703

Winterberry
$455,894
- 4 bd
- 3.5 ba
- 2,459 sqft
944 Westerland Wy, Durham, NC 27703
- Home at address 2122 Pink Peony Cir, Durham, NC 27703

Veronica - Vanguard Collection
$467,265
- 4 bd
- 3.5 ba
- 2,472 sqft
2122 Pink Peony Cir, Durham, NC 27703
Floor plans in Sweetbrier
- View details for Lacey - Vanguard Collection

Lacey - Vanguard Collection
$485,000+- 4 bd
- 3.5 ba
- 2,465 sqft
- View details for Nantahala II - Vanguard Collection

Nantahala II - Vanguard Collection
$537,000+- 4 bd
- 2.5 ba
- 2,450 sqft
About the builder - Mungo Homes
Neighborhood
Home address
Schools in Durham Public Schools
GreatSchools’ Summary Rating calculation is based on 4 of the school’s themed ratings, including test scores, student/academic progress, college readiness, and equity. This information should only be used as a reference. Jome is not affiliated with GreatSchools and does not endorse or guarantee this information. Please reach out to schools directly to verify all information and enrollment eligibility. Data provided by GreatSchools.org © 2025
Places of interest
Getting around
Air quality

Considering this home?
Our expert will guide your tour, in-person or virtual
Need more information?
Text or call (888) 545-5198
Financials
Estimated monthly payment
Let us help you find your dream home
How many bedrooms are you looking for?
Similar homes nearby
Recently added communities in this area
Nearby communities in Durham
New homes in nearby cities
More New Homes in Durham, NC
Clayton Properties Group INC, MLS 10155645
© 2025 Doorify MLS, Inc. of North Carolina. All rights reserved. Brokers make an effort to deliver accurate information, but buyers should independently verify any information on which they will rely in a transaction. The listing broker shall not be responsible for any typographical errors, misinformation, or misprints, and they shall be held totally harmless from any damages arising from reliance upon this data. This data is provided exclusively for consumers’ personal, non-commercial use. Some IDX listings have been excluded from this IDX display. Closed (sold) listings may have been listed and/or sold by a real estate firm other than the firm(s) featured on this website. Closed data is not available until the sale of the property is recorded in the MLS. Home sale data is not an appraisal, CMA, competitive or comparative market analysis, or home valuation of any property. Listings marked with an icon are provided courtesy of the Doorify MLS, Inc. of North Carolina, Internet Data Exchange Database.
Read moreLast checked Mar 28, 10:10 am
- Jome
- New homes search
- North Carolina
- Raleigh-Durham Area
- Durham County
- Durham
- Sweetbrier
- 4203 Sweet Ivy Lndg, Unit 337, Durham, NC 27703

































