














Book your tour. Save an average of $18,473. We'll handle the rest.
We collect exclusive builder offers, book your tours, and support you from start to housewarming.
- Confirmed tours
- Get matched & compare top deals
- Expert help, no pressure
- No added fees
Estimated value based on Jome data, T&C apply









Why tour with Jome?
- No pressure toursTour at your own pace with no sales pressure
- Expert guidanceGet insights from our home buying experts
- Exclusive accessSee homes and deals not available elsewhere
Jome is featured in
- Single-Family
- Ready by August 2026
- $142.74/sqft
- $55/monthly HOA
Home description
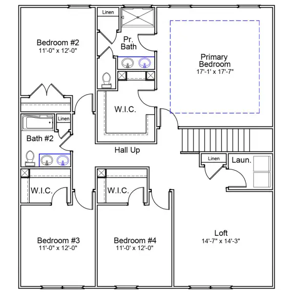
This spacious house offers a functional layout with a main-level guest bedroom—perfect for guests or a home office, and separate dining room. Luxury vinyl plank flooring spans the entire first floor. The open concept kitchen includes six-foot island, Quartz Motion Grey countertops, custom Elkins White cabinetry, w accent Island Sinclair Flagstone cabinetry, LED disc lighting, and a walk-in pantry for ample storage. You'll also enjoy a full suite of GE stainless steel appliances: electric range, over-the-range microwave, and dishwasher. Upstairs, the primary suite is generously sized with a tray ceiling, plush carpet, and a big size closet. The private bath features a five-foot shower, double vanity with quartz countertops, luxury vinyl plank flooring, and a linen closet. A spacious open loft area offers the perfect spot for a playroom, media space, or home gym. Plus, there's a large laundry room to make everyday chores a breeze.
May also be listed on the Mungo Homes website
Information last verified by Jome: Today at 5:49 AM (February 27, 2026)
Book your tour. Save an average of $18,473. We'll handle the rest.
We collect exclusive builder offers, book your tours, and support you from start to housewarming.
- Confirmed tours
- Get matched & compare top deals
- Expert help, no pressure
- No added fees
Estimated value based on Jome data, T&C apply
Home details
- Property status:
- Under construction
- Size:
- 2,771 sqft
- Stories:
- 2
- Beds:
- 5
- Baths:
- 3
- Garage spaces:
- 2
Construction details
- Builder Name:
- Mungo Homes
- Completion Date:
- August, 2026
Home features & finishes
- Garage/Parking:
- Garage
- Rooms:
- Primary Bedroom Upstairs

Get a consultation with our New Homes Expert
- See how your home builds wealth
- Plan your home-buying roadmap
- Discover hidden gems

Community details
Golden Ridge
by Mungo Homes, Youngsville, NC
- 9 homes
- 12 plans
- 1,017 - 2,771 sqft
View Golden Ridge details
More homes in Golden Ridge
- Home at address 245 Buckthorn Dr, Youngsville, NC 27596

Home
$333,000
- 5 bd
- 3 ba
- 2,236 sqft
245 Buckthorn Dr, Youngsville, NC 27596
- Home at address 40 Buckthorn Dr, Youngsville, NC 27596

McDowell - Genesis Value Collection
$359,649
- 5 bd
- 3 ba
- 2,236 sqft
40 Buckthorn Dr, Youngsville, NC 27596
- Home at address 20 Buckthorn Dr, Youngsville, NC 27549

McDowell - Genesis Value Collection
$359,662
- 5 bd
- 3 ba
- 2,237 sqft
20 Buckthorn Dr, Youngsville, NC 27549
- Home at address 70 Buckthorn Dr, Youngsville, NC 27596

McDowell
$359,826
- 5 bd
- 3 ba
- 2,236 sqft
70 Buckthorn Dr, Youngsville, NC 27596
- Home at address 60 Buckthorn Dr, Youngsville, NC 27596

Telfair
$396,246
- 5 bd
- 3 ba
- 2,771 sqft
60 Buckthorn Dr, Youngsville, NC 27596
Floor plans in Golden Ridge
- View details for Rutherford - Genesis Value Collection

Rutherford - Genesis Value Collection
$353,000+- 5 bd
- 3.5 ba
- 2,621 sqft
About the builder - Mungo Homes
Neighborhood
Home address
- City:
- Youngsville
- County:
- Franklin
- Zip Code:
- 27596
Schools in Franklin County Schools
GreatSchools’ Summary Rating calculation is based on 4 of the school’s themed ratings, including test scores, student/academic progress, college readiness, and equity. This information should only be used as a reference. Jome is not affiliated with GreatSchools and does not endorse or guarantee this information. Please reach out to schools directly to verify all information and enrollment eligibility. Data provided by GreatSchools.org © 2025
Places of interest
Getting around
Noise level
A Soundscore™ rating is a number between 50 (very loud) and 100 (very quiet) that tells you how loud a location is due to environmental noise.

Considering this home?
Our expert will guide your tour, in-person or virtual
Need more information?
Text or call (888) 488-9243
Financials
Estimated monthly payment
Let us help you find your dream home
How many bedrooms are you looking for?
Similar homes nearby
Recently added communities in this area
Nearby communities in Youngsville
New homes in nearby cities
More New Homes in Youngsville, NC
- Jome
- New homes search
- North Carolina
- Raleigh-Durham Area
- Franklin County
- Youngsville
- Golden Ridge
- 10 Buckthorn Dr, Youngsville, NC 27596




























