








Book your tour. Save an average of $18,473. We'll handle the rest.
We collect exclusive builder offers, book your tours, and support you from start to housewarming.
- Confirmed tours
- Get matched & compare top deals
- Expert help, no pressure
- No added fees
Estimated value based on Jome data, T&C apply













































Why tour with Jome?
- No pressure toursTour at your own pace with no sales pressure
- Expert guidanceGet insights from our home buying experts
- Exclusive accessSee homes and deals not available elsewhere
Jome is featured in
- Single-Family
- $152.93/sqft
- $85/monthly HOA
- West facing
Home description
What's Special: Corner Lot | Flat Lot | Greenbelt View | Backs to Amenity | Covered Patio. New Construction - July Completion! Built by America's Most Trusted Home Builder. Welcome to the Quincy at 257 Blue Butterfly Drive in Camden Place! This stunning new home sits on a beautiful corner lot that backs to a walking trail, giving you extra privacy and a lovely natural backdrop. Inside, the open-concept layout brings the kitchen, dining area, and great room together in one bright, welcoming space that's perfect for entertaining or everyday living. A covered back patio sits just off the main living area for easy indoor-outdoor enjoyment. A secondary bedroom and full bathroom are tucked near the garage entry for added convenience. Upstairs, the spacious primary suite features a full bathroom and a large walk-in closet. Three secondary bedrooms with walk-in closets share a full bathroom, while a centrally located laundry room and a cozy loft complete this thoughtfully designed home. Discover charming Angier, NC, where Crepe Myrtles line the streets and community spirit shines. Just half a mile from US-55/US-401 and near future I-540 access, commuting is easy. Enjoy farmers' markets, summer blooms, holiday events, and the Crepe Myrtle Festival. Nearby Fuquay-Varina adds concerts, sleigh rides, and more small-town fun. Additional Highlights Include: main floor bedroom in place of a flex room, full bathroom in place of a powder room, bench at the garage entry, additional windows added to the great room, additional windows added to the primary bedroom, covered back patio, and dual sink vanity in the secondary bathroom. Photos are for representative purposes only. MLS#10148401
Taylor Morrison of Carolinas,, MLS 10148401
May also be listed on the Taylor Morrison website
Information last verified by Jome: Today at 4:02 AM (May 31, 2026)
Home highlights
Raleigh’s premier arena hosting NHL games, concerts, and events near NC State and suburban neighborhoods.
Book your tour. Save an average of $18,473. We'll handle the rest.
We collect exclusive builder offers, book your tours, and support you from start to housewarming.
- Confirmed tours
- Get matched & compare top deals
- Expert help, no pressure
- No added fees
Estimated value based on Jome data, T&C apply
Home details
- Property status:
- Pending/Under contract
- Collection:
- Camden Place
- Lot size (acres):
- 0.16
- Size:
- 2,681 sqft
- Stories:
- 2
- Beds:
- 5
- Baths:
- 3
- Garage spaces:
- 2
- Fence:
- No Fence
- Facing direction:
- West
Construction details
- Builder Name:
- Taylor Morrison
- Completion Date:
- August, 2026
- Year Built:
- 2026
- Roof:
- Roof Gutter, Shingle Roofing
Home features & finishes
- Appliances:
- Exhaust Fan
- Construction Materials:
- Vinyl SidingBrick
- Cooling:
- Central Air
- Flooring:
- Laminate FlooringVinyl FlooringCarpet Flooring
- Foundation Details:
- Slab
- Garage/Parking:
- Door OpenerGarageFront Entry Garage/ParkingAttached Garage
- Interior Features:
- Ceiling-HighWalk-In ClosetPantryLoftDouble Vanity
- Kitchen:
- DishwasherMicrowave OvenOvenGas CooktopGranite countertopKitchen IslandGas Oven
- Laundry facilities:
- Laundry Facilities On Upper LevelDryerWasherUtility/Laundry Room
- Property amenities:
- BasementSodWalk-in ShowerOutdoor LivingPatioFireplaceSmart Home SystemPorch
- Rooms:
- Flex RoomKitchenGuest RoomDining RoomFamily RoomLiving RoomPrimary Bedroom Upstairs
Room details
Master Bedroom
Dining Room
Bedroom 2

Get a consultation with our New Homes Expert
- See how your home builds wealth
- Plan your home-buying roadmap
- Discover hidden gems
Utility information
- Heating:
- Zoned Heating, Water Heater, Forced Air Heating
- Sewer:
- Public Sewer
- Utilities:
- Natural Gas Available, Underground Utilities, Sewer Available
- Water source:
- Public

Community details
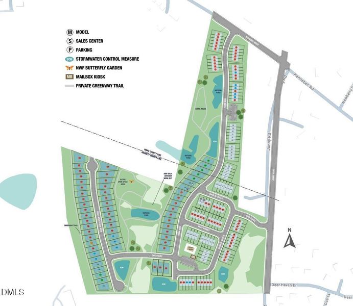
Camden
by Taylor Morrison, Willow Spring, NC
- 17 homes
- 5 plans
- 1,616 - 2,681 sqft
View Camden details
Community amenities
- Community Pool
- Sidewalks Available
More homes in Camden
- Home at address 258 Blue Butterfly Dr, Angier, NC 27501

Quincy
SavingsCamden Place
$384,999
- 5 bd
- 3 ba
- 2,681 sqft
258 Blue Butterfly Dr, Angier, NC 27501
- Home at address 282 Blue Butterfly Dr, Angier, NC 27501

Quincy
SavingsCamden Place
$416,999
- 5 bd
- 3 ba
- 2,681 sqft
282 Blue Butterfly Dr, Angier, NC 27501
- Home at address 266 Blue Butterfly Dr, Angier, NC 27501

Quincy
SavingsCamden Place
$421,999
- 5 bd
- 3 ba
- 2,681 sqft
266 Blue Butterfly Dr, Angier, NC 27501
Floor plans in Camden
About the builder - Taylor Morrison

- 321communities on Jome
- 1,527homes on Jome
Neighborhood
Home address
Schools in Harnett County Schools
GreatSchools’ Summary Rating calculation is based on 4 of the school’s themed ratings, including test scores, student/academic progress, college readiness, and equity. This information should only be used as a reference. Jome is not affiliated with GreatSchools and does not endorse or guarantee this information. Please reach out to schools directly to verify all information and enrollment eligibility. Data provided by GreatSchools.org © 2025
Places of interest
Getting around
Noise level
A Soundscore™ rating is a number between 50 (very loud) and 100 (very quiet) that tells you how loud a location is due to environmental noise.

Considering this home?
Our expert will guide your tour, in-person or virtual
Need more information?
Text or call (888) 545-5198
Financials
Estimated monthly payment
Let us help you find your dream home
How many bedrooms are you looking for?
Similar homes nearby
Recently added communities in this area
Nearby communities in Angier
New homes in nearby cities
More New Homes in Angier, NC
Taylor Morrison of Carolinas,, MLS 10148401
© 2025 Doorify MLS, Inc. of North Carolina. All rights reserved. Brokers make an effort to deliver accurate information, but buyers should independently verify any information on which they will rely in a transaction. The listing broker shall not be responsible for any typographical errors, misinformation, or misprints, and they shall be held totally harmless from any damages arising from reliance upon this data. This data is provided exclusively for consumers’ personal, non-commercial use. Some IDX listings have been excluded from this IDX display. Closed (sold) listings may have been listed and/or sold by a real estate firm other than the firm(s) featured on this website. Closed data is not available until the sale of the property is recorded in the MLS. Home sale data is not an appraisal, CMA, competitive or comparative market analysis, or home valuation of any property. Listings marked with an icon are provided courtesy of the Doorify MLS, Inc. of North Carolina, Internet Data Exchange Database.
Read moreLast checked May 31, 4:10 pm
- Jome
- New homes search
- North Carolina
- Raleigh-Durham Area
- Harnett County
- Angier
- Camden
- Camden Place
- 257 Blue Butterfly Dr, Angier, NC 27501
































