














Book your tour. Save an average of $18,473. We'll handle the rest.
We collect exclusive builder offers, book your tours, and support you from start to housewarming.
- Confirmed tours
- Get matched & compare top deals
- Expert help, no pressure
- No added fees
Estimated value based on Jome data, T&C apply

























- 3 bd
- 2 ba
- 1,649 sqft
7323 Hill Rd, Spring Hope, NC 27882
Why tour with Jome?
- No pressure toursTour at your own pace with no sales pressure
- Expert guidanceGet insights from our home buying experts
- Exclusive accessSee homes and deals not available elsewhere
Jome is featured in
- Single-Family
- Quick move-in
- $236.45/sqft
- 0.98-acre lot
Home description
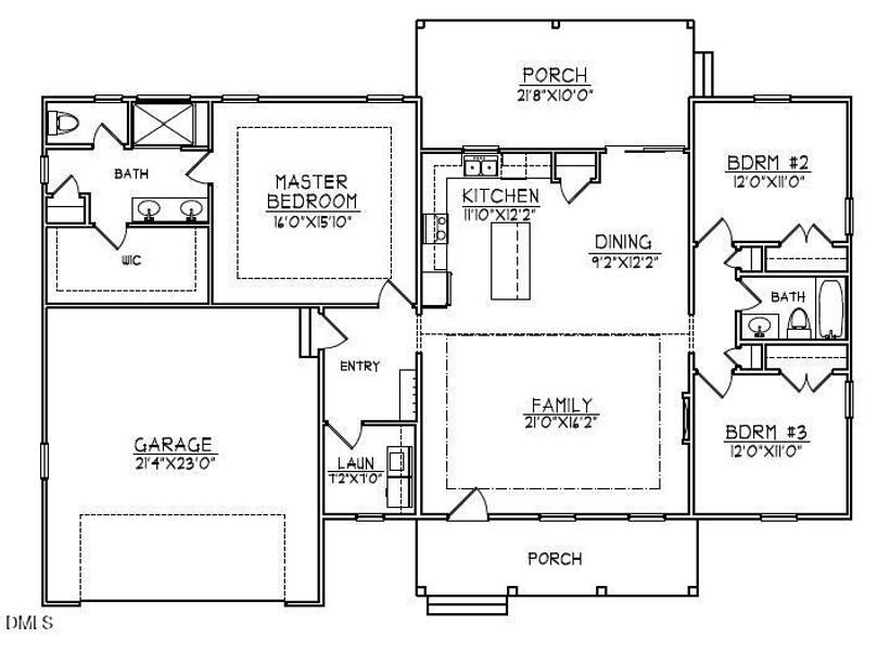
This 1,649 sq. ft. home features durable LVP flooring in main living areas, tray ceilings in the main bedroom and vaulted ceiling in the Family Room and Kitchen,. The stunning kitchen includes quartz countertops, a breakfast bar, under-cabinet lighting, LG stainless-steel smart WiFi appliances, a pull-out trash bin, wooden-shelved pantry, and a convenient island pop-up outlet with USB and wireless charging. The living room offers a cozy smart WiFi-enabled electric fireplace, perfect for gatherings. The spacious main suite includes a beautifully tiled walk-in shower with a frameless glass door, quartz vanity, comfort-height toilet, and a large walk-in closet with wooden shelving and built-in sweater boxes. Bedrooms 2 and 3 include night-light features and in-room USB ports. Energy-efficiency upgrades include Duke Energy HERO certification, smart WiFi thermostat, hybrid water heater, upgraded insulation, and a 15.2 SEER2 heat pump. Additional features include LED dimmable lighting, smart electronic front door lock, a two-car garage with smart Genie WiFi door operator, and painted garage walls. Pull down stairs with lots of extra storage above the garage. Reverse-osmosis drinking water system complete this exceptional home. Relaxing screened in porch overlooks peaceful backyard.
Jackie Robertson Team, Inc., MLS 10146955
Information last verified by Jome: Today at 4:21 AM (February 22, 2026)
Home highlights
Book your tour. Save an average of $18,473. We'll handle the rest.
We collect exclusive builder offers, book your tours, and support you from start to housewarming.
- Confirmed tours
- Get matched & compare top deals
- Expert help, no pressure
- No added fees
Estimated value based on Jome data, T&C apply
Home details
- Property status:
- Move-in ready
- Lot size (acres):
- 0.98
- Size:
- 1,649 sqft
- Stories:
- 1
- Beds:
- 3
- Baths:
- 2
- Garage spaces:
- 2
Construction details
- Year Built:
- 2026
- Roof:
- Roof Gutter, Shingle Roofing
Home features & finishes
- Construction Materials:
- Vinyl SidingStone
- Cooling:
- Ceiling Fan(s)Central Air
- Flooring:
- Vinyl Flooring
- Foundation Details:
- Brick/Mortar
- Garage/Parking:
- Door OpenerGarageAttached Garage
- Interior Features:
- Walk-In ClosetCrown MoldingTray CeilingBreakfast BarDouble Vanity
- Kitchen:
- DishwasherMicrowave OvenStainless Steel AppliancesQuartz countertopKitchen IslandKitchen Range
- Laundry facilities:
- DryerLaundry Facilities On Main LevelUtility/Laundry Room
- Lighting:
- Lighting Recessed
- Property amenities:
- BasementLandscapingWalk-in ShowerElectric FireplaceFireplaceSmart Home SystemPorch
- Rooms:
- Primary Bedroom On MainFamily RoomBreakfast AreaOpen Concept FloorplanPrimary Bedroom Downstairs
Room details
Master Bedroom
Kitchen
Dining Room

Get a consultation with our New Homes Expert
- See how your home builds wealth
- Plan your home-buying roadmap
- Discover hidden gems
Utility information
- Heating:
- Electric Heating, Water Heater, Forced Air Heating
- Utilities:
- Electricity Available, Cable Available, Water Available
Neighborhood
Home address
- City:
- Spring Hope
- County:
- Nash
- Zip Code:
- 27882
Schools in Nash-Rocky Mount Schools
- Grades 01-09Privatemiller creek mennonite9.6 mi339 preacher bald rdna
GreatSchools’ Summary Rating calculation is based on 4 of the school’s themed ratings, including test scores, student/academic progress, college readiness, and equity. This information should only be used as a reference. Jome is not affiliated with GreatSchools and does not endorse or guarantee this information. Please reach out to schools directly to verify all information and enrollment eligibility. Data provided by GreatSchools.org © 2025
Places of interest
Getting around
Natural hazards risk
Provided by FEMA

Considering this home?
Our expert will guide your tour, in-person or virtual
Need more information?
Text or call (888) 488-9243
Financials
Estimated monthly payment
Let us help you find your dream home
How many bedrooms are you looking for?
Similar homes nearby
Recently added communities in this area
Nearby communities in Spring Hope
New homes in nearby cities
More New Homes in Spring Hope, NC
Jackie Robertson Team, Inc., MLS 10146955
© 2025 Doorify MLS, Inc. of North Carolina. All rights reserved. Brokers make an effort to deliver accurate information, but buyers should independently verify any information on which they will rely in a transaction. The listing broker shall not be responsible for any typographical errors, misinformation, or misprints, and they shall be held totally harmless from any damages arising from reliance upon this data. This data is provided exclusively for consumers’ personal, non-commercial use. Some IDX listings have been excluded from this IDX display. Closed (sold) listings may have been listed and/or sold by a real estate firm other than the firm(s) featured on this website. Closed data is not available until the sale of the property is recorded in the MLS. Home sale data is not an appraisal, CMA, competitive or comparative market analysis, or home valuation of any property. Listings marked with an icon are provided courtesy of the Doorify MLS, Inc. of North Carolina, Internet Data Exchange Database.
Read moreLast checked Feb 22, 10:10 am
- Jome
- New homes search
- North Carolina
- Raleigh-Durham Area
- Nash County
- Spring Hope
- 7323 Hill Rd, Spring Hope, NC 27882



























