













Book your tour. Save an average of $18,473. We'll handle the rest.
We collect exclusive builder offers, book your tours, and support you from start to housewarming.
- Confirmed tours
- Get matched & compare top deals
- Expert help, no pressure
- No added fees
Estimated value based on Jome data, T&C apply
















Why tour with Jome?
- No pressure toursTour at your own pace with no sales pressure
- Expert guidanceGet insights from our home buying experts
- Exclusive accessSee homes and deals not available elsewhere
Jome is featured in
- Single-Family
- Quick move-in
- $155.68/sqft
- $200/annual HOA
Home description
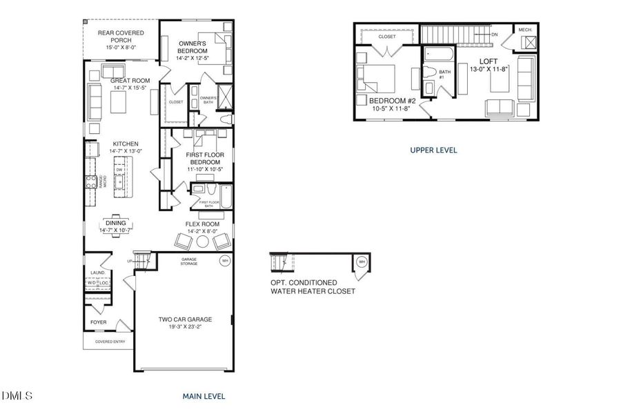
Time to Design: Meet the Fairview plan at Williams Run by Ryan Homes in Bailey, NC. This exclusive, new home plan combines the convenience of a ranch home and the space of a 2-story with a first floor Owner's Suite, guest suite, flex room, and laundry room. Upstairs you'll find a loft and additional guest bedroom with full bath. The open living space is bright and flows seamlessly with a central kitchen and oversized kitchen island. Enjoy a spacious homesite and extend your living space outdoors with a covered porch. All appliances are included, even the washer and dryer. Granite countertops and LVP flooring are included. Williams Run offers the lowest-priced single family homes in Bailey with easy access to Raleigh and Wilson.
Esteem Properties, MLS 10141126
May also be listed on the Ryan Homes website
Information last verified by Jome: Today at 4:22 AM (March 2, 2026)
Home highlights
Book your tour. Save an average of $18,473. We'll handle the rest.
We collect exclusive builder offers, book your tours, and support you from start to housewarming.
- Confirmed tours
- Get matched & compare top deals
- Expert help, no pressure
- No added fees
Estimated value based on Jome data, T&C apply
Home details
- Property status:
- Move-in ready
- Lot size (acres):
- 0.46
- Size:
- 1,927 sqft
- Stories:
- 1.5
- Beds:
- 3
- Baths:
- 3
- Garage spaces:
- 2
Construction details
- Builder Name:
- Ryan Homes
- Completion Date:
- May, 2026
- Year Built:
- 2026
- Roof:
- Shingle Roofing
Home features & finishes
- Construction Materials:
- Vinyl Siding
- Cooling:
- Central Air
- Flooring:
- Vinyl FlooringCarpet Flooring
- Foundation Details:
- Slab
- Garage/Parking:
- GarageFront Entry Garage/ParkingAttached Garage
- Interior Features:
- Walk-In ClosetPantry
- Kitchen:
- DishwasherMicrowave OvenDisposalGranite countertopKitchen IslandKitchen Range
- Laundry facilities:
- DryerWasherLaundry Facilities On Main LevelUtility/Laundry Room
- Property amenities:
- BasementSoaking TubWalk-in ShowerPatioSmart Home System

Get a consultation with our New Homes Expert
- See how your home builds wealth
- Plan your home-buying roadmap
- Discover hidden gems
Utility information
- Heating:
- Electric Heating

Community details
Williams Run
by Ryan Homes, Bailey, NC
- 11 homes
- 5 plans
- 1,296 - 2,203 sqft
View Williams Run details
More homes in Williams Run
- Home at address 33 Ladybug Dr, Bailey, NC 27807

Home
$249,990
- 3 bd
- 2 ba
- 1,296 sqft
33 Ladybug Dr, Bailey, NC 27807
- Home at address 8494 Butterfly Dr, Bailey, NC 27807

Home
$266,060
- 3 bd
- 2 ba
- 1,296 sqft
8494 Butterfly Dr, Bailey, NC 27807
- Home at address 8516 Bumble Bee Ct, Bailey, NC 27807

Home
$276,450
- 4 bd
- 2.5 ba
- 1,918 sqft
8516 Bumble Bee Ct, Bailey, NC 27807
- Home at address 8517 Butterfly Dr, Bailey, NC 27807

Home
$276,450
- 3 bd
- 3 ba
- 1,927 sqft
8517 Butterfly Dr, Bailey, NC 27807
- Home at address 8615 Butterfly Dr, Bailey, NC 27807

Home
$283,990
- 3 bd
- 2 ba
- 1,533 sqft
8615 Butterfly Dr, Bailey, NC 27807
- Home at address 8494 Bumble Bee Ct, Bailey, NC 27807

Home
$283,990
- 3 bd
- 2 ba
- 1,533 sqft
8494 Bumble Bee Ct, Bailey, NC 27807
Floor plans in Williams Run
About the builder - Ryan Homes
Neighborhood
Home address
Schools in Nash-Rocky Mount Schools
GreatSchools’ Summary Rating calculation is based on 4 of the school’s themed ratings, including test scores, student/academic progress, college readiness, and equity. This information should only be used as a reference. Jome is not affiliated with GreatSchools and does not endorse or guarantee this information. Please reach out to schools directly to verify all information and enrollment eligibility. Data provided by GreatSchools.org © 2025
Places of interest
Getting around

Considering this home?
Our expert will guide your tour, in-person or virtual
Need more information?
Text or call (888) 488-9243
Financials
Estimated monthly payment
Let us help you find your dream home
How many bedrooms are you looking for?
Similar homes nearby
Recently added communities in this area
Nearby communities in Bailey
New homes in nearby cities
More New Homes in Bailey, NC
Esteem Properties, MLS 10141126
© 2025 Doorify MLS, Inc. of North Carolina. All rights reserved. Brokers make an effort to deliver accurate information, but buyers should independently verify any information on which they will rely in a transaction. The listing broker shall not be responsible for any typographical errors, misinformation, or misprints, and they shall be held totally harmless from any damages arising from reliance upon this data. This data is provided exclusively for consumers’ personal, non-commercial use. Some IDX listings have been excluded from this IDX display. Closed (sold) listings may have been listed and/or sold by a real estate firm other than the firm(s) featured on this website. Closed data is not available until the sale of the property is recorded in the MLS. Home sale data is not an appraisal, CMA, competitive or comparative market analysis, or home valuation of any property. Listings marked with an icon are provided courtesy of the Doorify MLS, Inc. of North Carolina, Internet Data Exchange Database.
Read moreLast checked Mar 2, 4:10 pm
- Jome
- New homes search
- North Carolina
- Raleigh-Durham Area
- Nash County
- Bailey
- Williams Run
- 3894 Moth Ln, Bailey, NC 27807

































