

Book your tour. Save an average of $18,473. We'll handle the rest.
- Confirmed tours
- Get matched & compare top deals
- Expert help, no pressure
- No added fees
Estimated value based on Jome data, T&C apply
- 3 bd
- 2.5 ba
- 2,252 sqft
4733 Scenic Pines Dr, Hope Mills, NC 28348
Why tour with Jome?
- No pressure toursTour at your own pace with no sales pressure
- Expert guidanceGet insights from our home buying experts
- Exclusive accessSee homes and deals not available elsewhere
Jome is featured in
- Single-Family
- Quick move-in
- $164.17/sqft
- $375/annual HOA
Home description
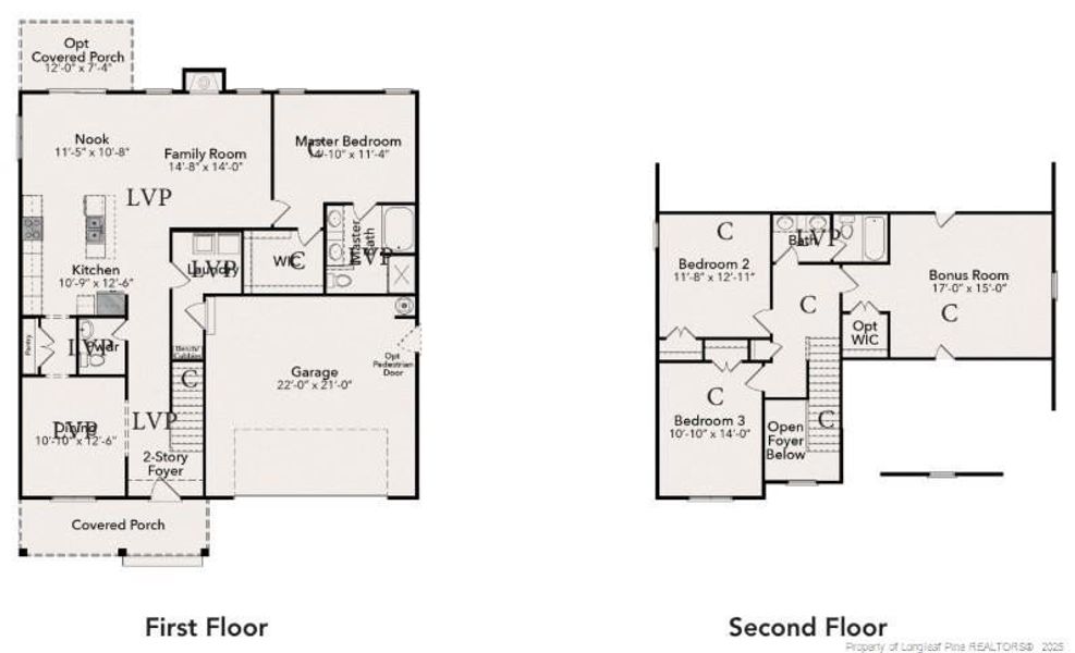
Welcome to Sheffield Farm North! Be the first to own the stunning Cumberland floor plan in this brand-new community. This thoughtfully designed 2,252 sq ft home features a spacious open-concept layout with the primary suite conveniently located on the main level. Upstairs, you'll find two additional bedrooms, a spacious bonus room, perfect for a home office, media room, or play area. Enjoy granite countertops, stainless steel appliances, and stylish finishes throughout. Relax on the covered front porch or entertain in the open living space that seamlessly flows. A 2-car garage provides plenty of storage and convenience. The Cumberland truly checks all the boxes
EXP REALTY OF TRIANGLE NC, MLS LP754694
Information last verified by Jome: Today at 4:24 AM (December 19, 2025)
Home highlights
Tight-knit military community with modern homes, schools, and amenities near Fort Bragg's airborne operations.
Book your tour. Save an average of $18,473. We'll handle the rest.
We collect exclusive builder offers, book your tours, and support you from start to housewarming.
- Confirmed tours
- Get matched & compare top deals
- Expert help, no pressure
- No added fees
Estimated value based on Jome data, T&C apply
Home details
- Property status:
- Move-in ready
- Lot size (acres):
- 0.24
- Size:
- 2,252 sqft
- Beds:
- 3
- Baths:
- 2
- Half baths:
- 1
- Garage spaces:
- 2
Construction details
- Year Built:
- 2025
Home features & finishes
- Cooling:
- Ceiling Fan(s)
- Flooring:
- Vinyl FlooringTile FlooringHardwood Flooring
- Garage/Parking:
- GarageAttached Garage
- Interior Features:
- Walk-In Closet
- Kitchen:
- DishwasherMicrowave OvenGranite countertopKitchen IslandKitchen Range
- Property amenities:
- BasementFireplacePorch
Utility information
- Heating:
- Heat Pump
Neighborhood
Home address
- City:
- Hope Mills
- County:
- Cumberland
- Zip Code:
- 28348
Schools in Cumberland County Schools
GreatSchools’ Summary Rating calculation is based on 4 of the school’s themed ratings, including test scores, student/academic progress, college readiness, and equity. This information should only be used as a reference. Jome is not affiliated with GreatSchools and does not endorse or guarantee this information. Please reach out to schools directly to verify all information and enrollment eligibility. Data provided by GreatSchools.org © 2025
Places of interest
Getting around
Air quality
Natural hazards risk
Climate hazards can impact homes and communities, with risks varying by location. These scores reflect the potential impact of natural disasters and climate-related risks on Cumberland County
Provided by FEMA

Considering this home?
Our expert will guide your tour, in-person or virtual
Need more information?
Text or call (888) 486-2818
Financials
Similar homes nearby
Recently added communities in this area
Nearby communities in Hope Mills
New homes in nearby cities
More New Homes in Hope Mills, NC
EXP REALTY OF TRIANGLE NC, MLS LP754694
© 2025 Doorify MLS, Inc. of North Carolina. All rights reserved. Brokers make an effort to deliver accurate information, but buyers should independently verify any information on which they will rely in a transaction. The listing broker shall not be responsible for any typographical errors, misinformation, or misprints, and they shall be held totally harmless from any damages arising from reliance upon this data. This data is provided exclusively for consumers’ personal, non-commercial use. Some IDX listings have been excluded from this IDX display. Closed (sold) listings may have been listed and/or sold by a real estate firm other than the firm(s) featured on this website. Closed data is not available until the sale of the property is recorded in the MLS. Home sale data is not an appraisal, CMA, competitive or comparative market analysis, or home valuation of any property. Listings marked with an icon are provided courtesy of the Doorify MLS, Inc. of North Carolina, Internet Data Exchange Database.
Read moreLast checked Dec 19, 4:10 am
- Jome
- New homes search
- North Carolina
- Cumberland County
- Hope Mills
- 4733 Scenic Pines Dr, Hope Mills, NC 28348
























