









Book your tour. Save an average of $18,473. We'll handle the rest.
- Confirmed tours
- Get matched & compare top deals
- Expert help, no pressure
- No added fees
Estimated value based on Jome data, T&C apply
- 3 bd
- 2.5 ba
- 2,252 sqft
4733 Scenic Pines Dr, Unit (Lot 242), Hope Mills, NC 28348
Why tour with Jome?
- No pressure toursTour at your own pace with no sales pressure
- Expert guidanceGet insights from our home buying experts
- Exclusive accessSee homes and deals not available elsewhere
Jome is featured in
- Single-Family
- Quick move-in
- $164.17/sqft
- $375/annual HOA
Home description
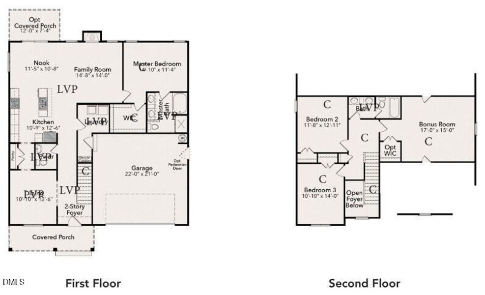
You owe it to yourself to take a closer look at our Cumberland Model—a
beautifully crafted home that blends comfort, style, and smart design in
one exceptional package. This stunning 2,252 sq ft floor plan offers a
spacious open-concept layout with the primary suite conveniently
located on the main level, ideal for everyday ease. Luxury vinyl plank
flooring throughout all common and wet areas adds durability and
modern appeal.
Just off the entry, the dining room or flex space makes a bold statement
with a coffered ceiling and eye-catching diamond-pattern accent
wall, perfect for entertaining, working from home, or creating a formal
gathering space.
The family room flows seamlessly into a stylish kitchen featuring quartz
countertops, a center island, subway tile backsplash, pantry, and a
generous 124+ sq ft eat-in dining area—perfect for both casual meals
and hosting guests.
The main-level primary suite is a true retreat, offering 155+ sq ft of
private space, a tasteful board-and-batten accent wall, and an ensuite
bath with dual quartz-top vanities and a spacious walk-in closet.
Upstairs, you'll find two additional bedrooms, a full bath, and a generous
255 sq ft bonus room or fourth bedroom, providing flexible space for a
home office, media room, or guest room.
Enjoy peaceful mornings on the covered rocking-chair ready front
porch or unwind in the evenings on the covered rear patio. To top it all
off, this home is located in the highly sought-after Grays Creek School
District—making the Cumberland Model an outstanding choice for
today's homebuyer.
eXp Realty, LLC - C, MLS 10137411
May also be listed on the JSJ Builders website
Information last verified by Jome: Today at 4:20 AM (February 3, 2026)
Book your tour. Save an average of $18,473. We'll handle the rest.
We collect exclusive builder offers, book your tours, and support you from start to housewarming.
- Confirmed tours
- Get matched & compare top deals
- Expert help, no pressure
- No added fees
Estimated value based on Jome data, T&C apply
Home details
- Property status:
- Move-in ready
- Lot size (acres):
- 0.24
- Size:
- 2,252 sqft
- Stories:
- 2
- Beds:
- 3
- Baths:
- 2
- Half baths:
- 1
- Garage spaces:
- 2
Construction details
- Builder Name:
- JSJ Builders
- Year Built:
- 2025
- Roof:
- Shingle Roofing
Home features & finishes
- Construction Materials:
- Vinyl Siding
- Cooling:
- Ceiling Fan(s)Central Air
- Flooring:
- Vinyl FlooringCarpet Flooring
- Foundation Details:
- Slab
- Garage/Parking:
- GarageAttached Garage
- Interior Features:
- Walk-In ClosetCoffered CeilingPantryDouble Vanity
- Kitchen:
- DishwasherMicrowave OvenStainless Steel AppliancesGranite countertopKitchen IslandKitchen Range
- Laundry facilities:
- Laundry Facilities On Main LevelUtility/Laundry Room
- Property amenities:
- BasementLandscapingPorch
- Rooms:
- Primary Bedroom On MainKitchenOpen Concept FloorplanPrimary Bedroom Downstairs
Room details
Master Bedroom
Kitchen
Dining Room

Get a consultation with our New Homes Expert
- See how your home builds wealth
- Plan your home-buying roadmap
- Discover hidden gems
Utility information
- Heating:
- Electric Heating, Heat Pump
About the builder - JSJ Builders
Neighborhood
Home address
- City:
- Hope Mills
- County:
- Cumberland
- Zip Code:
- 28348
Schools in Cumberland County Schools
GreatSchools’ Summary Rating calculation is based on 4 of the school’s themed ratings, including test scores, student/academic progress, college readiness, and equity. This information should only be used as a reference. Jome is not affiliated with GreatSchools and does not endorse or guarantee this information. Please reach out to schools directly to verify all information and enrollment eligibility. Data provided by GreatSchools.org © 2025
Places of interest
Getting around
Air quality
Natural hazards risk
Provided by FEMA

Considering this home?
Our expert will guide your tour, in-person or virtual
Need more information?
Text or call (888) 486-2818
Financials
Estimated monthly payment
Let us help you find your dream home
How many bedrooms are you looking for?
Similar homes nearby
Recently added communities in this area
Nearby communities in Hope Mills
New homes in nearby cities
More New Homes in Hope Mills, NC
eXp Realty, LLC - C, MLS 10137411
© 2025 Doorify MLS, Inc. of North Carolina. All rights reserved. Brokers make an effort to deliver accurate information, but buyers should independently verify any information on which they will rely in a transaction. The listing broker shall not be responsible for any typographical errors, misinformation, or misprints, and they shall be held totally harmless from any damages arising from reliance upon this data. This data is provided exclusively for consumers’ personal, non-commercial use. Some IDX listings have been excluded from this IDX display. Closed (sold) listings may have been listed and/or sold by a real estate firm other than the firm(s) featured on this website. Closed data is not available until the sale of the property is recorded in the MLS. Home sale data is not an appraisal, CMA, competitive or comparative market analysis, or home valuation of any property. Listings marked with an icon are provided courtesy of the Doorify MLS, Inc. of North Carolina, Internet Data Exchange Database.
Read moreLast checked Feb 2, 10:10 pm
- Jome
- New homes search
- North Carolina
- Cumberland County
- Hope Mills
- 4733 Scenic Pines Dr, Unit (Lot 242), Hope Mills, NC 28348























