




































- 3 bd
- 2.5 ba
- 2,343 sqft
28 Gerrad St, Unit 10, Franklinton, NC 27525
- Single-Family
- $160.18/sqft
- $357/annual HOA
- 0.14-acre lot
New Homes for Sale Near 28 Gerrad St, Unit 10, Franklinton, NC 27525
About this Home
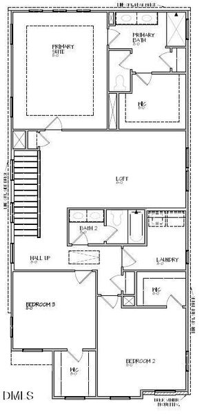
NEW PLAN!!! - Juniper, Foyer Entry - Opens to - Kitchen/Breakfast/Family Space. 12x26 Covered Porch off Rear of Home. GREAT for Entertaining or Just Relaxing. Quartz Countertops Kitchen/Bathrooms, Upgrades Cabinets, GE Gas Appliances, Drop Zone off Garage Entry, Roman Shower Primary Bath w/tile Seat, Primary, Loft and 2 Secondary Bedrooms 2nd Floor. Oak Staircase LVP Entire 1st Floor, Baths and Laundry.
Home loaded with upgrades!!!!!
Contract Susan 919-796-2077
Essex Village is The Most Affordable Housing in Franklin County
DRB Group North Carolina LLC, MLS 10129939
May also be listed on the DRB Homes website
Information last verified by Jome: Today at 4:05 AM (May 27, 2026)
Home details
- Property status:
- Sold
- Lot size (acres):
- 0.14
- Size:
- 2,343 sqft
- Stories:
- 2
- Beds:
- 3
- Baths:
- 2
- Half baths:
- 1
- Garage spaces:
- 2
Construction details
- Builder Name:
- DRB Homes
- Year Built:
- 2025
- Roof:
- Roof Gutter, Shingle Roofing
Home features & finishes
- Appliances:
- Exhaust FanExhaust Fan Vented
- Construction Materials:
- Vinyl Siding
- Cooling:
- Central Air
- Flooring:
- Vinyl FlooringCarpet Flooring
- Foundation Details:
- Slab
- Garage/Parking:
- Door OpenerGarageAttached Garage
- Interior Features:
- Walk-In ClosetFoyerPantrySeparate ShowerDouble Vanity
- Kitchen:
- DishwasherMicrowave OvenDisposalStainless Steel AppliancesGas CooktopQuartz countertopKitchen IslandGas OvenKitchen Range
- Laundry facilities:
- Laundry Facilities On Upper LevelUtility/Laundry Room
- Property amenities:
- BasementBackyardLandscapingWalk-in ShowerYardPorch
- Rooms:
- KitchenOpen Concept Floorplan
Room details
Master Bedroom
Kitchen
Family Room
Utility information
- Heating:
- Zoned Heating, Water Heater, Gas Heating, Forced Air Heating
- Sewer:
- Public Sewer
- Water source:
- Public

Community details
Essex Village
by DRB Homes, Franklinton, NC
- 10 homes
- 6 plans
- 1,573 - 2,470 sqft
View Essex Village details
Community amenities
- Sidewalks Available
More homes in Essex Village
- Home at address 205 Carnaby Ln, Franklinton, NC 27525

$259,270
Move-in ready- 3 bd
- 2.5 ba
- 1,588 sqft
205 Carnaby Ln, Franklinton, NC 27525
- Home at address 228 Alberta Dr, Unit 145, Franklinton, NC 27525

$262,455
Move-in ready- 3 bd
- 2.5 ba
- 1,612 sqft
228 Alberta Dr, Unit 145, Franklinton, NC 27525
- Home at address 203 Carnaby Ln, Franklinton, NC 27525

$264,305
Move-in ready- 3 bd
- 2.5 ba
- 1,586 sqft
203 Carnaby Ln, Franklinton, NC 27525
- Home at address 230 Alberta Dr, Unit 146, Franklinton, NC 27525

$268,765
Move-in ready- 3 bd
- 2.5 ba
- 1,573 sqft
230 Alberta Dr, Unit 146, Franklinton, NC 27525
- Home at address 205 Carnaby Ln, Franklinton, NC 27525

$272,250
Move-in ready- 3 bd
- 2.5 ba
- 1,573 sqft
205 Carnaby Ln, Franklinton, NC 27525
- Home at address 31 Gerrard St, Unit 72, Franklinton, NC 27525

$301,930
Move-in ready- 3 bd
- 2.5 ba
- 1,872 sqft
31 Gerrard St, Unit 72, Franklinton, NC 27525
Floor plans in Essex Village
About the builder - DRB Homes
Neighborhood
Home address
- City:
- Franklinton
- County:
- Franklin
- Zip Code:
- 27525
Schools in Franklin County Schools
GreatSchools’ Summary Rating calculation is based on 4 of the school’s themed ratings, including test scores, student/academic progress, college readiness, and equity. This information should only be used as a reference. Jome is not affiliated with GreatSchools and does not endorse or guarantee this information. Please reach out to schools directly to verify all information and enrollment eligibility. Data provided by GreatSchools.org © 2025
Places of interest
Getting around
Air quality
Financials
Nearby communities in Franklinton
Homes in Franklinton by DRB Homes
Recently added communities in this area
Other Builders in Franklinton, NC
Nearby sold homes
New homes in nearby cities
More New Homes in Franklinton, NC
DRB Group North Carolina LLC, MLS 10129939
© 2025 Doorify MLS, Inc. of North Carolina. All rights reserved. Brokers make an effort to deliver accurate information, but buyers should independently verify any information on which they will rely in a transaction. The listing broker shall not be responsible for any typographical errors, misinformation, or misprints, and they shall be held totally harmless from any damages arising from reliance upon this data. This data is provided exclusively for consumers’ personal, non-commercial use. Some IDX listings have been excluded from this IDX display. Closed (sold) listings may have been listed and/or sold by a real estate firm other than the firm(s) featured on this website. Closed data is not available until the sale of the property is recorded in the MLS. Home sale data is not an appraisal, CMA, competitive or comparative market analysis, or home valuation of any property. Listings marked with an icon are provided courtesy of the Doorify MLS, Inc. of North Carolina, Internet Data Exchange Database.
Read moreLast checked May 27, 4:10 pm
- Jome
- New homes search
- North Carolina
- Raleigh-Durham Area
- Franklin County
- Franklinton
- Essex Village
- 28 Gerrad St, Unit 10, Franklinton, NC 27525









































































