




Book your tour. Save an average of $18,473. We'll handle the rest.
We collect exclusive builder offers, book your tours, and support you from start to housewarming.
- Confirmed tours
- Get matched & compare top deals
- Expert help, no pressure
- No added fees
Estimated value based on Jome data, T&C apply
- 3 bd
- 3 ba
- 2,169 sqft
1132 Salford Ct, Unit Lot 146, Durham, NC 27703
Why tour with Jome?
- No pressure toursTour at your own pace with no sales pressure
- Expert guidanceGet insights from our home buying experts
- Exclusive accessSee homes and deals not available elsewhere
Jome is featured in
- Single-Family
- Quick move-in
- $345.74/sqft
- $250/monthly HOA
Home description
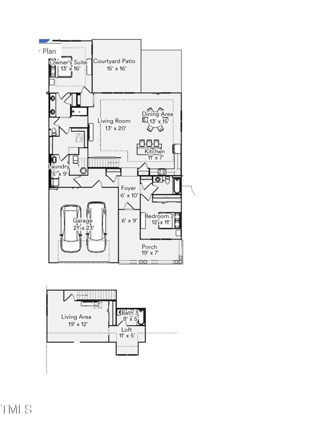
SPECIAL PRICING HAS ALREADY BEEN APPLIED. The Salerno - a thoughtfully crafted design offering functionality and modern elegance. This striking home boasts an airy open floor plan featuring dramatic nine-foot ceilings. At the heart of the home, a large kitchen serves as the central gathering point, seamlessly connecting to the open dining and living areas and offering direct access to the private outdoor courtyard.
• Step into the calming owner's suite, which offers a private entrance to the courtyard where you can relax and unwind
• Revel in the inviting open kitchen, ideal for entertaining and socializing
• Discover an optional and versatile bonus suite, brimming with potential for hosting guests or personalized to suit your needs
From the abundance of natural light that fills the space to the luxurious yet cozy atmosphere, the Salerno presents a perfect blend of refined living and casual comfort. Whether relaxing with loved ones or hosting gatherings, this home is designed to cater to your desires and lifestyle, ensuring an exceptional living experience for you and your family.
Welcome to The Courtyards at Oak Grove, Durham's newest luxury community, where modern living meets tranquility. Nestled in a serene setting, our boutique community offers beautifully designed ranch homes and townhomes that invite abundant natural light into spacious interiors. Each home features a first- floor owner's suite and a private outdoor space, perfect for relaxing or entertaining. Luxury Ranch Homes & Townhomes: Thoughtfully designed for comfort and style, with spacious layouts and high-end finishes. Single-Level Living: We've designed our homes with comfort and convenience in mind. Enjoy the ease of single-level living, with all your main living spaces on one floor. Private Outdoor Space: Each home boasts a private courtyard, offering a personal retreat for relaxation and outdoor enjoyment. Low-maintenance community: With lawn maintenance taken care of for you, you can spend less time on upkeep and more time enjoying the lifestyle you love. At The Courtyards at Oak Grove, we believe in enhancing your well-being and leisure time. Imagine a lifestyle where every day feels like a retreat. You'll have access to a range of modern amenities, from a clubhouse with a fitness facility to a refreshing pool, pickleball courts, scenic walking trails, inviting pocket parks, and even a dedicated dog park for your furry friends. Embrace a vibrant community where luxury meets convenience and where neighbors become friends. Discover your new home at The Courtyards at Oak Grove--a place where every moment is designed with you in mind. Schedule your visit today and how you can Live Well Every Day.
Plowman Properties LLC., MLS 10116027
May also be listed on the Epcon Communities website
Information last verified by Jome: Yesterday at 4:17 AM (March 3, 2026)
Home highlights
Expansive Raleigh-area park with forested trails, fishing lakes, and quiet escapes near Triangle suburbs.
Book your tour. Save an average of $18,473. We'll handle the rest.
We collect exclusive builder offers, book your tours, and support you from start to housewarming.
- Confirmed tours
- Get matched & compare top deals
- Expert help, no pressure
- No added fees
Estimated value based on Jome data, T&C apply
Home details
- Property status:
- Move-in ready
- Lot size (acres):
- 0.16
- Size:
- 2,169 sqft
- Stories:
- 2
- Beds:
- 3
- Baths:
- 3
- Garage spaces:
- 2
Construction details
- Builder Name:
- Epcon Communities
- Year Built:
- 2025
- Roof:
- Shingle Roofing, Fiberglass Roofing
Home features & finishes
- Appliances:
- Exhaust Fan Vented
- Construction Materials:
- Stone
- Cooling:
- Central Air
- Flooring:
- Ceramic FlooringLaminate FlooringCarpet FlooringTile Flooring
- Foundation Details:
- Slab
- Garage/Parking:
- Door OpenerGarageOn-Site Garage/ParkingFront Entry Garage/ParkingCommon Garage/ParkingAttached Garage
- Home amenities:
- Home Accessibility FeaturesENERGY STAR Certified
- Interior Features:
- Walk-In ClosetSliding DoorsTray CeilingDouble Vanity
- Kitchen:
- DishwasherMicrowave OvenOvenRefrigeratorGas CooktopGranite countertopKitchen IslandCooktop
- Laundry facilities:
- DryerWasherLaundry Facilities On Main LevelUtility/Laundry Room
- Property amenities:
- Cul-de-sacBasementGas Log FireplaceLandscapingWalk-in ShowerFireplaceSmart Home System
- Rooms:
- Primary Bedroom On MainDining RoomFamily RoomOpen Concept FloorplanPrimary Bedroom Downstairs
Room details
Master Bedroom
Dining Room
Living Room

Get a consultation with our New Homes Expert
- See how your home builds wealth
- Plan your home-buying roadmap
- Discover hidden gems
Utility information
- Heating:
- Zoned Heating, Water Heater, Central Heating, Forced Air Heating
- Utilities:
- Electricity Available, Natural Gas Available, Underground Utilities, Phone Available, Cable Available, Sewer Available, Water Available

Community details
The Courtyards at Oak Grove
by Epcon Communities, Durham, NC
- 8 homes
- 2,169 - 2,973 sqft
View The Courtyards at Oak Grove details
Community amenities
- Fitness Center/Exercise Area
- Club House
- Community Pool
- Park Nearby
- Sidewalks Available
More homes in The Courtyards at Oak Grove
- Home at address 704 Blackpool Dr, Durham, NC 27703

Home
$540,315
- 3 bd
- 2.5 ba
- 2,410 sqft
704 Blackpool Dr, Durham, NC 27703
- Home at address 712 Blackpool Dr, Durham, NC 27703

Home
$569,855
- 3 bd
- 2.5 ba
- 2,410 sqft
712 Blackpool Dr, Durham, NC 27703
- Home at address 1136 Salford Ct, Unit Lot 147, Durham, NC 27703

Home
$707,113
- 3 bd
- 3 ba
- 2,571 sqft
1136 Salford Ct, Unit Lot 147, Durham, NC 27703
- Home at address 2000 Grimsby Ct, Durham, NC 27703

Home
$750,943
- 3 bd
- 3 ba
- 2,571 sqft
2000 Grimsby Ct, Durham, NC 27703
- Home at address 1116 Salford Ct, Unit 142, Durham, NC 27703

Home
$756,456
- 3 bd
- 3 ba
- 2,836 sqft
1116 Salford Ct, Unit 142, Durham, NC 27703
- Home at address 1128 Salford Ct, Unit Lot 145, Durham, NC 27703

Home
$789,900
- 3 bd
- 3 ba
- 2,973 sqft
1128 Salford Ct, Unit Lot 145, Durham, NC 27703
About the builder - Epcon Communities
Neighborhood
Home address
Schools in Durham Public Schools
GreatSchools’ Summary Rating calculation is based on 4 of the school’s themed ratings, including test scores, student/academic progress, college readiness, and equity. This information should only be used as a reference. Jome is not affiliated with GreatSchools and does not endorse or guarantee this information. Please reach out to schools directly to verify all information and enrollment eligibility. Data provided by GreatSchools.org © 2025
Places of interest
Getting around
Air quality

Considering this home?
Our expert will guide your tour, in-person or virtual
Need more information?
Text or call (888) 488-9243
Financials
Estimated monthly payment
Let us help you find your dream home
How many bedrooms are you looking for?
Similar homes nearby
Recently added communities in this area
Nearby communities in Durham
New homes in nearby cities
More New Homes in Durham, NC
Plowman Properties LLC., MLS 10116027
© 2025 Doorify MLS, Inc. of North Carolina. All rights reserved. Brokers make an effort to deliver accurate information, but buyers should independently verify any information on which they will rely in a transaction. The listing broker shall not be responsible for any typographical errors, misinformation, or misprints, and they shall be held totally harmless from any damages arising from reliance upon this data. This data is provided exclusively for consumers’ personal, non-commercial use. Some IDX listings have been excluded from this IDX display. Closed (sold) listings may have been listed and/or sold by a real estate firm other than the firm(s) featured on this website. Closed data is not available until the sale of the property is recorded in the MLS. Home sale data is not an appraisal, CMA, competitive or comparative market analysis, or home valuation of any property. Listings marked with an icon are provided courtesy of the Doorify MLS, Inc. of North Carolina, Internet Data Exchange Database.
Read moreLast checked Mar 3, 10:10 pm
- Jome
- New homes search
- North Carolina
- Raleigh-Durham Area
- Durham County
- Durham
- The Courtyards at Oak Grove
- 1132 Salford Ct, Unit Lot 146, Durham, NC 27703




























