














Book your tour. Save an average of $18,473. We'll handle the rest.
- Confirmed tours
- Get matched & compare top deals
- Expert help, no pressure
- No added fees
Estimated value based on Jome data, T&C apply























Why tour with Jome?
- No pressure toursTour at your own pace with no sales pressure
- Expert guidanceGet insights from our home buying experts
- Exclusive accessSee homes and deals not available elsewhere
Jome is featured in
- Single-Family
- Quick move-in
- $230.11/sqft
- $250/monthly HOA
Home description
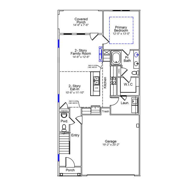
Bright, beautiful, and thoughtfully designed—this end-unit townhome at Ovation at Sweetbrier offers exceptional main-level living in Durham’s newest 55+ community. With added windows that welcome natural light and a private side location, this home delivers both warmth and quiet comfort. Step into an open-concept layout where soaring ceilings and expansive living spaces make everyday moments feel special. The gourmet kitchen shines with quartz countertops, a large island, and stainless steel appliances including a gas cooktop, built-in microwave, and wall oven—perfect for both casual meals and entertaining guests. Luxury vinyl plank flooring extends throughout the main level, combining modern style with durability. The main-floor primary suite offers a spacious walk-in closet and an elegant bath with a tiled walk-in shower and dual vanity. Extend your living space to the outdoors with a covered rear porch, ideal for enjoying morning coffee, reading in the afternoon sun, or unwinding with friends after dinner—rain or shine. Upstairs, the flexible loft creates the perfect space for a hobby room, office, or guest retreat. Two additional bedrooms, a full bath, and a walk-in storage room complete the second floor. At Ovation, your time is your own—exterior maintenance is included, so you can focus on enjoying the amenities: a clubhouse, pool, hot tub, fitness center, pickleball courts, dog park, outdoor chess park, and scenic walking trails.
May also be listed on the Mungo Homes website
Information last verified by Jome: Yesterday at 5:34 AM (January 4, 2026)
Home highlights
Expansive Raleigh-area park with forested trails, fishing lakes, and quiet escapes near Triangle suburbs.
Book your tour. Save an average of $18,473. We'll handle the rest.
We collect exclusive builder offers, book your tours, and support you from start to housewarming.
- Confirmed tours
- Get matched & compare top deals
- Expert help, no pressure
- No added fees
Estimated value based on Jome data, T&C apply
Home details
- Property status:
- Move-in ready
- Size:
- 1,883 sqft
- Stories:
- 2
- Beds:
- 3
- Baths:
- 2
- Half baths:
- 1
- Garage spaces:
- 2
Construction details
- Builder Name:
- Mungo Homes
- Completion Date:
- December, 2025
Home features & finishes
- Garage/Parking:
- Garage
- Rooms:
- Primary Bedroom Downstairs

Community details
Ovation at Sweetbrier
by Mungo Homes, Durham, NC
- 42 homes
- 9 plans
- 1,383 - 2,216 sqft
View Ovation at Sweetbrier details
More homes in Ovation at Sweetbrier
Floor plans in Ovation at Sweetbrier
About the builder - Mungo Homes
Neighborhood
Home address
Schools in Durham Public Schools
- Grades PK-03Privatetutorial -1/2 christian schools3.5 mi3026 holloway stna
GreatSchools’ Summary Rating calculation is based on 4 of the school’s themed ratings, including test scores, student/academic progress, college readiness, and equity. This information should only be used as a reference. Jome is not affiliated with GreatSchools and does not endorse or guarantee this information. Please reach out to schools directly to verify all information and enrollment eligibility. Data provided by GreatSchools.org © 2025
Places of interest
Getting around
Air quality
Natural hazards risk
Climate hazards can impact homes and communities, with risks varying by location. These scores reflect the potential impact of natural disasters and climate-related risks on Durham County
Provided by FEMA

Considering this home?
Our expert will guide your tour, in-person or virtual
Need more information?
Text or call (888) 486-2818
Financials
Estimated monthly payment
Similar homes nearby
Recently added communities in this area
Nearby communities in Durham
New homes in nearby cities
More New Homes in Durham, NC
- Jome
- New homes search
- North Carolina
- Raleigh-Durham Area
- Durham County
- Durham
- Ovation at Sweetbrier
- 1101 Bell Heather Rd, Durham, NC 27703












































