














Book your tour. Save an average of $18,473. We'll handle the rest.
We collect exclusive builder offers, book your tours, and support you from start to housewarming.
- Confirmed tours
- Get matched & compare top deals
- Expert help, no pressure
- No added fees
Estimated value based on Jome data, T&C apply































- 3 bd
- 2.5 ba
- 1,883 sqft
1105 Bell Heather Rd, Unit 3, Durham, NC 27703
Why tour with Jome?
- No pressure toursTour at your own pace with no sales pressure
- Expert guidanceGet insights from our home buying experts
- Exclusive accessSee homes and deals not available elsewhere
Jome is featured in
- Townhouse
- Quick move-in
- $206.59/sqft
- $125/monthly HOA
Home description
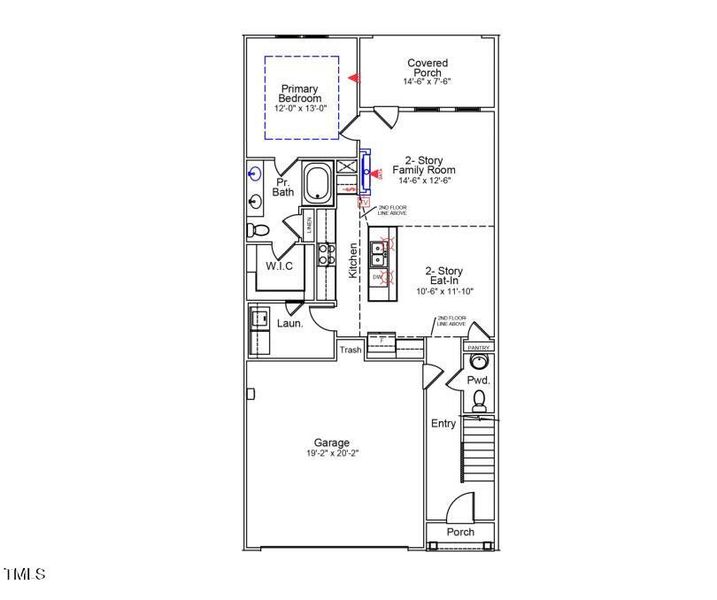
Enjoy 55+ living in this low-maintenance townhome, featuring a spacious main-level primary suite with a luxurious, spa-inspired bath—complete with a walk-in shower and double vanities for your comfort. Open living spaces offer convenience and an inviting atmosphere. The covered porch is perfect for relaxing mornings or evenings. A two-car garage provides extra storage, while upstairs guest rooms and a loft offer flexible space for hobbies or visitors. Bright, spacious, and affordable, this home is ideal for your next chapter!
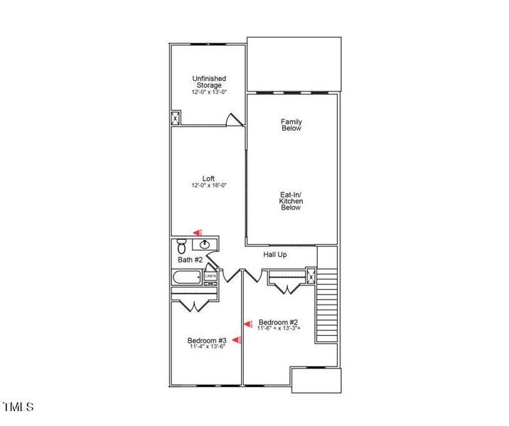
Upstairs, discover guest rooms and flexible spaces that are perfect for visiting family, crafting, or pursuing your favorite hobbies. A beautifully designed bathroom and a versatile loft create inviting areas for relaxation, reading, or entertainment. The striking two-story family room fills the home with natural light, creating a warm and welcoming atmosphere. Affordability and low-maintenance living make this home a must-see for those seeking comfort, community, and peace of mind in their next chapter!
Clayton Properties Group INC, MLS 10114492
May also be listed on the Mungo Homes website
Information last verified by Jome: Today at 4:25 AM (February 16, 2026)
Home highlights
Expansive Raleigh-area park with forested trails, fishing lakes, and quiet escapes near Triangle suburbs.
Book your tour. Save an average of $18,473. We'll handle the rest.
We collect exclusive builder offers, book your tours, and support you from start to housewarming.
- Confirmed tours
- Get matched & compare top deals
- Expert help, no pressure
- No added fees
Estimated value based on Jome data, T&C apply
Home details
- Property status:
- Move-in ready
- Lot size (acres):
- 0.06
- Size:
- 1,883 sqft
- Stories:
- 2
- Beds:
- 3
- Baths:
- 2
- Half baths:
- 1
- Garage spaces:
- 2
Construction details
- Builder Name:
- Mungo Homes
- Year Built:
- 2025
- Roof:
- Roof Gutter, Shingle Roofing
Home features & finishes
- Appliances:
- Exhaust Fan Vented
- Construction Materials:
- CementBrick
- Cooling:
- Ceiling Fan(s)Central Air
- Flooring:
- Vinyl FlooringCarpet FlooringTile Flooring
- Foundation Details:
- Slab
- Garage/Parking:
- Door OpenerGarageFront Entry Garage/ParkingAttached Garage
- Home amenities:
- Home Accessibility Features
- Interior Features:
- Ceiling-HighWalk-In ClosetPantryStorageTray CeilingDouble Vanity
- Kitchen:
- DishwasherMicrowave OvenOvenDisposalStainless Steel AppliancesGas CooktopBuilt-In OvenQuartz countertopKitchen IslandCooktopDouble OvenElectric Oven
- Laundry facilities:
- DryerLaundry Facilities On Main LevelUtility/Laundry Room
- Lighting:
- Lighting Recessed
- Property amenities:
- BasementWalk-in ShowerFireplacePorch
- Rooms:
- Primary Bedroom On MainKitchenFamily RoomOpen Concept FloorplanPrimary Bedroom Downstairs

Get a consultation with our New Homes Expert
- See how your home builds wealth
- Plan your home-buying roadmap
- Discover hidden gems
Utility information
- Heating:
- Zoned Heating, Water Heater, Central Heating, Gas Heating, Forced Air Heating, Tankless water heater

Community details
Ovation at Sweetbrier
by Mungo Homes, Durham, NC
- 48 homes
- 7 plans
- 1,433 - 2,216 sqft
View Ovation at Sweetbrier details
Community amenities
- Fitness Center/Exercise Area
- Club House
- Tennis Courts
- Community Pool
- Park Nearby
- Sidewalks Available
More homes in Ovation at Sweetbrier
- Home at address 1205 Bell Heather Rd, Unit 18, Durham, NC 27703

Home
$379,000
- 3 bd
- 2.5 ba
- 1,856 sqft
1205 Bell Heather Rd, Unit 18, Durham, NC 27703
- Home at address 1103 Bell Heather Rd, Durham, NC 27703

Hyacinth
$379,000
- 3 bd
- 2.5 ba
- 1,856 sqft
1103 Bell Heather Rd, Durham, NC 27703
- Home at address 1103 Bell Heather Rd, Unit 2, Durham, NC 27703

Home
$379,000
- 3 bd
- 2.5 ba
- 1,856 sqft
1103 Bell Heather Rd, Unit 2, Durham, NC 27703
- Home at address 1205 Bell Heather Rd, Durham, NC 27703

Hyacinth
$379,000
- 3 bd
- 2.5 ba
- 1,856 sqft
1205 Bell Heather Rd, Durham, NC 27703
- Home at address 1203 Bell Heather Rd, Durham, NC 27703

Hyacinth
$389,000
- 3 bd
- 2.5 ba
- 1,856 sqft
1203 Bell Heather Rd, Durham, NC 27703
- Home at address 1203 Bell Heather Rd, Unit 17, Durham, NC 27703

Home
$389,000
- 3 bd
- 2.5 ba
- 1,856 sqft
1203 Bell Heather Rd, Unit 17, Durham, NC 27703
Floor plans in Ovation at Sweetbrier
- View details for Hyacinth - Vanguard Collection

Hyacinth - Vanguard Collection
$370,000+- 3 bd
- 2.5 ba
- 1,856 sqft
- View details for Hydrangea - Vanguard Collection

Hydrangea - Vanguard Collection
$380,000+- 3 bd
- 2.5 ba
- 1,883 sqft
About the builder - Mungo Homes
Neighborhood
Home address
Schools in Durham Public Schools
- Grades PK-03Privatetutorial -1/2 christian schools3.5 mi3026 holloway stna
GreatSchools’ Summary Rating calculation is based on 4 of the school’s themed ratings, including test scores, student/academic progress, college readiness, and equity. This information should only be used as a reference. Jome is not affiliated with GreatSchools and does not endorse or guarantee this information. Please reach out to schools directly to verify all information and enrollment eligibility. Data provided by GreatSchools.org © 2025
Places of interest
Getting around
Air quality
Noise level
A Soundscore™ rating is a number between 50 (very loud) and 100 (very quiet) that tells you how loud a location is due to environmental noise.

Considering this home?
Our expert will guide your tour, in-person or virtual
Need more information?
Text or call (888) 488-9243
Financials
Estimated monthly payment
Let us help you find your dream home
How many bedrooms are you looking for?
Similar homes nearby
Recently added communities in this area
Nearby communities in Durham
New homes in nearby cities
More New Homes in Durham, NC
Clayton Properties Group INC, MLS 10114492
© 2025 Doorify MLS, Inc. of North Carolina. All rights reserved. Brokers make an effort to deliver accurate information, but buyers should independently verify any information on which they will rely in a transaction. The listing broker shall not be responsible for any typographical errors, misinformation, or misprints, and they shall be held totally harmless from any damages arising from reliance upon this data. This data is provided exclusively for consumers’ personal, non-commercial use. Some IDX listings have been excluded from this IDX display. Closed (sold) listings may have been listed and/or sold by a real estate firm other than the firm(s) featured on this website. Closed data is not available until the sale of the property is recorded in the MLS. Home sale data is not an appraisal, CMA, competitive or comparative market analysis, or home valuation of any property. Listings marked with an icon are provided courtesy of the Doorify MLS, Inc. of North Carolina, Internet Data Exchange Database.
Read moreLast checked Feb 16, 4:10 pm
- Jome
- New homes search
- North Carolina
- Raleigh-Durham Area
- Durham County
- Durham
- Ovation at Sweetbrier
- 1105 Bell Heather Rd, Unit 3, Durham, NC 27703

































