




























- 3 bd
- 2.5 ba
- 1,551 sqft
2013 McDonald Dr, Charlotte, NC 28216
- Townhouse
- $193.1/sqft
- 0.10-acre lot
- 251 days on Jome
New Homes for Sale Near 2013 McDonald Dr, Charlotte, NC 28216
About this Home
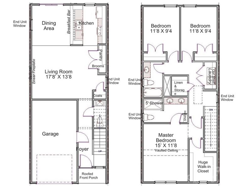
New Construction Save $$$ each month with NO HOA and create your own OASIS in your oversized yard! Builder is offering excellent incentives to help with closing cost and rate-buy downs when using one of their preferred lenders. Loaded with upgrades & 1 car garage. This is a stunning townhome. This is an end unit with modern fireplace. The main level has luxury vinyl plank wood look flooring. The kitchen features granite countertops, stainless steel appliances, white cabinets, a huge pantry and a breakfast bar. The dining area can accommodate a large table. Upstairs the primary bedroom has a huge walk-in closet & a deluxe bathroom with double sink & oversized shower. The two secondary bedrooms are good sizes & share a secondary bathroom. The laundry closet is upstairs as well as a linen closet & a large storage closet. There are no restrictions to you fencing your entire backyard. 12 Mins to UNCC, 9 Mins to Uptown Charlotte, 13 min from Airport.
EXP Realty LLC Mooresville, MLS CAR4281636
May also be listed on the SouthCraft Builders website
Information last verified by Jome: Tuesday at 5:00 PM (November 4, 2025)
Home details
- Property status:
- Sold
- Neighborhood:
- Slater Rd-Hamilton Circle
- Lot size (acres):
- 0.10
- Size:
- 1,551 sqft
- Stories:
- 2
- Beds:
- 3
- Baths:
- 2
- Half baths:
- 1
- Garage spaces:
- 1
Construction details
- Builder Name:
- SouthCraft Builders
- Year Built:
- 2025
Home features & finishes
- Construction Materials:
- Stone
- Cooling:
- Ceiling Fan(s)Central Air
- Flooring:
- Vinyl FlooringCarpet Flooring
- Foundation Details:
- Slab
- Garage/Parking:
- Door OpenerGarageAttached Garage
- Interior Features:
- Walk-In ClosetFoyerPantryBreakfast Bar
- Kitchen:
- DishwasherMicrowave OvenDisposalSelf Cleaning OvenKitchen Range
- Laundry facilities:
- Laundry Facilities On Upper LevelLaundry Facilities In Closet
- Pets:
- Pets Allowed
- Property amenities:
- FireplacePorch
- Rooms:
- AtticFamily RoomBreakfast Area
- Security system:
- Carbon Monoxide Detector
Utility information
- Heating:
- Heat Pump, Zoned Heating, Water Heater
About the builder - SouthCraft Builders
Neighborhood
Home address
- Neighborhood:
- Slater Rd-Hamilton Circle
- City:
- Charlotte
- County:
- Mecklenburg
- Zip Code:
- 28216
Schools in Charlotte-Mecklenburg Schools
- Grades KG-04Privatefriendship day school for the sciences & the arts0.6 mi3400 beatties ford rdna
- Grades PK-12Privatebrisbane academy1.0 mi5901 statesville rdna
GreatSchools’ Summary Rating calculation is based on 4 of the school’s themed ratings, including test scores, student/academic progress, college readiness, and equity. This information should only be used as a reference. Jome is not affiliated with GreatSchools and does not endorse or guarantee this information. Please reach out to schools directly to verify all information and enrollment eligibility. Data provided by GreatSchools.org © 2025
Places of interest
Getting around
3 nearby routes: 3 bus, 0 rail, 0 otherAir quality
Noise level
A Soundscore™ rating is a number between 50 (very loud) and 100 (very quiet) that tells you how loud a location is due to environmental noise.
Natural hazards risk
Provided by FEMA
Financials
Nearby communities in Charlotte
Homes in Charlotte Neighborhoods
- Cotswold
- Toddville Road
- Nevin Community
- Highland Creek
- Beatties Ford-Trinity
- Steele Creek
- Back Creek Church Road
- Newell
- Oakdale South
- Enderly Park
- Smallwood
- North Charlotte
- Eagle Lake
- Hickory Grove
- Mineral Springs-Rumble Road
- Westerly Hills
- Montclaire South
- Oakhurst
- Myers Park
- York Road
- Provincetowne
- Oaklawn
- Ballantyne West
- Plaza-Shamrock
- Echo Hills
- Lansdowne
- Mallard Creek - Withrow Downs
- Eastland-Wilora Lake
- Coulwood West
- Derita-Statesville
- Foxcroft
- Sugaw Creek-Ritch Ave
- Wessex Square
- Prosperity Church Road
- Providence Park
- Becton Park
- Elizabeth
- Sedgefield
- Optimist Park
- Lincoln Heights
- Wendover-Sedgewood
- Starmount
- Biddleville
- Sunset Road
- Plaza Midwood
- Slater Rd-Hamilton Circle
- Briarcreek-Woodland
- Hidden Valley
- University City North
- Sardis Forest
- Newell South
- Wildwood
- Sherwood Forest
- Whiteoak
- Sterling
- Farm Pond
- Arbor Glen
- Oxford Hunt
- Villa Heights
- Seversville
- Barclay Downs
- Lakewood
- Country Club Heights
- Ashbrook-Clawson Village
- Chantilly
- Olde Providence North
- Yorkmount
- Freedom Park
- Lockwood
- Wilson Heights
- Ponderosa-Wingate
- Marshbrooke
- Revolution Park
- Providence Crossing
- Ashley Park
- Mountain Island
- Druid Hills South
- Belmont
- Tryon Hills
- Carmel
- Madison Park
- Dilworth
- Thomasboro-Hoskins
- Firestone-Garden Park
- Marlwood
- Oak Forest
- Providence Estates East
- Piper Glen Estates
- College Downs
- Westchester
- Providence Plantation
- Westover Hills
- Brookhill
- Reid Park
- Washington Heights
- Plaza-Eastway
- Mountainbrook
- Seven Eagles
- Collingwood
- Plaza Hills
Recently added communities in this area
Other Builders in Charlotte, NC
Nearby sold homes
New homes in nearby cities
More New Homes in Charlotte, NC
EXP Realty LLC Mooresville, MLS CAR4281636
Based on information submitted to the MLS GRID as of 10/21/2024 2:31 PM CDT. All data is obtained from various sources and may not have been verified by the broker or MLS GRID. Supplied Open House Information is subject to change without notice. All information should be independently reviewed and verified for accuracy. Properties may or may not be listed by the office/agent presenting the information. Properties displayed may be listed or sold by various participants in the MLS. The Digital Millennium Copyright Act of 1998, 17 U.S.C. § 512 (the “DMCA”) provides recourse for copyright owners who believe that material appearing on the Internet infringes their rights under U.S. copyright law. If you believe in good faith that any content or material made available in connection with our website or services infringes your copyright, you (or your agent) may send us a notice requesting that the content or material be removed, or access to it blocked. Notices must be sent in writing by email to DMCAnotice@MLSGrid.com. The DMCA requires that your notice of alleged copyright infringement include the following information: (1) description of the copyrighted work that is the subject of claimed infringement; (2) description of the alleged infringing content and information sufficient to permit us to locate the content; (3) contact information for you, including your address, telephone number and email address; (4) a statement by you that you have a good faith belief that the content in the manner complained of is not authorized by the copyright owner, or its agent, or by the operation of any law; (5) a statement by you, signed under penalty of perjury, that the information in the notification is accurate and that you have the authority to enforce the copyrights that are claimed to be infringed; and (6) a physical or electronic signature of the copyright owner or a person authorized to act on the copyright owner’s behalf. Failure to include all of the above information may result in the delay of the processing of your complaint.
Read moreLast checked Apr 1, 12:00 am
- Jome
- New homes search
- North Carolina
- Charlotte Metropolitan Area
- Mecklenburg County
- Charlotte
- 2013 McDonald Dr, Charlotte, NC 28216





















































