








Book your tour. Save an average of $18,473. We'll handle the rest.
We collect exclusive builder offers, book your tours, and support you from start to housewarming.
- Confirmed tours
- Get matched & compare top deals
- Expert help, no pressure
- No added fees
Estimated value based on Jome data, T&C apply
















































Why tour with Jome?
- No pressure toursTour at your own pace with no sales pressure
- Expert guidanceGet insights from our home buying experts
- Exclusive accessSee homes and deals not available elsewhere
Jome is featured in
- Single-Family
- Quick move-in
- $219.19/sqft
- 291 days on Jome
Builder deals available
- TOP-TIER DEAL
VA 30 Year Fixed
$10,560 est. value- Rate buydown from 3.49% (1 year) with 4.733% APR
FHA 30 Year Fixed
$1,120 est. value- Rate buydown from 3.49% (1 year) with 5.422% APR and 3.5% down payment
Deals may change and are not guaranteed. Some deals apply to specific homes or plans. Not a financing offer. Eligibility varies by lender. Please verify details.
Home description
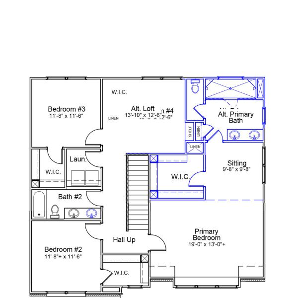
From the moment you enter, the Edisto makes a statement, offering four bedrooms and three full baths with a layout designed for both elegance and ease. A welcoming entry opens to a spacious great room centered around a gas log fireplace, flowing seamlessly into the gourmet kitchen featuring quartz countertops, double ovens, and an oversized pantry. The kitchen connects to the eat-in dining area and a sun-filled sunroom, creating a natural space for gathering and entertaining. A main-level guest bedroom with walk-in closet and adjacent full bath provides flexibility for guests or a private office. Upstairs, a versatile loft separates two secondary bedrooms, each with walk-in closets. From the primary suite retreat, complete with a sitting area, expansive walk-in closet, and spa-inspired ensuite featuring dual vanities, a double-sided tiled shower, and private water closet. Enjoy peaceful tree-lined views from the deck and the expansive backyard beyond.
May also be listed on the Mungo Homes website
Information last verified by Jome: Today at 6:04 AM (April 13, 2026)
Book your tour. Save an average of $18,473. We'll handle the rest.
We collect exclusive builder offers, book your tours, and support you from start to housewarming.
- Confirmed tours
- Get matched & compare top deals
- Expert help, no pressure
- No added fees
Estimated value based on Jome data, T&C apply
Home details
- Property status:
- Move-in ready
- Size:
- 2,532 sqft
- Stories:
- 2
- Beds:
- 4
- Baths:
- 3
- Garage spaces:
- 2
Construction details
- Builder Name:
- Mungo Homes
- Completion Date:
- December, 2025
Home features & finishes
- Garage/Parking:
- Garage
- Rooms:
- Primary Bedroom Upstairs

Get a consultation with our New Homes Expert
- See how your home builds wealth
- Plan your home-buying roadmap
- Discover hidden gems

Community details
Lilah Grove
by Mungo Homes, Summerfield, NC
- 8 homes
- 9 plans
- 1,671 - 3,791 sqft
View Lilah Grove details
More homes in Lilah Grove
- Home at address 5600 Penguin Dr, Summerfield, NC 27358

Cumberland
Savings$575,000
- 4 bd
- 2 ba
- 2,032 sqft
5600 Penguin Dr, Summerfield, NC 27358
- Home at address 5602 Penguin Dr, Summerfield, NC 27358

Edisto
Savings$600,000
- 4 bd
- 2.5 ba
- 2,595 sqft
5602 Penguin Dr, Summerfield, NC 27358
- Home at address 8603 Lemur Ln, Summerfield, NC 27358

Saluda II
Savings$605,000
- 4 bd
- 3 ba
- 3,048 sqft
8603 Lemur Ln, Summerfield, NC 27358
- Home at address 8601 Lemur Ln, Summerfield, NC 27358

Keowee
Savings$637,000
- 4 bd
- 3.5 ba
- 2,470 sqft
8601 Lemur Ln, Summerfield, NC 27358
- Home at address 5503 Penguin Dr, Summerfield, NC 27358

Warwick II
Savings$685,000
- 4 bd
- 3.5 ba
- 3,545 sqft
5503 Penguin Dr, Summerfield, NC 27358
- Home at address 8504 Lemur Ln, Summerfield, NC 27358

Webster II
Savings$700,000
- 4 bd
- 3.5 ba
- 3,791 sqft
8504 Lemur Ln, Summerfield, NC 27358
Floor plans in Lilah Grove
- View details for Edisto - Vanguard Collection

Edisto - Vanguard Collection
$500,000+- 4 bd
- 2.5 ba
- 2,285 sqft
- View details for Nantahala II - Vanguard Collection

Nantahala II - Vanguard Collection
$505,000+- 4 bd
- 2.5 ba
- 2,450 sqft
About the builder - Mungo Homes
Neighborhood
Home address
- City:
- Summerfield
- County:
- Guilford
- Zip Code:
- 27358
Schools in Guilford County Schools
GreatSchools’ Summary Rating calculation is based on 4 of the school’s themed ratings, including test scores, student/academic progress, college readiness, and equity. This information should only be used as a reference. Jome is not affiliated with GreatSchools and does not endorse or guarantee this information. Please reach out to schools directly to verify all information and enrollment eligibility. Data provided by GreatSchools.org © 2025
Places of interest
Getting around
Air quality

Considering this home?
Our expert will guide your tour, in-person or virtual
Need more information?
Text or call (888) 545-5198
Financials
Estimated monthly payment
Let us help you find your dream home
How many bedrooms are you looking for?
Similar homes nearby
Recently added communities in this area
Nearby communities in Summerfield
New homes in nearby cities
More New Homes in Summerfield, NC
- Jome
- New homes search
- North Carolina
- Guilford County
- Summerfield
- Lilah Grove
- 8605 Lemur Ln, Summerfield, NC 27358





























