














Book your tour. Save an average of $18,473. We'll handle the rest.
We collect exclusive builder offers, book your tours, and support you from start to housewarming.
- Confirmed tours
- Get matched & compare top deals
- Expert help, no pressure
- No added fees
Estimated value based on Jome data, T&C apply























- 3 bd
- 2.5 ba
- 1,792 sqft
511 Blue Ridge Dr N, Marion, NC 28752
Why tour with Jome?
- No pressure toursTour at your own pace with no sales pressure
- Expert guidanceGet insights from our home buying experts
- Exclusive accessSee homes and deals not available elsewhere
Jome is featured in
- Single-Family
- Quick move-in
- $306.36/sqft
- 0.73-acre lot
Home description
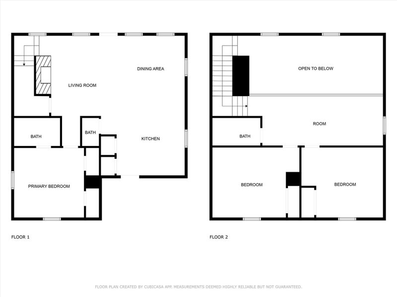
NEW CONSTRUCTION! Designed for second home living, vacation rental or your primary residence. This modern cabin includes touches of wood siding, and upscale interior features such stainless steel appliances, kitchen island, tongue and groove ceilings, wood burning fireplace, and covered porches. Offering a spacious open floor plan with high ceilings, the primary bedroom suite is located on the main floor along with a half bath and laundry closet. You will find an additional 2 bedrooms and full bath along with a loft on the upper level This cozy Mountain Modern Cabin is nestled perfectly into a quiet wooded setting in Linville Falls Mountain Club. Travel a short distance to your favorite Blue Ridge Mountain attractions, Blue Ridge Parkway, Linville Falls, Linville Gorge, Banner Elk, Boone, Grandfather Mountain, ski slopes, hiking trails and more! Seller is offering a $10,000 buyer credit!
ERA Live Moore, MLS CAR4274590
Information last verified by Jome: Today at 12:02 AM (March 4, 2026)
Book your tour. Save an average of $18,473. We'll handle the rest.
We collect exclusive builder offers, book your tours, and support you from start to housewarming.
- Confirmed tours
- Get matched & compare top deals
- Expert help, no pressure
- No added fees
Estimated value based on Jome data, T&C apply
Home details
- Property status:
- Move-in ready
- Lot size (acres):
- 0.73
- Size:
- 1,792 sqft
- Stories:
- 1.5
- Beds:
- 3
- Baths:
- 2
- Half baths:
- 1
Construction details
- Year Built:
- 2025
- Roof:
- Shingle Roofing
Home features & finishes
- Construction Materials:
- Wood
- Flooring:
- Vinyl Flooring
- Foundation Details:
- Crawl Space
- Kitchen:
- DishwasherMicrowave OvenRefrigeratorKitchen IslandKitchen Range
- Laundry facilities:
- Laundry Facilities In KitchenDryerWasherLaundry Facilities In Closet
- Property amenities:
- FireplacePorch

Get a consultation with our New Homes Expert
- See how your home builds wealth
- Plan your home-buying roadmap
- Discover hidden gems
Utility information
- Heating:
- Electric Heating, Heat Pump
- Utilities:
- Underground Utilities, Internet Cable, Cable Available
Community amenities
- Mountain(s) View
Neighborhood
Home address
Schools in McDowell County Schools
GreatSchools’ Summary Rating calculation is based on 4 of the school’s themed ratings, including test scores, student/academic progress, college readiness, and equity. This information should only be used as a reference. Jome is not affiliated with GreatSchools and does not endorse or guarantee this information. Please reach out to schools directly to verify all information and enrollment eligibility. Data provided by GreatSchools.org © 2025
Places of interest
Getting around
Natural hazards risk
Provided by FEMA

Considering this home?
Our expert will guide your tour, in-person or virtual
Need more information?
Text or call (888) 488-9243
Financials
Estimated monthly payment
Let us help you find your dream home
How many bedrooms are you looking for?
Similar homes nearby
Recently added communities in this area
New homes in nearby cities
More New Homes in Marion, NC
ERA Live Moore, MLS CAR4274590
Based on information submitted to the MLS GRID as of 10/21/2024 2:31 PM CDT. All data is obtained from various sources and may not have been verified by the broker or MLS GRID. Supplied Open House Information is subject to change without notice. All information should be independently reviewed and verified for accuracy. Properties may or may not be listed by the office/agent presenting the information. Properties displayed may be listed or sold by various participants in the MLS. The Digital Millennium Copyright Act of 1998, 17 U.S.C. § 512 (the “DMCA”) provides recourse for copyright owners who believe that material appearing on the Internet infringes their rights under U.S. copyright law. If you believe in good faith that any content or material made available in connection with our website or services infringes your copyright, you (or your agent) may send us a notice requesting that the content or material be removed, or access to it blocked. Notices must be sent in writing by email to DMCAnotice@MLSGrid.com. The DMCA requires that your notice of alleged copyright infringement include the following information: (1) description of the copyrighted work that is the subject of claimed infringement; (2) description of the alleged infringing content and information sufficient to permit us to locate the content; (3) contact information for you, including your address, telephone number and email address; (4) a statement by you that you have a good faith belief that the content in the manner complained of is not authorized by the copyright owner, or its agent, or by the operation of any law; (5) a statement by you, signed under penalty of perjury, that the information in the notification is accurate and that you have the authority to enforce the copyrights that are claimed to be infringed; and (6) a physical or electronic signature of the copyright owner or a person authorized to act on the copyright owner’s behalf. Failure to include all of the above information may result in the delay of the processing of your complaint.
Read moreLast checked Mar 4, 11:00 am
- Jome
- New homes search
- North Carolina
- Mcdowell County
- Marion
- 511 Blue Ridge Dr N, Marion, NC 28752









