














Book your tour. Save an average of $18,473. We'll handle the rest.
We collect exclusive builder offers, book your tours, and support you from start to housewarming.
- Confirmed tours
- Get matched & compare top deals
- Expert help, no pressure
- No added fees
Estimated value based on Jome data, T&C apply

- 3 bd
- 2 ba
- 1,700 sqft
104 Glenhaven Dr, Marion, NC 28752
Why tour with Jome?
- No pressure toursTour at your own pace with no sales pressure
- Expert guidanceGet insights from our home buying experts
- Exclusive accessSee homes and deals not available elsewhere
Jome is featured in
- Single-Family
- Under construction
- $276.47/sqft
- 1.50-acre lot
Home description
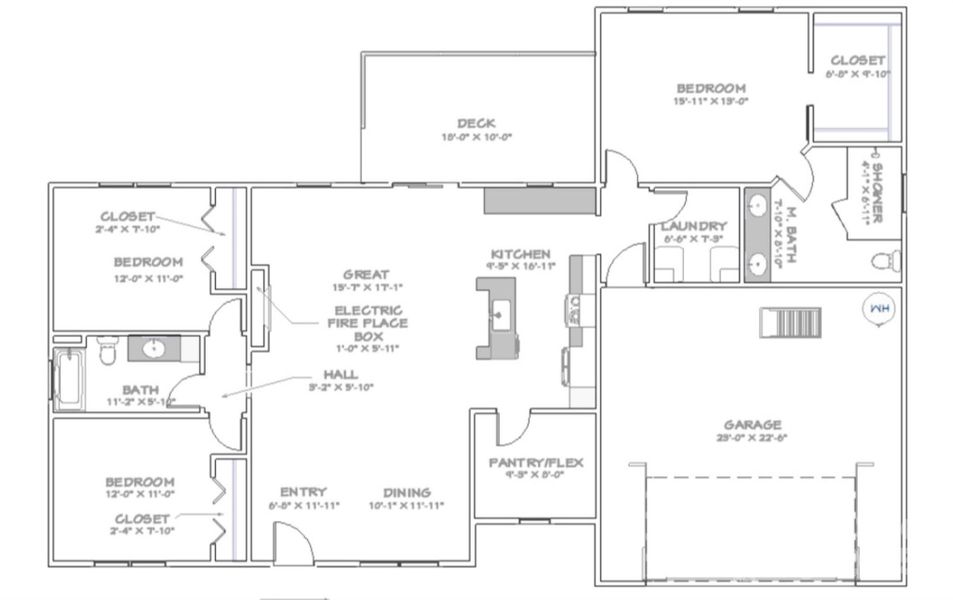
Located on a generous 1.5-acre lot in the Glenhaven community, this proposed new-construction home blends modern comfort with a thoughtfully designed, single-level layout. The open floor plan creates a bright, spacious feel, with clear sightlines through the kitchen, dining area, and great room. Vaulted ceilings enhance the sense of openness, while the kitchen features a central island and connects seamlessly to the dining space for easy everyday living and entertaining. A split-bedroom layout provides privacy, with the primary suite positioned on one side of the home and two additional bedrooms and a full bath located on the opposite side. The primary suite offers a private retreat with an en-suite bath and walk-in closet. A two-car garage and rear deck add both functionality and outdoor living space. Offered during the pre-construction phase, buyers have the opportunity to select finishes and personalize the home to their style. Photos are renderings & examples of interior possibilities. Septic and well permits are complete, allowing construction to begin promptly with an executed contract. Glenhaven Drive is located approximately one mile from I-40, offering easy access for commuters.
Real Broker, LLC, MLS CAR4331381
Information last verified by Jome: Today at 12:02 AM (February 16, 2026)
Book your tour. Save an average of $18,473. We'll handle the rest.
We collect exclusive builder offers, book your tours, and support you from start to housewarming.
- Confirmed tours
- Get matched & compare top deals
- Expert help, no pressure
- No added fees
Estimated value based on Jome data, T&C apply
Home details
- Property status:
- Under construction
- Lot size (acres):
- 1.50
- Size:
- 1,700 sqft
- Stories:
- 1
- Beds:
- 3
- Baths:
- 2
- Garage spaces:
- 2
Construction details
- Year Built:
- 2026
Home features & finishes
- Appliances:
- Ice Maker
- Construction Materials:
- Cement
- Cooling:
- Ceiling Fan(s)Central Air
- Flooring:
- Vinyl Flooring
- Foundation Details:
- Crawl Space
- Garage/Parking:
- Door OpenerGarageFront Entry Garage/ParkingAttached Garage
- Home amenities:
- Home Accessibility Features
- Kitchen:
- DishwasherMicrowave OvenRefrigeratorElectric CooktopKitchen Range
- Laundry facilities:
- DryerWasher
- Property amenities:
- DeckFireplacePorch
- Rooms:
- Primary Bedroom On MainLiving RoomPrimary Bedroom Downstairs
Room details
Master Bedroom
Bedroom 1
Bonus Room

Get a consultation with our New Homes Expert
- See how your home builds wealth
- Plan your home-buying roadmap
- Discover hidden gems
Utility information
- Heating:
- Heat Pump, Water Heater
Neighborhood
Home address
Schools in McDowell County Schools
- Grades M-MPublicthe summit academy3.5 mi75 crawford stna
GreatSchools’ Summary Rating calculation is based on 4 of the school’s themed ratings, including test scores, student/academic progress, college readiness, and equity. This information should only be used as a reference. Jome is not affiliated with GreatSchools and does not endorse or guarantee this information. Please reach out to schools directly to verify all information and enrollment eligibility. Data provided by GreatSchools.org © 2025
Places of interest
Getting around
Noise level
A Soundscore™ rating is a number between 50 (very loud) and 100 (very quiet) that tells you how loud a location is due to environmental noise.
Natural hazards risk
Provided by FEMA

Considering this home?
Our expert will guide your tour, in-person or virtual
Need more information?
Text or call (888) 486-2818
Financials
Estimated monthly payment
Let us help you find your dream home
How many bedrooms are you looking for?
Similar homes nearby
Recently added communities in this area
Nearby communities in Marion
New homes in nearby cities
More New Homes in Marion, NC
Real Broker, LLC, MLS CAR4331381
Based on information submitted to the MLS GRID as of 10/21/2024 2:31 PM CDT. All data is obtained from various sources and may not have been verified by the broker or MLS GRID. Supplied Open House Information is subject to change without notice. All information should be independently reviewed and verified for accuracy. Properties may or may not be listed by the office/agent presenting the information. Properties displayed may be listed or sold by various participants in the MLS. The Digital Millennium Copyright Act of 1998, 17 U.S.C. § 512 (the “DMCA”) provides recourse for copyright owners who believe that material appearing on the Internet infringes their rights under U.S. copyright law. If you believe in good faith that any content or material made available in connection with our website or services infringes your copyright, you (or your agent) may send us a notice requesting that the content or material be removed, or access to it blocked. Notices must be sent in writing by email to DMCAnotice@MLSGrid.com. The DMCA requires that your notice of alleged copyright infringement include the following information: (1) description of the copyrighted work that is the subject of claimed infringement; (2) description of the alleged infringing content and information sufficient to permit us to locate the content; (3) contact information for you, including your address, telephone number and email address; (4) a statement by you that you have a good faith belief that the content in the manner complained of is not authorized by the copyright owner, or its agent, or by the operation of any law; (5) a statement by you, signed under penalty of perjury, that the information in the notification is accurate and that you have the authority to enforce the copyrights that are claimed to be infringed; and (6) a physical or electronic signature of the copyright owner or a person authorized to act on the copyright owner’s behalf. Failure to include all of the above information may result in the delay of the processing of your complaint.
Read moreLast checked Feb 16, 11:00 am
- Jome
- New homes search
- North Carolina
- Mcdowell County
- Marion
- 104 Glenhaven Dr, Marion, NC 28752












