

































- 4 bd
- 4 ba
- 3,428 sqft
85 Guardian St, Youngsville, NC 27596
- Single-Family
- $169.19/sqft
- $840/annual HOA
- 0.82-acre lot
New Homes for Sale Near 85 Guardian St, Youngsville, NC 27596
About this Home
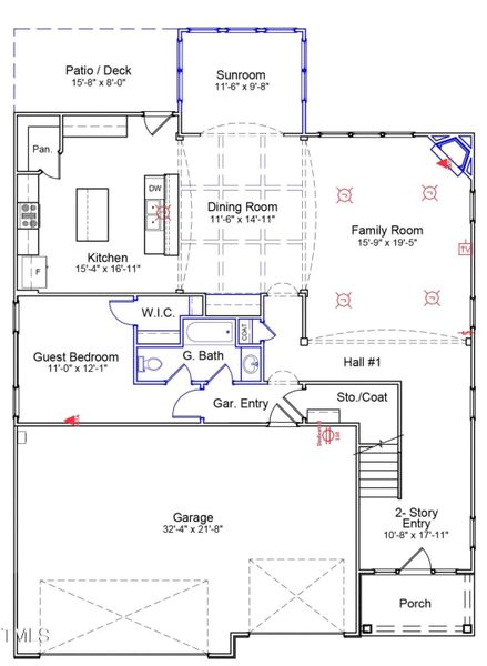
Set on a wooded 0.8-acre corner homesite, this beautiful 5-bedroom home offers the perfect blend of space, privacy, and luxury. Highlights include a 3-car garage, a main-level guest suite with a full bath, and a sunroom filled with natural light.
Durable and stylish luxury vinyl plank flooring extends throughout the entire first floor, upstairs hallway, and loft. The gourmet kitchen is thoughtfully designed with upgraded Brellin PureStyle white full-overlay soft-close cabinetry, a 5-burner gas cooktop, built-in oven with convection microwave, concealed-control stainless steel dishwasher, Siberian Frost quartz countertops, pendant lighting, tile backsplash, a large island, and crown molding.
The formal dining room features elegant arched entryways, a coffered ceiling, and access to a butler's pantry. The great room is warm and inviting with a tiled fireplace and mantel, crown molding, ceiling fan, and an abundance of natural light.
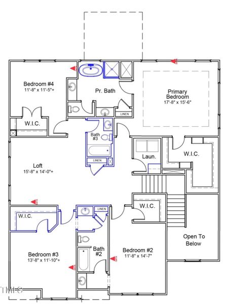
Upstairs, the primary suite boasts a tray ceiling, plush carpet, and a huge walk-in closet. The spa-like bath includes a freestanding soaking tub, a tiled walk-in shower, dual quartz vanities, tile flooring, and a linen closet.
All secondary bedrooms are generously sized with walk-in closets, and the spacious loft offers flexible living space ideal for a media room, office, or playroom.
Step outside to a 14x10 covered porch that overlooks a private backyard—perfect for relaxing or entertaining.
Stylish, functional, and move-in ready by mid-October—don't miss this incredible opportunity!
Coldwell Banker HPW, MLS 10103433
May also be listed on the Mungo Homes website
Information last verified by Jome: Today at 4:14 AM (March 10, 2026)
Home details
- Property status:
- Sold
- Lot size (acres):
- 0.82
- Size:
- 3,428 sqft
- Stories:
- 2
- Beds:
- 4
- Baths:
- 4
- Garage spaces:
- 3
- Fence:
- No Fence
Construction details
- Builder Name:
- Mungo Homes
- Completion Date:
- November, 2025
- Year Built:
- 2025
- Roof:
- Roof Gutter, Shingle Roofing
Home features & finishes
- Construction Materials:
- Vinyl Siding
- Cooling:
- Ceiling Fan(s)Central Air
- Flooring:
- Vinyl FlooringCarpet FlooringTile Flooring
- Foundation Details:
- Block
- Garage/Parking:
- Door OpenerGarageFront Entry Garage/ParkingAttached Garage
- Home amenities:
- Green Construction
- Interior Features:
- Walk-In ClosetCrown MoldingCoffered CeilingPantryTray CeilingBreakfast BarSeparate ShowerDouble Vanity
- Kitchen:
- DishwasherMicrowave OvenOvenStainless Steel AppliancesGas CooktopQuartz countertopSelf Cleaning OvenGranite countertopKitchen IslandCooktop
- Laundry facilities:
- Laundry Facilities On Upper LevelDryerWasherUtility/Laundry Room
- Property amenities:
- BasementBackyardLandscapingWalk-in ShowerFireplaceYardPorch
- Rooms:
- KitchenFamily RoomBreakfast AreaOpen Concept Floorplan
Room details
Master Bedroom
Kitchen
Dining Room
Utility information
- Heating:
- Heat Pump, Water Heater, Central Heating, Gas Heating, Forced Air Heating, Tankless water heater
- Utilities:
- Electricity Available, Natural Gas Available, Cable Available, Water Available
About the builder - Mungo Homes
Neighborhood
Home address
- City:
- Youngsville
- County:
- Franklin
- Zip Code:
- 27596
Schools in Franklin County Schools
GreatSchools’ Summary Rating calculation is based on 4 of the school’s themed ratings, including test scores, student/academic progress, college readiness, and equity. This information should only be used as a reference. Jome is not affiliated with GreatSchools and does not endorse or guarantee this information. Please reach out to schools directly to verify all information and enrollment eligibility. Data provided by GreatSchools.org © 2025
Places of interest
Getting around
Air quality
Financials
Nearby communities in Youngsville
Homes in Youngsville by Mungo Homes
Recently added communities in this area
Other Builders in Youngsville, NC
Nearby sold homes
New homes in nearby cities
More New Homes in Youngsville, NC
Coldwell Banker HPW, MLS 10103433
© 2025 Doorify MLS, Inc. of North Carolina. All rights reserved. Brokers make an effort to deliver accurate information, but buyers should independently verify any information on which they will rely in a transaction. The listing broker shall not be responsible for any typographical errors, misinformation, or misprints, and they shall be held totally harmless from any damages arising from reliance upon this data. This data is provided exclusively for consumers’ personal, non-commercial use. Some IDX listings have been excluded from this IDX display. Closed (sold) listings may have been listed and/or sold by a real estate firm other than the firm(s) featured on this website. Closed data is not available until the sale of the property is recorded in the MLS. Home sale data is not an appraisal, CMA, competitive or comparative market analysis, or home valuation of any property. Listings marked with an icon are provided courtesy of the Doorify MLS, Inc. of North Carolina, Internet Data Exchange Database.
Read moreLast checked Mar 10, 4:10 am
- Jome
- New homes search
- North Carolina
- Raleigh-Durham Area
- Franklin County
- Youngsville
- Maison Ridge
- 85 Guardian St, Youngsville, NC 27596

































































