












































- 4 bd
- 4 ba
- 3,596 sqft
420 Balboa St, Matthews, NC 28104
- Single-Family
- $183.26/sqft
- 0.31-acre lot
- 206 days on Jome
New Homes for Sale Near 420 Balboa St, Matthews, NC 28104
About this Home
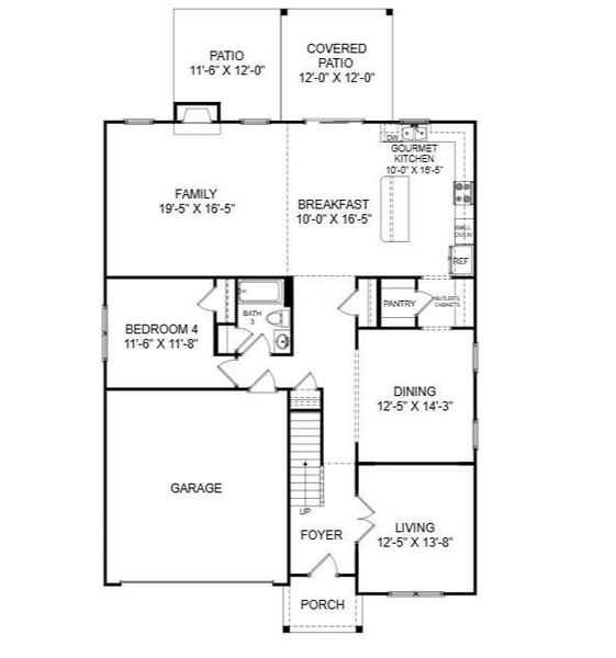
The Shiloh combines comfort, style & functionality. With a spacious layout featuring 4 bedrooms & 4 bathrooms, there’s plenty of room for everyone. The main-floor guest room offers both convenience and privacy, making it ideal for visitors. The showstopping kitchen is equipped w/ gourmet appliances and gleaming quartz countertops delighting any cooking enthusiast or entertainer. A center island & an open flow to the family room make meal preparation seamless, allowing you to engage with guests effortlessly. For those who appreciate outdoor dining, the screened patio provides the perfect setting to enjoy meals while overlooking the private backyard. Retreat to the expansive primary bedroom with vaulted ceiling & elegantly appointed adjoining bath featuring a soaking tub & separate shower. The versatile upper floor flex room can adapt to your needs, whether as a media room, playroom, or craft space. Not just a house—it’s a place to call home. Schedule your private tour today!
SM North Carolina Brokerage, MLS CAR4271526
May also be listed on the Stanley Martin Homes website
Information last verified by Jome: Friday at 5:00 PM (December 12, 2025)
Home details
- Property status:
- Sold
- Lot size (acres):
- 0.31
- Size:
- 3,596 sqft
- Stories:
- 2
- Beds:
- 4
- Baths:
- 4
- Garage spaces:
- 2
Construction details
- Builder Name:
- Stanley Martin Homes
- Completion Date:
- September, 2025
- Year Built:
- 2025
- Roof:
- Shingle Roofing
Home features & finishes
- Appliances:
- Exhaust Fan
- Construction Materials:
- CementStone
- Cooling:
- Ceiling Fan(s)Central Air
- Flooring:
- Vinyl FlooringCarpet FlooringTile Flooring
- Foundation Details:
- Slab
- Garage/Parking:
- Door OpenerGarageFront Entry Garage/ParkingAttached Garage
- Home amenities:
- Home Accessibility Features
- Interior Features:
- Walk-In ClosetWalk-In PantryFrench Doors
- Kitchen:
- DishwasherMicrowave OvenOvenDisposalGas CooktopSelf Cleaning OvenKitchen IslandElectric Oven
- Laundry facilities:
- Laundry Facilities On Upper LevelDryerWasherUtility/Laundry Room
- Property amenities:
- Gas Log FireplacePatioFireplacePorch
- Rooms:
- AtticFamily RoomOpen Concept Floorplan
- Security system:
- Smoke DetectorCarbon Monoxide Detector
Utility information
- Heating:
- Zoned Heating, Water Heater, Central Heating, Gas Heating, Forced Air Heating, Tankless water heater
- Utilities:
- Natural Gas on Property, Underground Utilities, Cable Available

Community details
Glenhurst
by Stanley Martin Homes, Matthews, NC
- 7 homes
- 5 plans
- 2,729 - 4,362 sqft
View Glenhurst details
Community amenities
- Sidewalks Available
- Walking, Jogging, Hike Or Bike Trails
More homes in Glenhurst
- 140 Balboa St, Matthews, NC 28104

$669,000
Under construction- 5 bd
- 4 ba
- 3,619 sqft
140 Balboa St, Matthews, NC 28104
- 144 Balboa St, Matthews, NC 28104

$690,000
Under construction- 4 bd
- 4 ba
- 3,076 sqft
144 Balboa St, Matthews, NC 28104
- 132 Balboa St, Matthews, NC 28104

$699,000
Under construction- 4 bd
- 4 ba
- 3,608 sqft
132 Balboa St, Matthews, NC 28104
- 327 Alameda Wy, Matthews, NC 28104

$699,000
Under construction- 5 bd
- 4.5 ba
- 3,689 sqft
327 Alameda Wy, Matthews, NC 28104
- 204 Balboa St, Matthews, NC 28104

$699,000
Under construction- 5 bd
- 4.5 ba
- 3,689 sqft
204 Balboa St, Matthews, NC 28104
- 136 Balboa St, Indian Trail, NC 28104

$769,000
Under construction- 5 bd
- 4.5 ba
- 4,135 sqft
136 Balboa St, Indian Trail, NC 28104
Floor plans in Glenhurst
About the builder - Stanley Martin Homes
Neighborhood
Home address
Schools in Union County Public Schools
GreatSchools’ Summary Rating calculation is based on 4 of the school’s themed ratings, including test scores, student/academic progress, college readiness, and equity. This information should only be used as a reference. Jome is not affiliated with GreatSchools and does not endorse or guarantee this information. Please reach out to schools directly to verify all information and enrollment eligibility. Data provided by GreatSchools.org © 2025
Places of interest
Getting around
Noise level
A Soundscore™ rating is a number between 50 (very loud) and 100 (very quiet) that tells you how loud a location is due to environmental noise.
Financials
Nearby communities in Matthews
Homes in Matthews by Stanley Martin Homes
Recently added communities in this area
Other Builders in Matthews, NC
Nearby sold homes
New homes in nearby cities
More New Homes in Matthews, NC
SM North Carolina Brokerage, MLS CAR4271526
Based on information submitted to the MLS GRID as of 10/21/2024 2:31 PM CDT. All data is obtained from various sources and may not have been verified by the broker or MLS GRID. Supplied Open House Information is subject to change without notice. All information should be independently reviewed and verified for accuracy. Properties may or may not be listed by the office/agent presenting the information. Properties displayed may be listed or sold by various participants in the MLS. The Digital Millennium Copyright Act of 1998, 17 U.S.C. § 512 (the “DMCA”) provides recourse for copyright owners who believe that material appearing on the Internet infringes their rights under U.S. copyright law. If you believe in good faith that any content or material made available in connection with our website or services infringes your copyright, you (or your agent) may send us a notice requesting that the content or material be removed, or access to it blocked. Notices must be sent in writing by email to DMCAnotice@MLSGrid.com. The DMCA requires that your notice of alleged copyright infringement include the following information: (1) description of the copyrighted work that is the subject of claimed infringement; (2) description of the alleged infringing content and information sufficient to permit us to locate the content; (3) contact information for you, including your address, telephone number and email address; (4) a statement by you that you have a good faith belief that the content in the manner complained of is not authorized by the copyright owner, or its agent, or by the operation of any law; (5) a statement by you, signed under penalty of perjury, that the information in the notification is accurate and that you have the authority to enforce the copyrights that are claimed to be infringed; and (6) a physical or electronic signature of the copyright owner or a person authorized to act on the copyright owner’s behalf. Failure to include all of the above information may result in the delay of the processing of your complaint.
Read moreLast checked Jan 7, 5:00 pm
- Jome
- New homes search
- North Carolina
- Charlotte Metropolitan Area
- Union County
- Matthews
- Glenhurst
- 420 Balboa St, Matthews, NC 28104































































