

















































- 5 bd
- 4.5 ba
- 4,485 sqft
324 Alameda Wy, Matthews, NC 28104
- Single-Family
- $175.47/sqft
- 0.26-acre lot
- 163 days on Jome
New Homes for Sale Near 324 Alameda Wy, Matthews, NC 28104
About this Home
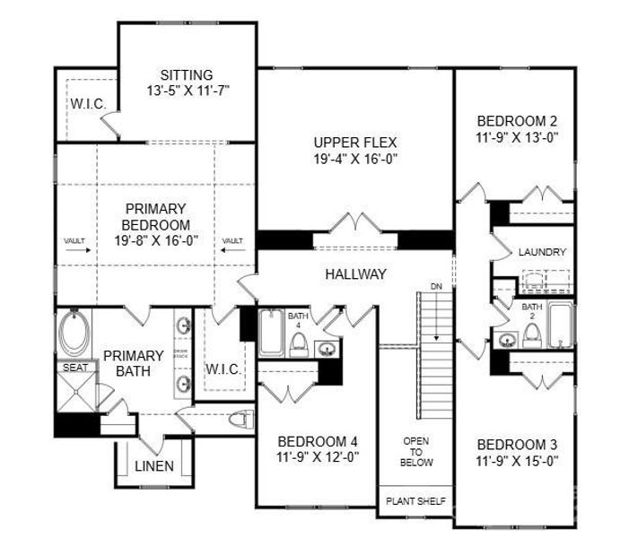
The SENECA is a stunning single-family home set in a highly desirable new Union County community in vibrant Matthews. Offering 4,485 sq. ft. of expertly planned living space, this 5-bedroom, 4.5-bath residence combines comfort and style. The gourmet kitchen features a 36" gas cooktop, designer cabinet hood, and a large center island—perfect for everyday meals or entertaining. The expansive primary suite is a true retreat with a vaulted ceiling, private sitting area, and a spa-inspired bath. Thoughtful modern details throughout make this home ideal for those who value both space and sophistication. Enjoy nearby parks plus community walking trails and sidewalks that create a perfect blend of nature and neighborhood living.
With its prime location and exceptional features, the SENECA is ready to welcome you home. Schedule your private tour today and discover how you can make this dream home yours by November!
SM North Carolina Brokerage, MLS CAR4304565
May also be listed on the Stanley Martin Homes website
Information last verified by Jome: Wednesday at 5:00 PM (December 17, 2025)
Home details
- Property status:
- Sold
- Lot size (acres):
- 0.26
- Size:
- 4,485 sqft
- Stories:
- 2
- Beds:
- 5
- Baths:
- 4.5
- Garage spaces:
- 2
Construction details
- Builder Name:
- Stanley Martin Homes
- Year Built:
- 2025
- Roof:
- Shingle Roofing
Home features & finishes
- Construction Materials:
- CementBrickStone
- Cooling:
- Ceiling Fan(s)Central Air
- Flooring:
- Vinyl FlooringCarpet FlooringTile Flooring
- Foundation Details:
- Slab
- Garage/Parking:
- Door OpenerGarageFront Entry Garage/ParkingAttached Garage
- Home amenities:
- Home Accessibility Features
- Interior Features:
- Walk-In ClosetFoyerStorageBreakfast BarWalk-In PantryGarden TubFrench Doors
- Kitchen:
- DishwasherMicrowave OvenOvenDisposalGas CooktopKitchen Island
- Laundry facilities:
- Laundry Facilities On Upper LevelDryerUtility/Laundry Room
- Property amenities:
- Gas Log FireplacePatioFireplacePorch
- Rooms:
- Bonus RoomFlex RoomSitting AreaKitchenGuest RoomDining RoomFamily RoomLiving RoomBreakfast AreaOpen Concept FloorplanPrimary Bedroom Upstairs
- Security system:
- Smoke DetectorCarbon Monoxide Detector
Utility information
- Heating:
- Water Heater, Forced Air Heating, Tankless water heater

Community details
Glenhurst
by Stanley Martin Homes, Matthews, NC
- 13 homes
- 5 plans
- 2,729 - 4,413 sqft
View Glenhurst details
Community amenities
- Walking, Jogging, Hike Or Bike Trails
More homes in Glenhurst
- Home at address 140 Balboa St, Matthews, NC 28104

$669,000
Under construction- 5 bd
- 4 ba
- 3,619 sqft
140 Balboa St, Matthews, NC 28104
- Home at address 403 Alameda Wy, Matthews, NC 28104

$695,000
Under construction- 5 bd
- 4 ba
- 3,608 sqft
403 Alameda Wy, Matthews, NC 28104
- Home at address 327 Alameda Wy, Matthews, NC 28104

$699,000
Under construction- 5 bd
- 4.5 ba
- 3,689 sqft
327 Alameda Wy, Matthews, NC 28104
- Home at address 339 Alameda Wy, Matthews, NC 28104

$715,000
Under construction- 5 bd
- 4 ba
- 3,559 sqft
339 Alameda Wy, Matthews, NC 28104
- Home at address 407 Alameda Wy, Matthews, NC 28104

$725,000
Under construction- 5 bd
- 4.5 ba
- 3,689 sqft
407 Alameda Wy, Matthews, NC 28104
- Home at address 343 Alameda Wy, Matthews, NC 28104

$729,000
Under construction- 5 bd
- 4.5 ba
- 3,689 sqft
343 Alameda Wy, Matthews, NC 28104
Floor plans in Glenhurst
About the builder - Stanley Martin Homes
Neighborhood
Home address
Schools in Union County Public Schools
GreatSchools’ Summary Rating calculation is based on 4 of the school’s themed ratings, including test scores, student/academic progress, college readiness, and equity. This information should only be used as a reference. Jome is not affiliated with GreatSchools and does not endorse or guarantee this information. Please reach out to schools directly to verify all information and enrollment eligibility. Data provided by GreatSchools.org © 2025
Places of interest
Getting around
Noise level
A Soundscore™ rating is a number between 50 (very loud) and 100 (very quiet) that tells you how loud a location is due to environmental noise.
Financials
Nearby communities in Matthews
Homes in Matthews by Stanley Martin Homes
Recently added communities in this area
Other Builders in Matthews, NC
Nearby sold homes
New homes in nearby cities
More New Homes in Matthews, NC
SM North Carolina Brokerage, MLS CAR4304565
Based on information submitted to the MLS GRID as of 10/21/2024 2:31 PM CDT. All data is obtained from various sources and may not have been verified by the broker or MLS GRID. Supplied Open House Information is subject to change without notice. All information should be independently reviewed and verified for accuracy. Properties may or may not be listed by the office/agent presenting the information. Properties displayed may be listed or sold by various participants in the MLS. The Digital Millennium Copyright Act of 1998, 17 U.S.C. § 512 (the “DMCA”) provides recourse for copyright owners who believe that material appearing on the Internet infringes their rights under U.S. copyright law. If you believe in good faith that any content or material made available in connection with our website or services infringes your copyright, you (or your agent) may send us a notice requesting that the content or material be removed, or access to it blocked. Notices must be sent in writing by email to DMCAnotice@MLSGrid.com. The DMCA requires that your notice of alleged copyright infringement include the following information: (1) description of the copyrighted work that is the subject of claimed infringement; (2) description of the alleged infringing content and information sufficient to permit us to locate the content; (3) contact information for you, including your address, telephone number and email address; (4) a statement by you that you have a good faith belief that the content in the manner complained of is not authorized by the copyright owner, or its agent, or by the operation of any law; (5) a statement by you, signed under penalty of perjury, that the information in the notification is accurate and that you have the authority to enforce the copyrights that are claimed to be infringed; and (6) a physical or electronic signature of the copyright owner or a person authorized to act on the copyright owner’s behalf. Failure to include all of the above information may result in the delay of the processing of your complaint.
Read moreLast checked Jan 18, 11:00 pm
- Jome
- New homes search
- North Carolina
- Charlotte Metropolitan Area
- Union County
- Matthews
- Glenhurst
- 324 Alameda Wy, Matthews, NC 28104



























































