



Book your tour. Save an average of $18,473. We'll handle the rest.
We collect exclusive builder offers, book your tours, and support you from start to housewarming.
- Confirmed tours
- Get matched & compare top deals
- Expert help, no pressure
- No added fees
Estimated value based on Jome data, T&C apply

- 3 bd
- 3 ba
- 2,628 sqft
65 Villa Vista 23, Marble Hill, GA 30148
Why tour with Jome?
- No pressure toursTour at your own pace with no sales pressure
- Expert guidanceGet insights from our home buying experts
- Exclusive accessSee homes and deals not available elsewhere
Jome is featured in
- Single-Family
- Under construction
- $262.18/sqft
- $450/monthly HOA
Home description
Step into the warmth and charm of the Beechwood Cottage quad-home with the LARGEST and most enhanced floorplan in The Village on Blackwell Creek where multiple beautifully crafted units are now available for immediate occupancy and others are under construction with options for customization. With the convenience of future on-site amenities, as well as the option to buy-in to nearby Big Canoe community amenities, this community has all of the comfort of a small community, with all of the benefits of a larger HOA! Imagine living in a nature-filled haven where everything you need is on the spacious main floor with bright, open living space, soaring 11-foot ceilings and graceful 8-foot doors that welcome you with ease. The master suite features a vaulted ceiling that adds an airy, tranquil touch, while a second bedroom with its own full bath offers comfort and privacy. Upstairs, an additional 500-square-foot bedroom and bath create the perfect retreat for guests or a peaceful home office. The kitchen is a chef’s delight with stone countertops, a gas range, a large island
with a sink, and abundant cabinetry and pantry space that invites culinary creativity. Step into the grand oversized laundry room or unwind on the inviting screened covered porch that opens to the fresh scents and soft sounds of the surrounding woods. Each unit includes a roomy two-car garage, and best of all, the association fee covers insurance, all exterior building maintenance, landscaping, trash pickup, internet, and TV service- and with nearby walking trails and pavilions, you are left free to enjoy the luxurious, low-maintenance lifestyle you deserve. Additional fully completed properties available in the community, as well as under-construction properties with customization options, independent living and leasing options available!! Don’t just imagine it—come feel the serenity and elegance of Beechwood Cottage for yourself. Schedule your showing today!!
Keller Williams Elevate, MLS 7753290
Information last verified by Jome: Today at 2:48 AM (April 24, 2026)
Home highlights
Popular North Georgia lake offering boating, fishing, and lakeside living near metro Atlanta and mountain getaways.
Book your tour. Save an average of $18,473. We'll handle the rest.
We collect exclusive builder offers, book your tours, and support you from start to housewarming.
- Confirmed tours
- Get matched & compare top deals
- Expert help, no pressure
- No added fees
Estimated value based on Jome data, T&C apply
Home details
- Property status:
- Under construction
- Lot size (acres):
- 0.08
- Size:
- 2,628 sqft
- Stories:
- 2
- Beds:
- 3
- Baths:
- 3
- Garage spaces:
- 2
- Fence:
- No Fence
Construction details
- Year Built:
- 2026
- Roof:
- Roof Gutter, Composition Roofing, Shingle Roofing
Home features & finishes
- Cooling:
- Ceiling Fan(s)Central Air
- Flooring:
- Vinyl FlooringCarpet Flooring
- Foundation Details:
- Slab
- Garage/Parking:
- GarageFront Entry Garage/ParkingAttached Garage
- Home amenities:
- InternetHome Accessibility Features
- Interior Features:
- Ceiling-HighCeiling-VaultedWalk-In ClosetPantryBreakfast BarWalk-In PantryDouble Vanity
- Kitchen:
- DishwasherMicrowave OvenGas CooktopKitchen IslandGas OvenKitchen Range
- Laundry facilities:
- Laundry Facilities On Main LevelUtility/Laundry Room
- Lighting:
- Lighting
- Property amenities:
- BarGas Log FireplaceLandscapingCabinetsPatioFireplace
- Rooms:
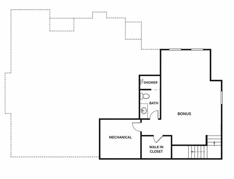
- Bonus RoomPrimary Bedroom On MainKitchenFamily RoomLiving RoomOpen Concept FloorplanPrimary Bedroom Downstairs
- Security system:
- Smoke Detector

Get a consultation with our New Homes Expert
- See how your home builds wealth
- Plan your home-buying roadmap
- Discover hidden gems
Utility information
- Heating:
- Electric Heating, Heat Pump, Zoned Heating, Central Heating
- Sewer:
- Public Sewer
- Utilities:
- Electricity Available, Natural Gas Available, Underground Utilities, Cable Available, Sewer Available, Water Available, High Speed Internet Access
- Water source:
- Public
Community amenities
- Woods View
- Gated Community
- Sidewalks Available
- Greenbelt View
- Walking, Jogging, Hike Or Bike Trails
Neighborhood
Home address
- City:
- Marble Hill
- County:
- Pickens
- Zip Code:
- 30148
Schools in Pickens County School District
- Grades PK-KGPrivatefirst baptist church of jasper pk and kindergarten8.6 mi198 e church stna
GreatSchools’ Summary Rating calculation is based on 4 of the school’s themed ratings, including test scores, student/academic progress, college readiness, and equity. This information should only be used as a reference. Jome is not affiliated with GreatSchools and does not endorse or guarantee this information. Please reach out to schools directly to verify all information and enrollment eligibility. Data provided by GreatSchools.org © 2025
Places of interest
Getting around
Air quality
Natural hazards risk
Provided by FEMA

Considering this home?
Our expert will guide your tour, in-person or virtual
Need more information?
Text or call (888) 545-5198
Financials
Estimated monthly payment
Let us help you find your dream home
How many bedrooms are you looking for?
Similar homes nearby
Recently added communities in this area
Nearby communities in Marble Hill
New homes in nearby cities
More New Homes in Marble Hill, GA
Keller Williams Elevate, MLS 7753290
Some IDX listings have been excluded from this IDX display. Listings identified with the FMLS IDX logo come from FMLS and are held by brokerage firms other than the owner of this website. The listing brokerage is identified in any listing details. Information is deemed reliable but is not guaranteed. If you believe any FMLS listing contains material that infringes your copyrighted work please click here to review our DMCA policy and learn how to submit a takedown request. © 2025 First Multiple Listing Service, Inc.
Read moreLast checked Apr 24, 1:40 am
- Jome
- New homes search
- Georgia
- Pickens County
- Marble Hill
- 65 Villa Vista 23, Marble Hill, GA 30148

























