








Book your tour. Save an average of $18,473. We'll handle the rest.
We collect exclusive builder offers, book your tours, and support you from start to housewarming.
- Confirmed tours
- Get matched & compare top deals
- Expert help, no pressure
- No added fees
Estimated value based on Jome data, T&C apply















- 4 bd
- 4.5 ba
- 3,454 sqft
020 Highvale Dr, Marietta, GA 30064
Why tour with Jome?
- No pressure toursTour at your own pace with no sales pressure
- Expert guidanceGet insights from our home buying experts
- Exclusive accessSee homes and deals not available elsewhere
Jome is featured in
- Single-Family
- Under construction
- $320.32/sqft
- $500/annual HOA
Home description
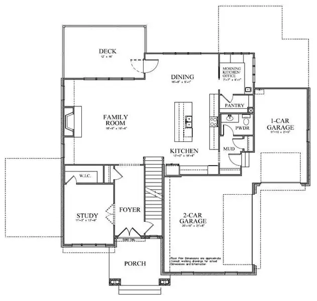
Bercher Homes is proud to present a new community just minutes from vibrant downtown Marietta. Nestled in one of Cobb County’s most desirable areas, this thoughtfully designed neighborhood features 22 beautiful homesites located in the highly sought-after Marietta High School district. With timeless architecture, well-proportioned lots, and a prime location near shopping, dining, and local events, this community offers the perfect blend of convenience and quality craftsmanship synonymous with Bercher Homes. With an open floor plan featuring the gathering and cooking areas downstairs and all bedrooms upstairs, the Brooks is available to build in Highvale. The covered front porch opens to foyer and office/flex room w/ closet. Ahead is the open concept layout w/ dining area, family room w/ wood-burning fireplace, built-ins, and lots of windows for natural light, adjacent to the generously sized kitchen. Enjoy the extensive cabinetry that features soft close doors and drawers, Bosch appliances, Quartz countertops, pendant lighting, large working island, and more. Adjacent to the kitchen is the scullery/ morning kitchen with additional cabinetry, sink, and windows galore, plus a walk-in pantry. The rear hallway entry from the 3-car garage finds the mudroom w/ lockers and powder bath. Upstairs the large primary bedroom features a trey ceiling, sitting area, and overlooks the backyard. The spa-like primary bathroom includes a large tile shower with a glass enclosure, double vanity, freestanding tub, and a huge walk-in closet. There are also 3 large secondary bedrooms, each with a private bathroom, and the laundry room. Additional standard features include extensive hardwood flooring, 10 ft ceilings w/ 8 ft solid core doors on the main floor, irrigation system, tankless water heater, double-hung Pella windows, 3-car garage, plus many more. In Highvale, this floorplan can be built as a slab or basement. For your peace of mind, we include with each home a Builder's Warranty and a Structural Warranty. Come and experience the Bercher Homes difference. With our unique, team approach to the design process, this can be the home of your dreams. List price here does not include buyer-specific upgrades and options. Lot premium may apply. Interested but looking for a different home setup? We have 8 unique floorplans available to build in Highvale! Homebuyers will enjoy our nearby design center, where you can personalize all your selections to make this home truly your own. At Bercher Homes, we believe in Great Homes, Great Life. Let’s build something great together!
Accent Realty Group, LLC., MLS 7754152
Information last verified by Jome: Today at 2:29 AM (April 20, 2026)
Home highlights
Home of the Atlanta Braves with modern ballpark vibes, dining, and housing in the vibrant Battery Atlanta district.
Book your tour. Save an average of $18,473. We'll handle the rest.
We collect exclusive builder offers, book your tours, and support you from start to housewarming.
- Confirmed tours
- Get matched & compare top deals
- Expert help, no pressure
- No added fees
Estimated value based on Jome data, T&C apply
Home details
- Property status:
- Under construction
- Lot size (acres):
- 0.46
- Size:
- 3,454 sqft
- Stories:
- 2
- Beds:
- 4
- Baths:
- 4
- Half baths:
- 1
- Garage spaces:
- 3
- Fence:
- No Fence
Construction details
- Year Built:
- 2026
- Roof:
- Metal Roofing, Roof Gutter, Composition Roofing
Home features & finishes
- Appliances:
- Sprinkler System
- Construction Materials:
- Brick
- Cooling:
- Central Air
- Flooring:
- Carpet FlooringTile FlooringHardwood Flooring
- Foundation Details:
- Slab
- Garage/Parking:
- Door OpenerGarageFront Entry Garage/ParkingSide Entry Garage/Parking
- Home amenities:
- Internet
- Interior Features:
- Ceiling-HighWalk-In ClosetCrown MoldingFoyerBuilt-in BookshelvesTray CeilingBreakfast BarWalk-In PantrySeparate ShowerDouble Vanity
- Kitchen:
- DishwasherMicrowave OvenOvenDisposalGas CooktopKitchen IslandDouble Oven
- Laundry facilities:
- Laundry Facilities On Upper LevelDryerUtility/Laundry Room
- Property amenities:
- BarSoaking TubLandscapingPatioFireplace
- Rooms:
- KitchenOffice/StudyFamily RoomOpen Concept Floorplan
- Security system:
- Security SystemSmoke DetectorCarbon Monoxide Detector

Get a consultation with our New Homes Expert
- See how your home builds wealth
- Plan your home-buying roadmap
- Discover hidden gems
Utility information
- Heating:
- Zoned Heating, Water Heater, Forced Air Heating, Tankless water heater
- Sewer:
- Public Sewer
- Utilities:
- Electricity Available, Underground Utilities, Cable Available, High Speed Internet Access
- Water source:
- Public
Community amenities
- Sidewalks Available
- Mountain(s) View
- Walking, Jogging, Hike Or Bike Trails
Neighborhood
Home address
Schools in Cobb County School District
GreatSchools’ Summary Rating calculation is based on 4 of the school’s themed ratings, including test scores, student/academic progress, college readiness, and equity. This information should only be used as a reference. Jome is not affiliated with GreatSchools and does not endorse or guarantee this information. Please reach out to schools directly to verify all information and enrollment eligibility. Data provided by GreatSchools.org © 2025
Places of interest
Getting around
1 nearby routes: 1 bus, 0 rail, 0 otherAir quality
Natural hazards risk
Provided by FEMA

Considering this home?
Our expert will guide your tour, in-person or virtual
Need more information?
Text or call (888) 545-5198
Financials
Estimated monthly payment
Let us help you find your dream home
How many bedrooms are you looking for?
Similar homes nearby
Recently added communities in this area
Nearby communities in Marietta
New homes in nearby cities
More New Homes in Marietta, GA
Accent Realty Group, LLC., MLS 7754152
Some IDX listings have been excluded from this IDX display. Listings identified with the FMLS IDX logo come from FMLS and are held by brokerage firms other than the owner of this website. The listing brokerage is identified in any listing details. Information is deemed reliable but is not guaranteed. If you believe any FMLS listing contains material that infringes your copyrighted work please click here to review our DMCA policy and learn how to submit a takedown request. © 2025 First Multiple Listing Service, Inc.
Read moreLast checked Apr 20, 1:40 pm
- Jome
- New homes search
- Georgia
- Atlanta Metropolitan Area
- Cobb County
- Marietta
- 020 Highvale Dr, Marietta, GA 30064
























