








Book your tour. Save an average of $18,473. We'll handle the rest.
We collect exclusive builder offers, book your tours, and support you from start to housewarming.
- Confirmed tours
- Get matched & compare top deals
- Expert help, no pressure
- No added fees
Estimated value based on Jome data, T&C apply


















- 3 bd
- 2.5 ba
- 1,473 sqft
106 Gardens Dr, Brunswick, GA 31525
Why tour with Jome?
- No pressure toursTour at your own pace with no sales pressure
- Expert guidanceGet insights from our home buying experts
- Exclusive accessSee homes and deals not available elsewhere
Jome is featured in
- Single-Family
- Quick move-in
- $187.37/sqft
- 13 days on Jome
Builder deals available
- TOP-TIER DEAL
USDA 30 Year Fixed
$18,230 est. value- Fixed rate from 4.99%
Conventional 30 Year Fixed
$18,230 est. value- Fixed rate from 4.99% with 5.408% APR and 5% down payment
VA 30 Year Fixed
$11,590 est. value- Fixed rate from 4.99%
FHA 30 Year Fixed
$9,790 est. value- Fixed rate from 4.99% with 5.697% APR and 3.5% down payment
Deals may change and are not guaranteed. Some deals apply to specific homes or plans. Not a financing offer. Eligibility varies by lender. Please verify details.
Home description
About this home
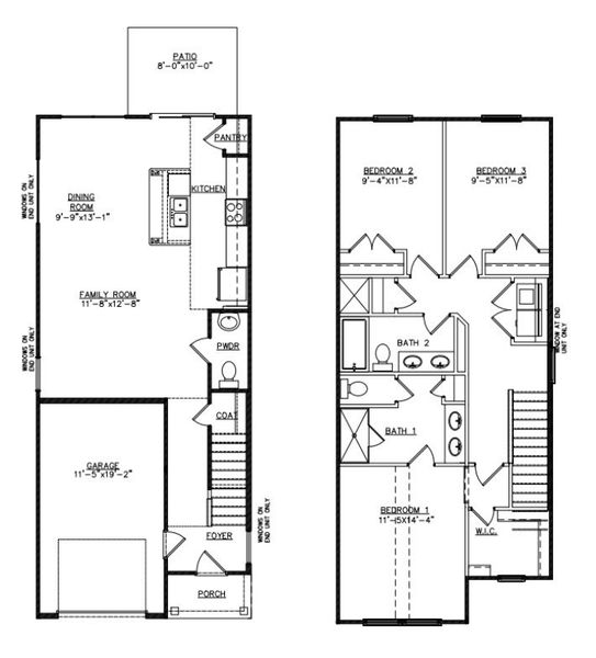
The Denmark is a thoughtfully designed two-story townhome that combines comfort, style, and convenience in a smart layout perfect for modern living.
Step inside to find an inviting open-concept main level featuring a well-appointed kitchen with a spacious island, quartz countertops, and a refrigerator included. The kitchen flows seamlessly into the dining and living areas, creating the ideal space for entertaining or relaxed family evenings. A powder room on the first floor adds convenience, while the one-car garage provides secure parking and extra storage.
Upstairs, the private primary suite offers a generous walk-in closet and en-suite bath with a double vanity, creating a true retreat. Two additional bedrooms and a shared full bath with double vanity give plenty of flexibility for family, guests, or work-from-home space. The upstairs laundry area makes day-to-day living easier and more efficient.
Close to Sterling Elementary and Jane Macon Middle School, and adjacent to Sterling Park, The Denmark offers the perfect mix of location and low-maintenance living.
Home is under construction.
May also be listed on the D.R. Horton website
Information last verified by Jome: Today at 1:28 AM (April 21, 2026)
Book your tour. Save an average of $18,473. We'll handle the rest.
We collect exclusive builder offers, book your tours, and support you from start to housewarming.
- Confirmed tours
- Get matched & compare top deals
- Expert help, no pressure
- No added fees
Estimated value based on Jome data, T&C apply
Home details
- Property status:
- Move-in ready
- Size:
- 1,473 sqft
- Stories:
- 2
- Beds:
- 3
- Baths:
- 2.5
- Garage spaces:
- 1
Construction details
- Builder Name:
- D.R. Horton
Home features & finishes
- Garage/Parking:
- Garage
- Interior Features:
- Walk-In ClosetFoyerPantry
- Laundry facilities:
- Utility/Laundry Room
- Property amenities:
- PatioPorch
- Rooms:
- KitchenPowder RoomDining RoomFamily RoomPrimary Bedroom Upstairs

Get a consultation with our New Homes Expert
- See how your home builds wealth
- Plan your home-buying roadmap
- Discover hidden gems

Community details
McKenzie Gardens
by D.R. Horton, Brunswick, GA
- 6 homes
- 3 plans
- 1,473 - 1,763 sqft
View McKenzie Gardens details
More homes in McKenzie Gardens
- Home at address 108 Gardens Dr, Brunswick, GA 31525

Davis
Savings$275,990
- 3 bd
- 2.5 ba
- 1,524 sqft
108 Gardens Dr, Brunswick, GA 31525
- Home at address 105 Gardens Dr, Brunswick, GA 31525

Denmark
Savings$275,990
- 3 bd
- 2.5 ba
- 1,473 sqft
105 Gardens Dr, Brunswick, GA 31525
- Home at address 103 Gardens Dr, Brunswick, GA 31525

Davis
Savings$279,990
- 3 bd
- 2.5 ba
- 1,524 sqft
103 Gardens Dr, Brunswick, GA 31525
- Home at address 101 Gardens Dr, Brunswick, GA 31525

Norman
Savings$296,990
- 4 bd
- 2.5 ba
- 1,763 sqft
101 Gardens Dr, Brunswick, GA 31525
- Home at address 110 Gardens Dr, Brunswick, GA 31525

Norman
Savings$296,990
- 4 bd
- 2.5 ba
- 1,763 sqft
110 Gardens Dr, Brunswick, GA 31525
Floor plans in McKenzie Gardens
About the builder - D.R. Horton

- 1,155communities on Jome
- 10,680homes on Jome
Neighborhood
Home address
Schools in Glynn County School District
GreatSchools’ Summary Rating calculation is based on 4 of the school’s themed ratings, including test scores, student/academic progress, college readiness, and equity. This information should only be used as a reference. Jome is not affiliated with GreatSchools and does not endorse or guarantee this information. Please reach out to schools directly to verify all information and enrollment eligibility. Data provided by GreatSchools.org © 2025
Getting around
Air quality
Noise level
A Soundscore™ rating is a number between 50 (very loud) and 100 (very quiet) that tells you how loud a location is due to environmental noise.

Considering this home?
Our expert will guide your tour, in-person or virtual
Need more information?
Text or call (888) 545-5198
Financials
Estimated monthly payment
Let us help you find your dream home
How many bedrooms are you looking for?
Similar homes nearby
Recently added communities in this area
Nearby communities in Brunswick
New homes in nearby cities
More New Homes in Brunswick, GA
- Jome
- New homes search
- Georgia
- Glynn County
- Brunswick
- McKenzie Gardens
- 106 Gardens Dr, Brunswick, GA 31525










