



Book your tour. Save an average of $18,473. We'll handle the rest.
We collect exclusive builder offers, book your tours, and support you from start to housewarming.
- Confirmed tours
- Get matched & compare top deals
- Expert help, no pressure
- No added fees
Estimated value based on Jome data, T&C apply
Why tour with Jome?
- No pressure toursTour at your own pace with no sales pressure
- Expert guidanceGet insights from our home buying experts
- Exclusive accessSee homes and deals not available elsewhere
Jome is featured in
- Single-Family
- Quick move-in
- $210.79/sqft
- $650/annual HOA
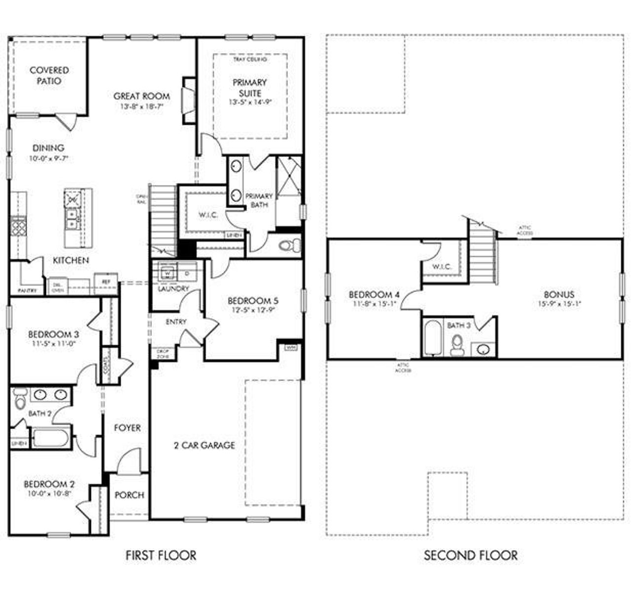
Home description
Brand new, energy-efficient home available by Mar 2026! Create a play room or office in the Northbrook's upstairs bonus room. On the main level, the kitchen is the heart of the open-concept living space. Tray ceilings and a large walk-in closet complement the primary suite. New energy-efficient move-in ready homes in Walton County include a washer, dryer, fridge, and whole home blinds, plus they can be closing-ready in 60 days or less—guaranteed. (You'll be reimbursed up to $5,000 in expenses related to delays we cause.) Have it all: Relax in your primary bedroom, enjoy your extended garage, and experience the beautiful landscape all with easy access to the Walton County YMCA and nearby schools. Each of our homes is built with innovative, energy-efficient features designed to help you enjoy more savings, better health, real comfort and peace of mind.
Meritage Homes Of Georgia Realty, LLC, MLS 7741539
May also be listed on the Meritage Homes website
Information last verified by Jome: Today at 7:47 PM (April 1, 2026)
Home highlights
Georgia’s iconic park featuring scenic trails, a historic granite dome, and year-round family attractions near Atlanta.
Book your tour. Save an average of $18,473. We'll handle the rest.
We collect exclusive builder offers, book your tours, and support you from start to housewarming.
- Confirmed tours
- Get matched & compare top deals
- Expert help, no pressure
- No added fees
Estimated value based on Jome data, T&C apply
Home details
- Property status:
- Move-in ready
- Lot size (acres):
- 0.32
- Size:
- 2,412 sqft
- Stories:
- 1.5
- Beds:
- 5
- Baths:
- 3
- Garage spaces:
- 2
- Fence:
- No Fence
Construction details
- Builder Name:
- Meritage Homes
- Year Built:
- 2026
- Roof:
- Composition Roofing, Shingle Roofing
Home features & finishes
- Appliances:
- Trash Compactor
- Construction Materials:
- CementBrick
- Cooling:
- Central Air
- Flooring:
- Carpet Flooring
- Foundation Details:
- Slab
- Garage/Parking:
- GarageSide Entry Garage/ParkingAttached Garage
- Home amenities:
- InternetENERGY STAR CertifiedGreen Construction
- Interior Features:
- Walk-In ClosetShuttersFoyerTray CeilingWalk-In PantryDouble Vanity
- Kitchen:
- DishwasherMicrowave OvenOvenRefrigeratorGas CooktopKitchen IslandDouble Oven
- Laundry facilities:
- DryerWasherLaundry Facilities On Main LevelUtility/Laundry Room
- Property amenities:
- Gas Log FireplaceBackyardLandscapingCabinetsPatioFireplaceYardSmart Home SystemPorch
- Rooms:
- Bonus RoomPrimary Bedroom On MainKitchenMudroomOpen Concept FloorplanPrimary Bedroom Downstairs
- Security system:
- Fire Alarm SystemSmoke DetectorCarbon Monoxide Detector

Get a consultation with our New Homes Expert
- See how your home builds wealth
- Plan your home-buying roadmap
- Discover hidden gems
Utility information
- Heating:
- Zoned Heating, Water Heater, Central Heating, Tankless water heater
- Utilities:
- Electricity Available, Natural Gas Available, Underground Utilities, Phone Available, HVAC, Cable Available, Sewer Available, Water Available, High Speed Internet Access

Community details
River Pointe
by Meritage Homes, Monroe, GA
- 12 homes
- 2,412 - 3,494 sqft
View River Pointe details
Community amenities
- Playground
- Club House
- Community Pool
- Sidewalks Available
- Greenbelt View
- Shopping Nearby
More homes in River Pointe
- Home at address 1292 Whitman Cir, Monroe, GA 30656

Jefferson
$520,990
- 6 bd
- 3 ba
- 2,970 sqft
1292 Whitman Cir, Monroe, GA 30656
- Home at address 1293 Orwell Ln, Monroe, GA 30656

Jefferson
$526,890
- 6 bd
- 3 ba
- 2,970 sqft
1293 Orwell Ln, Monroe, GA 30656
- Home at address 1294 Orwell Ln, Monroe, GA 30656

Johnson
$539,990
- 5 bd
- 4 ba
- 2,950 sqft
1294 Orwell Ln, Monroe, GA 30656
- Home at address 2104 Homer Dr, Monroe, GA 30656

Johnson
$541,515
- 5 bd
- 4 ba
- 2,950 sqft
2104 Homer Dr, Monroe, GA 30656
- Home at address 1294 Whitman Cir, Monroe, GA 30656

Taylorsville
$554,615
- 5 bd
- 4.5 ba
- 3,252 sqft
1294 Whitman Cir, Monroe, GA 30656
- Home at address 2108 Homer Dr, Monroe, GA 30656

Home
$560,690
- 5 bd
- 4 ba
- 3,494 sqft
2108 Homer Dr, Monroe, GA 30656
About the builder - Meritage Homes

- 320communities on Jome
- 2,588homes on Jome
Neighborhood
Home address
Schools in Walton County School District
GreatSchools’ Summary Rating calculation is based on 4 of the school’s themed ratings, including test scores, student/academic progress, college readiness, and equity. This information should only be used as a reference. Jome is not affiliated with GreatSchools and does not endorse or guarantee this information. Please reach out to schools directly to verify all information and enrollment eligibility. Data provided by GreatSchools.org © 2025
Places of interest
Getting around
Air quality
Noise level
A Soundscore™ rating is a number between 50 (very loud) and 100 (very quiet) that tells you how loud a location is due to environmental noise.

Considering this home?
Our expert will guide your tour, in-person or virtual
Need more information?
Text or call (888) 545-5198
Financials
Estimated monthly payment
Let us help you find your dream home
How many bedrooms are you looking for?
Similar homes nearby
Recently added communities in this area
Nearby communities in Monroe
New homes in nearby cities
More New Homes in Monroe, GA
Meritage Homes Of Georgia Realty, LLC, MLS 7741539
Some IDX listings have been excluded from this IDX display. Listings identified with the FMLS IDX logo come from FMLS and are held by brokerage firms other than the owner of this website. The listing brokerage is identified in any listing details. Information is deemed reliable but is not guaranteed. If you believe any FMLS listing contains material that infringes your copyrighted work please click here to review our DMCA policy and learn how to submit a takedown request. © 2025 First Multiple Listing Service, Inc.
Read moreLast checked Apr 1, 7:40 pm
- Jome
- New homes search
- Georgia
- Atlanta Metropolitan Area
- Walton County
- Monroe
- River Pointe
- 2107 Homer Dr, Monroe, GA 30656

























