



Book your tour. Save an average of $18,473. We'll handle the rest.
We collect exclusive builder offers, book your tours, and support you from start to housewarming.
- Confirmed tours
- Get matched & compare top deals
- Expert help, no pressure
- No added fees
Estimated value based on Jome data, T&C apply

- 5 bd
- 4.5 ba
- 3,027 sqft
5155 Reece Run, Cumming, GA 30041
Why tour with Jome?
- No pressure toursTour at your own pace with no sales pressure
- Expert guidanceGet insights from our home buying experts
- Exclusive accessSee homes and deals not available elsewhere
Jome is featured in
- Single-Family
- Quick move-in
- $247.74/sqft
- 1.00-acre lot
Home description
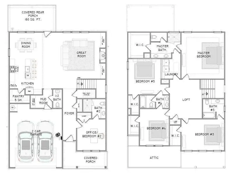
From the 2024 Community of the Year award winning builder, David Patterson Homes, Reece Run offers large estate lots with plenty of space between homes and no HOA. Imagine building your dream life on a spectacular 1-acre flat and entirely usable lot. David Patterson Homes presents the spacious RHETT PLAN (A elevation), a spacious and thoughtfully designed 5-bedroom, 4.5-bath residence. As you enter through the grand 8' entry door, you'll be greeted by an open-concept floor plan. The heart of the home is a chef's dream kitchen, boasting custom shaker cabinets, pristine quartz countertops, and a large central island perfect for gathering and entertaining. A convenient walk-in pantry seamlessly connects to the kitchen and eat-in kitchen making dinner parties a breeze. The main floor offers a private, dedicated office space or guest suite, complete with its own bathroom and closet. Upstairs, the luxurious owner's suite provides a peaceful retreat with a spa-like bath featuring a separate garden tub and tiled shower. A second-floor laundry room is intelligently designed for easy access from both the owner's closet and the hallway. With every bedroom having direct access to a bathroom, this home provides comfort and convenience for all. The exterior is just as functional, featuring a two-car garage for ample storage. This home is is under construction with an estimated completion date of July 2026.
LLane & Co., MLS 7743571
Information last verified by Jome: Today at 2:36 AM (April 1, 2026)
Home highlights
Popular North Georgia lake offering boating, fishing, and lakeside living near metro Atlanta and mountain getaways.
Book your tour. Save an average of $18,473. We'll handle the rest.
We collect exclusive builder offers, book your tours, and support you from start to housewarming.
- Confirmed tours
- Get matched & compare top deals
- Expert help, no pressure
- No added fees
Estimated value based on Jome data, T&C apply
Home details
- Property status:
- Move-in ready
- Lot size (acres):
- 1.00
- Size:
- 3,027 sqft
- Stories:
- 2
- Beds:
- 5
- Baths:
- 4
- Half baths:
- 1
- Garage spaces:
- 2
- Fence:
- No Fence
Construction details
- Year Built:
- 2026
- Roof:
- Composition Roofing, Shingle Roofing
Home features & finishes
- Construction Materials:
- CementConcrete
- Cooling:
- Central Air
- Flooring:
- Carpet FlooringHardwood Flooring
- Foundation Details:
- Slab
- Garage/Parking:
- Garage
- Interior Features:
- Ceiling-HighPantryWalk-In PantryLoftSeparate ShowerDouble Vanity
- Kitchen:
- DishwasherKitchen Island
- Laundry facilities:
- Laundry Facilities On Upper LevelUtility/Laundry Room
- Property amenities:
- BackyardLandscapingPatioFireplaceYard
- Rooms:
- KitchenFamily RoomOpen Concept Floorplan
- Security system:
- Smoke DetectorCarbon Monoxide Detector

Get a consultation with our New Homes Expert
- See how your home builds wealth
- Plan your home-buying roadmap
- Discover hidden gems
Utility information
- Heating:
- Forced Air Heating
- Utilities:
- Electricity Available, Water Available
Community amenities
- Greenbelt View
Neighborhood
Home address
Schools in Forsyth County School District
GreatSchools’ Summary Rating calculation is based on 4 of the school’s themed ratings, including test scores, student/academic progress, college readiness, and equity. This information should only be used as a reference. Jome is not affiliated with GreatSchools and does not endorse or guarantee this information. Please reach out to schools directly to verify all information and enrollment eligibility. Data provided by GreatSchools.org © 2025
Places of interest
Getting around
Air quality
Noise level
A Soundscore™ rating is a number between 50 (very loud) and 100 (very quiet) that tells you how loud a location is due to environmental noise.
Natural hazards risk
Provided by FEMA

Considering this home?
Our expert will guide your tour, in-person or virtual
Need more information?
Text or call (888) 545-5198
Financials
Estimated monthly payment
Let us help you find your dream home
How many bedrooms are you looking for?
Similar homes nearby
Recently added communities in this area
Nearby communities in Cumming
New homes in nearby cities
More New Homes in Cumming, GA
LLane & Co., MLS 7743571
Some IDX listings have been excluded from this IDX display. Listings identified with the FMLS IDX logo come from FMLS and are held by brokerage firms other than the owner of this website. The listing brokerage is identified in any listing details. Information is deemed reliable but is not guaranteed. If you believe any FMLS listing contains material that infringes your copyrighted work please click here to review our DMCA policy and learn how to submit a takedown request. © 2025 First Multiple Listing Service, Inc.
Read moreLast checked Apr 1, 1:40 am
- Jome
- New homes search
- Georgia
- Atlanta Metropolitan Area
- Forsyth County
- Cumming
- 5155 Reece Run, Cumming, GA 30041

























