



Book your tour. Save an average of $18,473. We'll handle the rest.
We collect exclusive builder offers, book your tours, and support you from start to housewarming.
- Confirmed tours
- Get matched & compare top deals
- Expert help, no pressure
- No added fees
Estimated value based on Jome data, T&C apply

- 3 bd
- 3.5 ba
1021 Riverstone Dr, Social Circle, GA 30025
Why tour with Jome?
- No pressure toursTour at your own pace with no sales pressure
- Expert guidanceGet insights from our home buying experts
- Exclusive accessSee homes and deals not available elsewhere
Jome is featured in
- Single-Family
- Under construction
- $200/annual HOA
- 4.58-acre lot
Home description
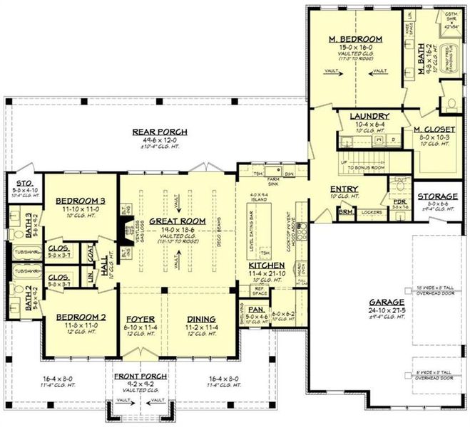
Brand-new custom home on 4.5 private acres in the Social Circle school zone, offering timeless curb appeal with board and batten Hardie siding, brick water table, and expansive front and back porches. Inside, the vaulted living area flows into a stunning kitchen featuring granite countertops, cooktop with vent hood, wall oven, butler's pantry, and oversized walk-in pantry. Decorative trim, crown molding, and high ceilings add elevated detail throughout. The vaulted primary suite includes a spa-like bath with soaking tub, oversized tile shower, and spacious walk-in closet. Each secondary bedroom features its own ensuite bath and walk-in closet for added privacy. An unfinished bonus room, already stubbed for a bath, provides future potential for additional living space. Enjoy peaceful acreage with room to expand, all while remaining convenient to shopping, dining, and I-20 access. Estimated completion June 2026. Plans and finishes subject to change at builder's discretion. Measurements approximate.
Purser Realty, LLC, MLS 7739792
Information last verified by Jome: Today at 2:33 AM (April 1, 2026)
Home highlights
Georgia’s iconic park featuring scenic trails, a historic granite dome, and year-round family attractions near Atlanta.
Book your tour. Save an average of $18,473. We'll handle the rest.
We collect exclusive builder offers, book your tours, and support you from start to housewarming.
- Confirmed tours
- Get matched & compare top deals
- Expert help, no pressure
- No added fees
Estimated value based on Jome data, T&C apply
Home details
- Property status:
- Under construction
- Lot size (acres):
- 4.58
- Stories:
- 1
- Beds:
- 3
- Baths:
- 3
- Half baths:
- 1
- Garage spaces:
- 3
- Fence:
- No Fence
Construction details
- Year Built:
- 2026
- Roof:
- Composition Roofing, Shingle Roofing
Home features & finishes
- Construction Materials:
- CementConcreteBrick
- Cooling:
- Ceiling Fan(s)Central Air
- Flooring:
- Carpet Flooring
- Foundation Details:
- Slab
- Garage/Parking:
- GarageAttached Garage
- Home amenities:
- Green Construction
- Interior Features:
- Ceiling-HighCeiling-VaultedWalk-In ClosetCrown MoldingWalk-In PantrySeparate ShowerDouble Vanity
- Kitchen:
- DishwasherMicrowave OvenOvenElectric CooktopKitchen IslandDouble Oven
- Laundry facilities:
- Utility/Laundry Room
- Property amenities:
- Soaking TubCabinetsFireplacePorch
- Rooms:
- AtticPrimary Bedroom On MainKitchenDining RoomLiving RoomOpen Concept FloorplanSeparate Living and DiningPrimary Bedroom Downstairs
- Security system:
- Smoke DetectorCarbon Monoxide Detector

Get a consultation with our New Homes Expert
- See how your home builds wealth
- Plan your home-buying roadmap
- Discover hidden gems
Utility information
- Heating:
- Electric Heating, Water Heater, Central Heating, Tankless water heater
- Utilities:
- Electricity Available, Water Available
Community amenities
- Woods View
- Greenbelt View
Neighborhood
Home address
- City:
- Social Circle
- County:
- Walton
- Zip Code:
- 30025
Schools in Walton County School District
- Grades PK-12Privatejersey christian school4.5 mi3429 monroe jersey rdna
GreatSchools’ Summary Rating calculation is based on 4 of the school’s themed ratings, including test scores, student/academic progress, college readiness, and equity. This information should only be used as a reference. Jome is not affiliated with GreatSchools and does not endorse or guarantee this information. Please reach out to schools directly to verify all information and enrollment eligibility. Data provided by GreatSchools.org © 2025
Places of interest
Getting around
Air quality
Natural hazards risk
Provided by FEMA

Considering this home?
Our expert will guide your tour, in-person or virtual
Need more information?
Text or call (888) 545-5198
Financials
Estimated monthly payment
Let us help you find your dream home
How many bedrooms are you looking for?
Similar homes nearby
Recently added communities in this area
Nearby communities in Social Circle
New homes in nearby cities
More New Homes in Social Circle, GA
Purser Realty, LLC, MLS 7739792
Some IDX listings have been excluded from this IDX display. Listings identified with the FMLS IDX logo come from FMLS and are held by brokerage firms other than the owner of this website. The listing brokerage is identified in any listing details. Information is deemed reliable but is not guaranteed. If you believe any FMLS listing contains material that infringes your copyrighted work please click here to review our DMCA policy and learn how to submit a takedown request. © 2025 First Multiple Listing Service, Inc.
Read moreLast checked Apr 1, 1:40 am
- Jome
- New homes search
- Georgia
- Walton County
- Social Circle
- 1021 Riverstone Dr, Social Circle, GA 30025


























