



Book your tour. Save an average of $18,473. We'll handle the rest.
We collect exclusive builder offers, book your tours, and support you from start to housewarming.
- Confirmed tours
- Get matched & compare top deals
- Expert help, no pressure
- No added fees
Estimated value based on Jome data, T&C apply

- 4 bd
- 3 ba
- 2,860 sqft
78 Faulkner Cir, Social Circle, GA 30025
Why tour with Jome?
- No pressure toursTour at your own pace with no sales pressure
- Expert guidanceGet insights from our home buying experts
- Exclusive accessSee homes and deals not available elsewhere
Jome is featured in
- Single-Family
- Ready by July 2026
- $139.09/sqft
- $700/annual HOA
Home description
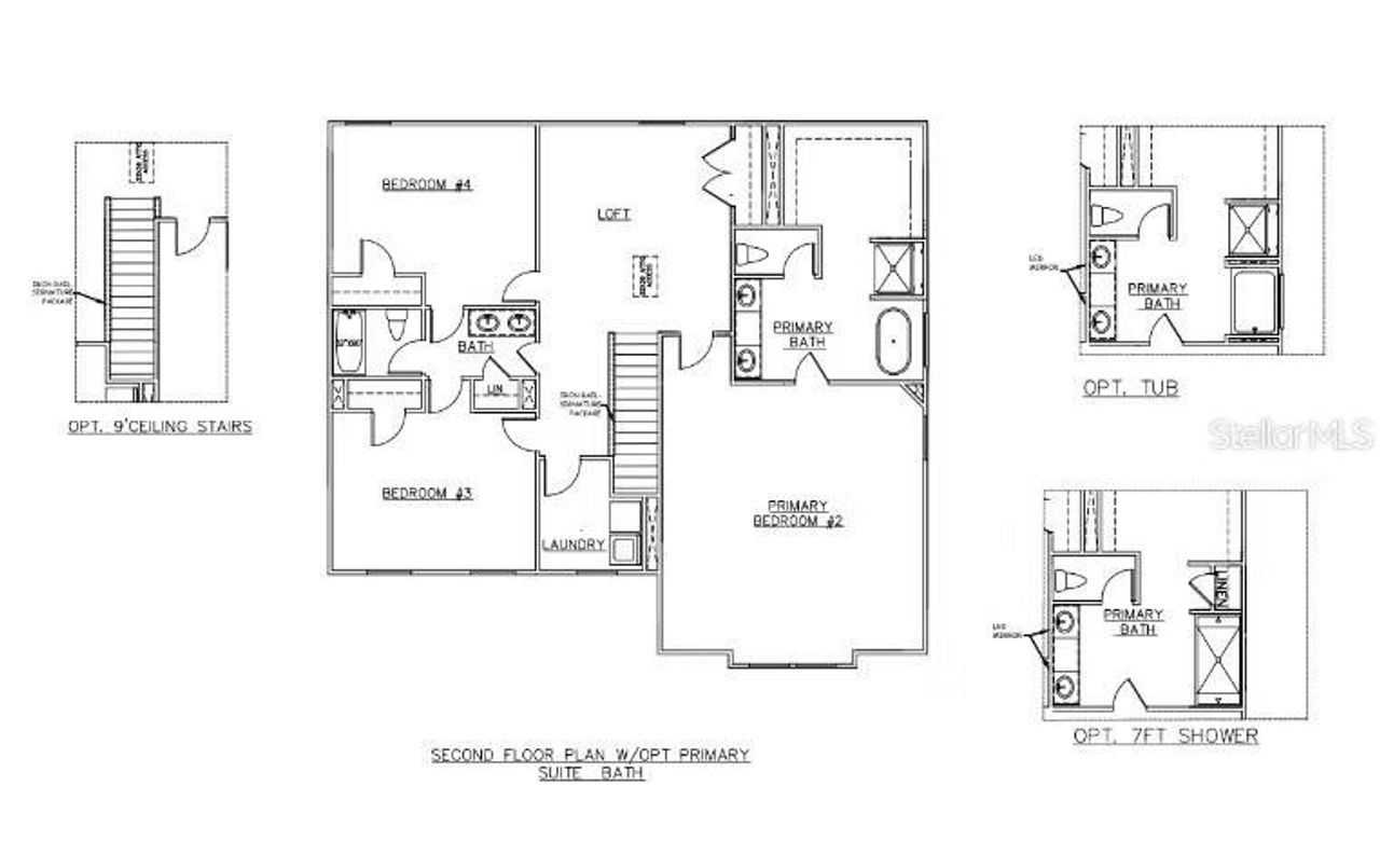
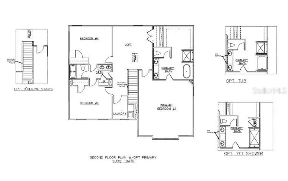
SAMPLE IMAGE The improved Mira II offers not one, but TWO primary suites - one upstairs and one downstairs. The kitchen includes a large prep island with seating, a walk-in pantry, and a dining area. The downstairs primary suite features a full bath and a spacious walk-in closet with convenient washer & dryer hookups. Upstairs, you'll find a loft area, 2 additional bedrooms with a connecting full bathroom, and the upstairs primary suite with a walk-in closet and private bathroom. An additional laundry area is also located upstairs. The sample photos included are of the model home and are meant to showcase the craftsmanship and design quality.
OLYMPUS EXECUTIVE REALTY INC, MLS G5111320
May also be listed on the Dream Finders Homes website
Information last verified by Jome: Today at 3:16 PM (April 21, 2026)
Home highlights
Georgia’s iconic park featuring scenic trails, a historic granite dome, and year-round family attractions near Atlanta.
Book your tour. Save an average of $18,473. We'll handle the rest.
We collect exclusive builder offers, book your tours, and support you from start to housewarming.
- Confirmed tours
- Get matched & compare top deals
- Expert help, no pressure
- No added fees
Estimated value based on Jome data, T&C apply
Home details
- Property status:
- Under construction
- Lot size (acres):
- 0.23
- Size:
- 2,860 sqft
- Stories:
- 2
- Beds:
- 4
- Baths:
- 3
- Garage spaces:
- 2
- Facing direction:
- Northeast
Construction details
- Builder Name:
- Dream Finders Homes
- Completion Date:
- July, 2026
- Year Built:
- 2026
Home features & finishes
- Construction Materials:
- CementConcreteBrick
- Cooling:
- Central Air
- Flooring:
- Ceramic FlooringVinyl FlooringCarpet FlooringTile Flooring
- Foundation Details:
- SlabBrick/Mortar
- Garage/Parking:
- ParkingGarageAttached Garage
- Interior Features:
- Ceiling-HighWindow TreatmentsWalk-In Closet
- Kitchen:
- DishwasherMicrowave Oven
- Laundry facilities:
- Utility/Laundry Room
- Lighting:
- Exterior Lighting
- Pets:
- Pets Allowed
- Property amenities:
- SidewalkPatioFireplace
- Rooms:
- Family Room
- Security system:
- Smoke Detector

Get a consultation with our New Homes Expert
- See how your home builds wealth
- Plan your home-buying roadmap
- Discover hidden gems
Utility information
- Heating:
- Zoned Heating, Water Heater, Central Heating, Gas Heating
- Sewer:
- Public Sewer
- Utilities:
- Electricity Available, Natural Gas Available, Underground Utilities, Phone Available, Cable Available, Sewer Available
- Water source:
- Public

Community details
Conner Springs
by Dream Finders Homes, Social Circle, GA
- 15 homes
- 7 plans
- 2,000 - 2,860 sqft
View Conner Springs details
Community amenities
- Woods View
- Playground
- Community Pool
- Sidewalks Available
More homes in Conner Springs
- Home at address 88 Faulkner Cir, Social Circle, GA 30025

Home
Savings$365,440
- 4 bd
- 3 ba
- 2,000 sqft
88 Faulkner Cir, Social Circle, GA 30025
- Home at address 50 Faulkner Cir, Social Circle, GA 30025

Home
Savings$367,940
- 4 bd
- 3 ba
- 2,000 sqft
50 Faulkner Cir, Social Circle, GA 30025
- Home at address 88 Faulkner Circle Social Cir, Social Circle, GA 30025

Shiloh
Savings$371,440
- 4 bd
- 3 ba
- 2,000 sqft
88 Faulkner Circle Social Cir, Social Circle, GA 30025
- Home at address 87 Faulkner Circle Social Cir, Social Circle, GA 30025

Sinclair
Savings$387,190
- 4 bd
- 3 ba
- 2,685 sqft
87 Faulkner Circle Social Cir, Social Circle, GA 30025
- Home at address 61 Faulkner Cir, Social Circle, GA 30025

Home
Savings$388,290
- 4 bd
- 3 ba
- 2,550 sqft
61 Faulkner Cir, Social Circle, GA 30025
- Home at address 62 Faulkner Cir, Social Circle, GA 30025

Home
Savings$388,290
- 4 bd
- 3 ba
- 2,685 sqft
62 Faulkner Cir, Social Circle, GA 30025
Floor plans in Conner Springs
- View details for Tucker Front Porch - Single Family Homes

Tucker Front Porch - Single Family Homes
Savings$351,990+- 4 bd
- 2.5 ba
- 2,300 sqft
- View details for Shiloh - Single Family Homes

Shiloh - Single Family Homes
Savings$356,990+- 4 bd
- 3 ba
- 2,000 sqft
About the builder - Dream Finders Homes

- 331communities on Jome
- 1,569homes on Jome
Neighborhood
Home address
- City:
- Social Circle
- Zip Code:
- 30025
Schools in Social Circle City School District
GreatSchools’ Summary Rating calculation is based on 4 of the school’s themed ratings, including test scores, student/academic progress, college readiness, and equity. This information should only be used as a reference. Jome is not affiliated with GreatSchools and does not endorse or guarantee this information. Please reach out to schools directly to verify all information and enrollment eligibility. Data provided by GreatSchools.org © 2025
Places of interest
Getting around
Air quality
Noise level
A Soundscore™ rating is a number between 50 (very loud) and 100 (very quiet) that tells you how loud a location is due to environmental noise.

Considering this home?
Our expert will guide your tour, in-person or virtual
Need more information?
Text or call (888) 545-5198
Financials
Estimated monthly payment
Let us help you find your dream home
How many bedrooms are you looking for?
Similar homes nearby
Recently added communities in this area
Nearby communities in Social Circle
New homes in nearby cities
More New Homes in Social Circle, GA
OLYMPUS EXECUTIVE REALTY INC, MLS G5111320
Based on information submitted to the MLS GRID as of 10/21/2024 2:31 PM CDT. All data is obtained from various sources and may not have been verified by broker or MLS GRID. Supplied Open House Information is subject to change without notice. All information should be independently reviewed and verified for accuracy. Properties may or may not be listed by the office/agent presenting the information. Some IDX listings have been excluded from this website. Properties displayed may be listed or sold by various participants in the MLS. IDX information is provided exclusively for personal, non-commercial use, and may not be used for any purpose other than to identify prospective properties consumers may be interested in purchasing. Information is deemed reliable but not guaranteed. Use of the MLS GRID Data may be subject to an end user license agreement prescribed by the Member Participant’s applicable MLS if any and as amended from time to time. The Digital Millennium Copyright Act of 1998, 17 U.S.C. § 512 (the “DMCA”) provides recourse for copyright owners who believe that material appearing on the Internet infringes their rights under U.S. copyright law. If you believe in good faith that any content or material made available in connection with our website or services infringes your copyright, you (or your agent) may send us a notice requesting that the content or material be removed, or access to it blocked. Notices must be sent in writing by email to DMCAnotice@MLSGrid.com. The DMCA requires that your notice of alleged copyright infringement include the following information: (1) description of the copyrighted work that is the subject of claimed infringement; (2) description of the alleged infringing content and information sufficient to permit us to locate the content; (3) contact information for you, including your address, telephone number and email address; (4) a statement by you that you have a good faith belief that the content in the manner complained of is not authorized by the copyright owner, or its agent, or by the operation of any law; (5) a statement by you, signed under penalty of perjury, that the information in the notification is accurate and that you have the authority to enforce the copyrights that are claimed to be infringed; and (6) a physical or electronic signature of the copyright owner or a person authorized to act on the copyright owner’s behalf. Failure to include all of the above information may result in the delay of the processing of your complaint. Listing Information presented by local MLS brokerage: NewHomesMate LLC, DBA Jome (888) 545-5198
Read moreLast checked Apr 21, 3:10 pm
- Jome
- New homes search
- Georgia
- Social Circle
- Conner Springs
- 78 Faulkner Cir, Social Circle, GA 30025





























