








Book your tour. Save an average of $18,473. We'll handle the rest.
We collect exclusive builder offers, book your tours, and support you from start to housewarming.
- Confirmed tours
- Get matched & compare top deals
- Expert help, no pressure
- No added fees
Estimated value based on Jome data, T&C apply
























Why tour with Jome?
- No pressure toursTour at your own pace with no sales pressure
- Expert guidanceGet insights from our home buying experts
- Exclusive accessSee homes and deals not available elsewhere
Jome is featured in
- Townhouse
- Quick move-in
- $246.82/sqft
- $1,200/annual HOA
Home description
Welcome home to this beautifully crafted new construction townhome offering 3 bedrooms and 2.5 baths designed for today’s lifestyle. Step inside to an open-concept main level that’s perfect for everyday living and effortless entertaining, featuring spacious living and dining areas filled with natural light.
The thoughtfully designed kitchen flows seamlessly into the main living space, making it ideal for hosting guests or relaxing at home. Upstairs, the owner’s suite offers a private retreat with a well-appointed bath and generous closet space, while two additional bedrooms provide flexibility for guests, a home office, or growing needs.
Enjoy the convenience of low-maintenance townhome living just 15 minutes from grocery shopping, local events, Truist Park, and popular dining and entertainment destinations. Whether you’re commuting, catching a game, or exploring nearby attractions, this location keeps you close to it all.
Don’t miss the opportunity to own a brand-new townhome that combines modern design, comfort, and unbeatable convenience.
D.R. Horton Realty of GA, Inc.-Atlanta Central Division, MLS 7716748
May also be listed on the D.R. Horton website
Information last verified by Jome: Today at 2:18 AM (May 30, 2026)
Book your tour. Save an average of $18,473. We'll handle the rest.
We collect exclusive builder offers, book your tours, and support you from start to housewarming.
- Confirmed tours
- Get matched & compare top deals
- Expert help, no pressure
- No added fees
Estimated value based on Jome data, T&C apply
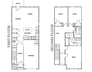
Home details
- Property status:
- Move-in ready
- Neighborhood:
- West Highlands
- Size:
- 1,418 sqft
- Stories:
- 2
- Beds:
- 3
- Baths:
- 2
- Half baths:
- 1
- Garage spaces:
- 1
- Fence:
- No Fence
Construction details
- Builder Name:
- D.R. Horton
- Year Built:
- 2026
- Roof:
- Composition Roofing
Home features & finishes
- Cooling:
- Central Air
- Flooring:
- Vinyl FlooringCarpet Flooring
- Foundation Details:
- Slab
- Garage/Parking:
- GarageAttached Garage
- Interior Features:
- FoyerPantryLoftDouble Vanity
- Kitchen:
- Microwave OvenRefrigeratorKitchen IslandKitchen RangeElectric Oven
- Laundry facilities:
- Laundry Facilities On Upper Level
- Property amenities:
- LandscapingPatio
- Rooms:
- KitchenOpen Concept Floorplan
- Security system:
- Fire Alarm SystemCarbon Monoxide Detector

Get a consultation with our New Homes Expert
- See how your home builds wealth
- Plan your home-buying roadmap
- Discover hidden gems
Utility information
- Heating:
- Central Heating
- Sewer:
- Public Sewer
- Utilities:
- Electricity Available, Underground Utilities, Cable Available, Water Available
- Water source:
- Public

Community details
Towns at Monroe
by D.R. Horton, Atlanta, GA
- 11 homes
- 1 plan
- 1,418 - 1,418 sqft
View Towns at Monroe details
Community amenities
- City View
More homes in Towns at Monroe
- Home at address 2838 Georgia Aster Wy Nw, Atlanta, GA 30318

Pearson
$348,990
- 3 bd
- 2.5 ba
- 1,418 sqft
2838 Georgia Aster Wy Nw, Atlanta, GA 30318
- Home at address 2840 Georgia Aster Wy Nw, Atlanta, GA 30318

Pearson
$348,990
- 3 bd
- 2.5 ba
- 1,418 sqft
2840 Georgia Aster Wy Nw, Atlanta, GA 30318
- Home at address 2831 Georgia Aster Wy Nw, Atlanta, GA 30318

Pearson
$351,490
- 3 bd
- 2.5 ba
- 1,418 sqft
2831 Georgia Aster Wy Nw, Atlanta, GA 30318
- Home at address 2829 Georgia Aster Wy Nw, Atlanta, GA 30318

Pearson
$351,490
- 3 bd
- 2.5 ba
- 1,418 sqft
2829 Georgia Aster Wy Nw, Atlanta, GA 30318
- Home at address 2834 Georgia Aster Wy Nw, Atlanta, GA 30318

Pearson
$352,490
- 3 bd
- 2.5 ba
- 1,418 sqft
2834 Georgia Aster Wy Nw, Atlanta, GA 30318
- Home at address 28937 Georgia Aster Wy Nw, Atlanta, GA 30318

Home
$352,490
- 3 bd
- 2.5 ba
- 1,418 sqft
28937 Georgia Aster Wy Nw, Atlanta, GA 30318
Floor plans in Towns at Monroe
About the builder - D.R. Horton

- 1,140communities on Jome
- 11,324homes on Jome
Neighborhood
Home address
- Neighborhood:
- West Highlands
- City:
- Atlanta
Schools in Atlanta City School District
GreatSchools’ Summary Rating calculation is based on 4 of the school’s themed ratings, including test scores, student/academic progress, college readiness, and equity. This information should only be used as a reference. Jome is not affiliated with GreatSchools and does not endorse or guarantee this information. Please reach out to schools directly to verify all information and enrollment eligibility. Data provided by GreatSchools.org © 2025
Places of interest
Getting around
6 nearby routes: 6 bus, 0 rail, 0 otherAir quality
Noise level
A Soundscore™ rating is a number between 50 (very loud) and 100 (very quiet) that tells you how loud a location is due to environmental noise.

Considering this home?
Our expert will guide your tour, in-person or virtual
Need more information?
Text or call (888) 545-5198
Financials
Estimated monthly payment
Let us help you find your dream home
How many bedrooms are you looking for?
Similar homes nearby
Recently added communities in this area
Nearby communities in Atlanta
New homes in nearby cities
More New Homes in Atlanta, GA
D.R. Horton Realty of GA, Inc.-Atlanta Central Division, MLS 7716748
Some IDX listings have been excluded from this IDX display. Listings identified with the FMLS IDX logo come from FMLS and are held by brokerage firms other than the owner of this website. The listing brokerage is identified in any listing details. Information is deemed reliable but is not guaranteed. If you believe any FMLS listing contains material that infringes your copyrighted work please click here to review our DMCA policy and learn how to submit a takedown request. © 2025 First Multiple Listing Service, Inc.
Read moreLast checked May 30, 1:40 pm
- Jome
- New homes search
- Georgia
- Atlanta Metropolitan Area
- Fulton County
- Atlanta
- Towns at Monroe
- 2815 Georgia Aster Wy Nw, Atlanta, GA 30318



























