











- 4 bd
- 3 ba
- 1,865 sqft
149 Cochin Dr, Statham, GA 30666
- Single-Family
- $178.58/sqft
- $663/annual HOA
- 0.21-acre lot
New Homes for Sale Near 149 Cochin Dr, Statham, GA 30666
About this Home
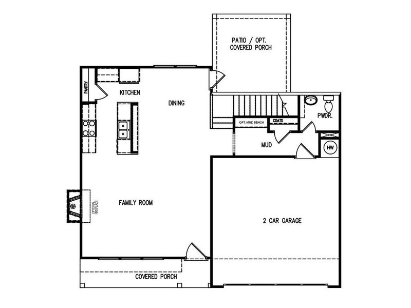
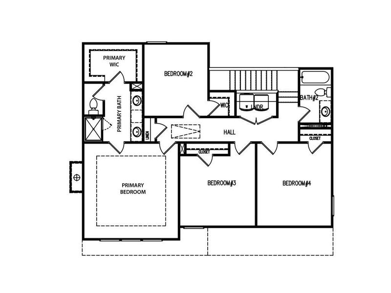
The Melrose II plan built by My Home Communities! Welcome to this stunning 4-bedroom, 2.5-bath two-story home just minutes from Athens with easy access to US-29! The open-concept main floor features a spacious kitchen with granite countertops, stainless steel appliances, 36" soft-close shaker cabinets, and an island overlooking the family room and breakfast area. LVP flooring flows seamlessly throughout the main level, leading to a covered rear porch. Upstairs, the primary suite offers a tray ceiling, trey ceiling, dual vanities, and large tile shower. Additional highlights upstairs include laundry room, three more bedrooms, and another full bath. Estimated completion May/June 2026. Contact us TODAY to learn about our Rates Starting as Low as 1.99%* with use of Seller's Preferred Lender! Secondary photos and Matterport tour are an example of the floor plan and not of the actual listing
RE/MAX Tru, MLS 7715166
May also be listed on the My Home Communities website
Information last verified by Jome: Today at 1:40 AM (May 17, 2026)
Home details
- Property status:
- Sold
- Lot size (acres):
- 0.21
- Size:
- 1,865 sqft
- Stories:
- 2
- Beds:
- 4
- Baths:
- 3
- Garage spaces:
- 2
- Fence:
- No Fence
Construction details
- Builder Name:
- My Home Communities
- Year Built:
- 2026
- Roof:
- Composition Roofing, Shingle Roofing
Home features & finishes
- Construction Materials:
- ConcreteStone
- Flooring:
- Vinyl FlooringCarpet Flooring
- Foundation Details:
- Slab
- Garage/Parking:
- Door OpenerGarageFront Entry Garage/ParkingAttached Garage
- Home amenities:
- Internet
- Interior Features:
- Ceiling-HighWalk-In ClosetFoyerTray CeilingBreakfast BarWalk-In PantryDouble Vanity
- Kitchen:
- DishwasherMicrowave OvenGas CooktopKitchen IslandGas OvenKitchen Range
- Laundry facilities:
- Laundry Facilities On Upper LevelUtility/Laundry Room
- Property amenities:
- BarBackyardLandscapingCabinetsPatioYardPorch
- Rooms:
- KitchenPowder RoomMudroomDining RoomFamily RoomBreakfast AreaOpen Concept FloorplanPrimary Bedroom Upstairs
- Security system:
- Smoke DetectorCarbon Monoxide Detector
Utility information
- Heating:
- Electric Heating, Heat Pump, Zoned Heating, Water Heater
- Sewer:
- Public Sewer
- Utilities:
- Electricity Available, Natural Gas Available, Underground Utilities, Phone Available, Cable Available, Water Available, High Speed Internet Access
- Water source:
- Public

Community details
Sutton's Landing
by My Home Communities, Winder, GA
- 4 homes
- 13 plans
- 1,827 - 3,014 sqft
View Sutton's Landing details
Community amenities
- Playground
- Gated Community
- Community Pool
- Sidewalks Available
- Pickleball Court
More homes in Sutton's Landing
- Home at address 18 Purackal Ln, Statham, GA 30666
Savings$379,050
Move-in ready- 4 bd
- 2 ba
- 1,827 sqft
18 Purackal Ln, Statham, GA 30666
- Home at address 225 Cochin Dr, Statham, GA 30666
Savings$406,050
Move-in ready- 4 bd
- 3 ba
- 2,460 sqft
225 Cochin Dr, Statham, GA 30666
- Home at address 71 Cochin Dr, Statham, GA 30666
Savings$425,250
Move-in ready- 4 bd
- 3.5 ba
- 2,880 sqft
71 Cochin Dr, Statham, GA 30666
- Home at address 213 Cochin Dr, Statham, GA 30666
Savings$427,050
Move-in ready- 4 bd
- 3.5 ba
- 3,014 sqft
213 Cochin Dr, Statham, GA 30666
Floor plans in Sutton's Landing
About the builder - My Home Communities
Neighborhood
Home address
Schools in Barrow County School District
- Grades PK-05Publicaustin road elementary school2.3 mi1009 austin roadna
GreatSchools’ Summary Rating calculation is based on 4 of the school’s themed ratings, including test scores, student/academic progress, college readiness, and equity. This information should only be used as a reference. Jome is not affiliated with GreatSchools and does not endorse or guarantee this information. Please reach out to schools directly to verify all information and enrollment eligibility. Data provided by GreatSchools.org © 2025
Places of interest
Getting around
Air quality
Financials
Nearby communities in Statham
Homes in Statham by My Home Communities
Recently added communities in this area
Other Builders in Statham, GA
Nearby sold homes
New homes in nearby cities
More New Homes in Statham, GA
RE/MAX Tru, MLS 7715166
Some IDX listings have been excluded from this IDX display. Listings identified with the FMLS IDX logo come from FMLS and are held by brokerage firms other than the owner of this website. The listing brokerage is identified in any listing details. Information is deemed reliable but is not guaranteed. If you believe any FMLS listing contains material that infringes your copyrighted work please click here to review our DMCA policy and learn how to submit a takedown request. © 2025 First Multiple Listing Service, Inc.
Read moreLast checked May 17, 1:40 am
- Jome
- New homes search
- Georgia
- Atlanta Metropolitan Area
- Barrow County
- Statham
- Sutton's Landing
- 149 Cochin Dr, Statham, GA 30666


























































