








Book your tour. Save an average of $18,473. We'll handle the rest.
We collect exclusive builder offers, book your tours, and support you from start to housewarming.
- Confirmed tours
- Get matched & compare top deals
- Expert help, no pressure
- No added fees
Estimated value based on Jome data, T&C apply



Why tour with Jome?
- No pressure toursTour at your own pace with no sales pressure
- Expert guidanceGet insights from our home buying experts
- Exclusive accessSee homes and deals not available elsewhere
Jome is featured in
- Single-Family
- Quick move-in
- $180.56/sqft
- $663/annual HOA
Home description
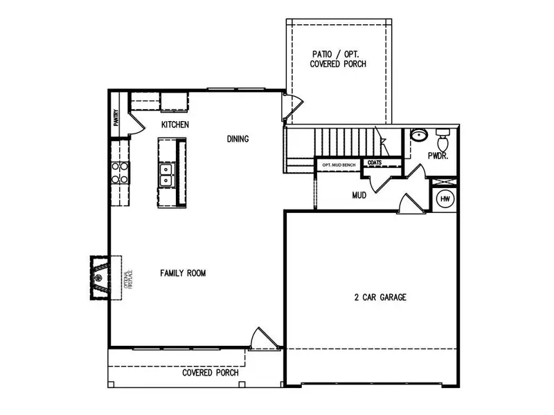
The Melrose II plan built by My Home Communities! Welcome to this stunning 4-bedroom, 2.5-bath two-story home just minutes from Athens with easy access to US-29! The open-concept main floor features a spacious kitchen with granite countertops, stainless steel appliances, 36" soft-close shaker cabinets, electric fireplace with shiplap wall, and an island overlooking the family room and breakfast area. LVP flooring flows seamlessly throughout the main level, leading to a covered rear porch. Upstairs, the primary suite offers a tray ceiling, dual vanities, and large tile shower. Additional highlights upstairs include laundry room, three more bedrooms, and another full bath. Estimated completion July/August 2026. Contact us TODAY to learn about our Rates Starting as Low as 1.99%* with use of Seller's Preferred Lender! Secondary photos and Matterport tour are an example of the floor plan and not of the actual listing
RE/MAX Tru, MLS 7750247
May also be listed on the My Home Communities website
Information last verified by Jome: Today at 1:41 PM (April 10, 2026)
Home highlights
Versatile arena in Duluth hosting concerts, sports, and events near Gwinnett’s shops and residential communities.
Book your tour. Save an average of $18,473. We'll handle the rest.
We collect exclusive builder offers, book your tours, and support you from start to housewarming.
- Confirmed tours
- Get matched & compare top deals
- Expert help, no pressure
- No added fees
Estimated value based on Jome data, T&C apply
Home details
- Property status:
- Move-in ready
- Lot size (acres):
- 0.31
- Size:
- 1,865 sqft
- Stories:
- 2
- Beds:
- 4
- Baths:
- 2
- Half baths:
- 1
- Garage spaces:
- 2
- Fence:
- No Fence
Construction details
- Builder Name:
- My Home Communities
- Year Built:
- 2026
- Roof:
- Composition Roofing, Shingle Roofing
Home features & finishes
- Construction Materials:
- ConcreteStone
- Flooring:
- Vinyl FlooringCarpet Flooring
- Foundation Details:
- Slab
- Garage/Parking:
- Door OpenerGarageFront Entry Garage/ParkingAttached Garage
- Home amenities:
- Internet
- Interior Features:
- Ceiling-HighWalk-In ClosetFoyerTray CeilingBreakfast BarWalk-In PantryDouble Vanity
- Kitchen:
- DishwasherMicrowave OvenGas CooktopKitchen IslandGas OvenKitchen Range
- Laundry facilities:
- Laundry Facilities On Upper LevelUtility/Laundry Room
- Property amenities:
- BarBackyardLandscapingCabinetsElectric FireplaceFireplaceYardPorch
- Rooms:
- KitchenFamily RoomLiving RoomBreakfast AreaOpen Concept Floorplan
- Security system:
- Smoke DetectorCarbon Monoxide Detector

Get a consultation with our New Homes Expert
- See how your home builds wealth
- Plan your home-buying roadmap
- Discover hidden gems
Utility information
- Heating:
- Electric Heating, Heat Pump, Zoned Heating, Water Heater
- Sewer:
- Public Sewer
- Utilities:
- Electricity Available, Natural Gas Available, Underground Utilities, Phone Available, Cable Available, Water Available, High Speed Internet Access
- Water source:
- Public

Community details
Sutton's Landing
by My Home Communities, Winder, GA
- 6 homes
- 13 plans
- 1,865 - 3,014 sqft
View Sutton's Landing details
Community amenities
- Playground
- Gated Community
- Community Pool
- Sidewalks Available
- Pickleball Court
More homes in Sutton's Landing
- Home at address 225 Cochin Dr, Statham, GA 30666

The Lakehurst
Savings$403,550
- 4 bd
- 3 ba
- 2,460 sqft
225 Cochin Dr, Statham, GA 30666
- Home at address 123 Purackal Ln, Statham, GA 30666

The Landon II
Savings$408,400
- 4 bd
- 3 ba
- 2,517 sqft
123 Purackal Ln, Statham, GA 30666
- Home at address 119 Purackal Ln, Statham, GA 30666

The Lakehurst
Savings$409,750
- 4 bd
- 3 ba
- 2,460 sqft
119 Purackal Ln, Statham, GA 30666
- Home at address 213 Cochin Dr, Statham, GA 30666

The Everglade
Savings$424,550
- 4 bd
- 3.5 ba
- 3,014 sqft
213 Cochin Dr, Statham, GA 30666
- Home at address 71 Cochin Dr, Statham, GA 30666

The Azalea
Savings$425,250
- 4 bd
- 3.5 ba
- 2,880 sqft
71 Cochin Dr, Statham, GA 30666
Floor plans in Sutton's Landing
About the builder - My Home Communities
Neighborhood
Home address
Schools in Barrow County School District
- Grades PK-05Publicaustin road elementary school2.4 mi1009 austin roadna
GreatSchools’ Summary Rating calculation is based on 4 of the school’s themed ratings, including test scores, student/academic progress, college readiness, and equity. This information should only be used as a reference. Jome is not affiliated with GreatSchools and does not endorse or guarantee this information. Please reach out to schools directly to verify all information and enrollment eligibility. Data provided by GreatSchools.org © 2025
Places of interest
Getting around
Air quality

Considering this home?
Our expert will guide your tour, in-person or virtual
Need more information?
Text or call (888) 545-5198
Financials
Estimated monthly payment
Let us help you find your dream home
How many bedrooms are you looking for?
Similar homes nearby
Recently added communities in this area
Nearby communities in Statham
New homes in nearby cities
More New Homes in Statham, GA
RE/MAX Tru, MLS 7750247
Some IDX listings have been excluded from this IDX display. Listings identified with the FMLS IDX logo come from FMLS and are held by brokerage firms other than the owner of this website. The listing brokerage is identified in any listing details. Information is deemed reliable but is not guaranteed. If you believe any FMLS listing contains material that infringes your copyrighted work please click here to review our DMCA policy and learn how to submit a takedown request. © 2025 First Multiple Listing Service, Inc.
Read moreLast checked Apr 10, 1:40 pm
- Jome
- New homes search
- Georgia
- Atlanta Metropolitan Area
- Barrow County
- Statham
- Sutton's Landing
- 41 Annie Ln, Statham, GA 30666
































