














Book your tour. Save an average of $18,473. We'll handle the rest.
- Confirmed tours
- Get matched & compare top deals
- Expert help, no pressure
- No added fees
Estimated value based on Jome data, T&C apply














- 3 bd
- 2.5 ba
- 2,885 sqft
187 Summit View Ln, Ellijay, GA 30540
Why tour with Jome?
- No pressure toursTour at your own pace with no sales pressure
- Expert guidanceGet insights from our home buying experts
- Exclusive accessSee homes and deals not available elsewhere
Jome is featured in
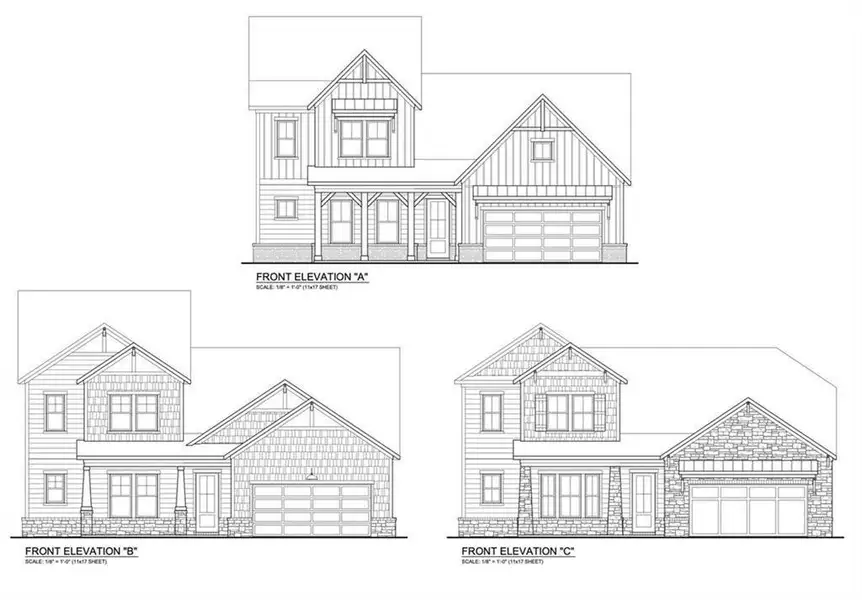
- Single-Family
- Under construction
- $227.08/sqft
- $1,200/annual HOA
Home description
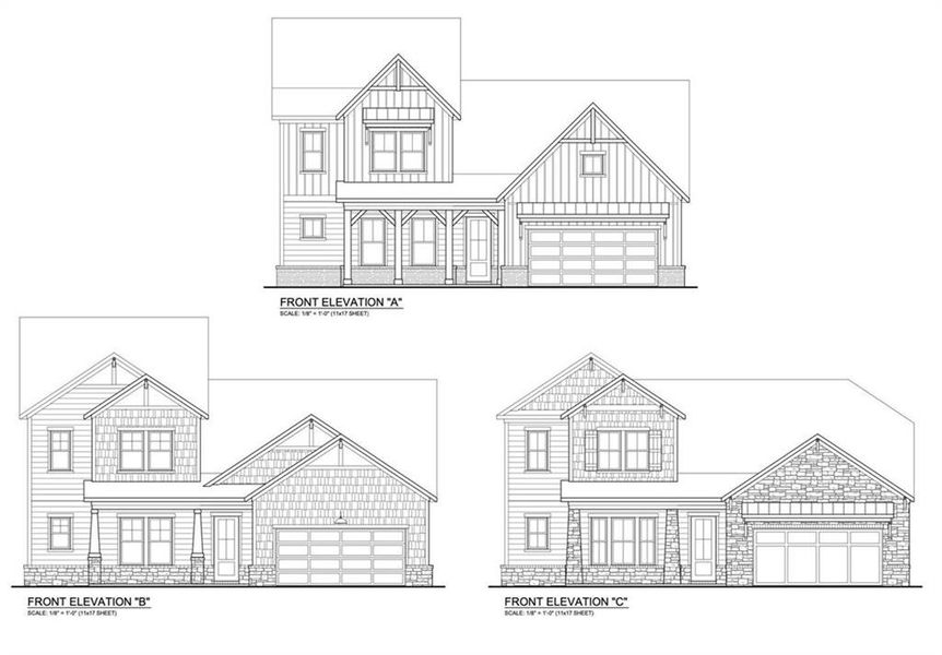
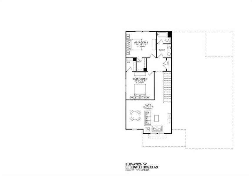
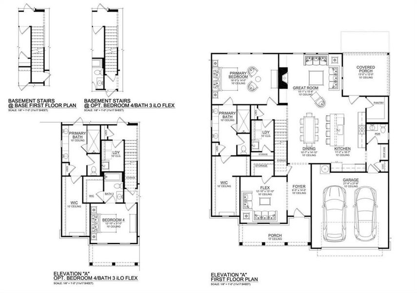
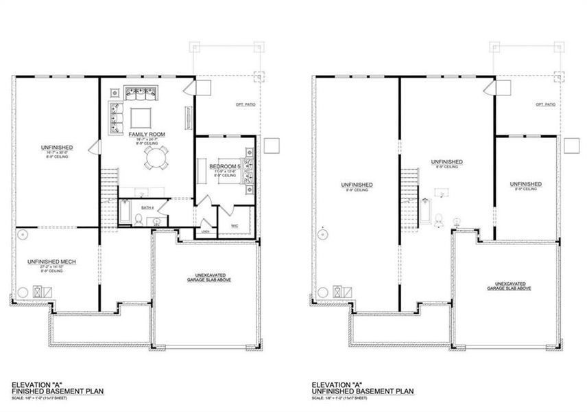
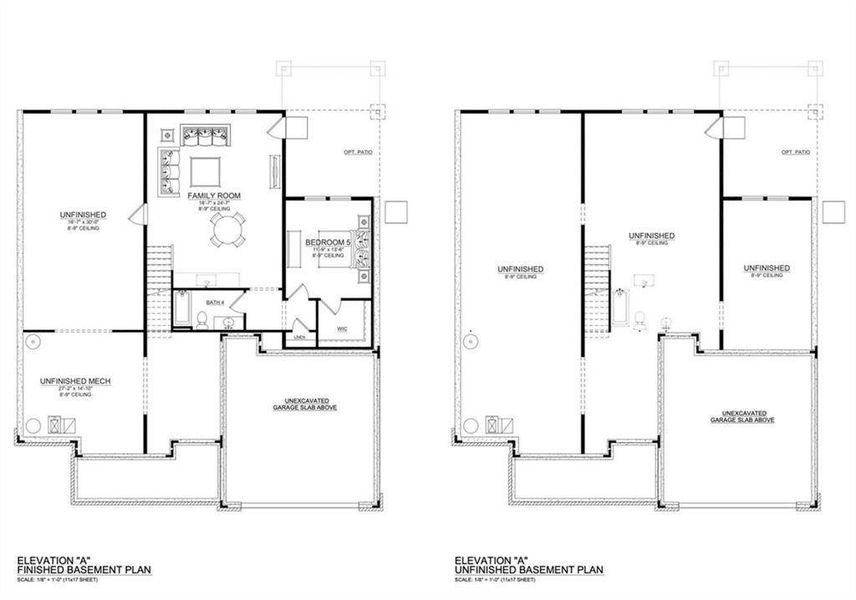
New Construction on Unfinished Basement Move in Ready March- $5k INCENTIVE if contract written by Feb 14th. Discover serene and charming living at The Summit at Ellijay, nestled just outside the vibrant energy of historic downtown. Embrace the perfect blend of luxury and mountain tranquility in our craftsman-style homes, each designed with captivating curb appeal and modern finishes. Enjoy breathtaking year-round mountain views from stunning lots. The heart of the home, our kitchens feature stainless steel appliances and ample space for meal preparation and social gatherings an ideal place to connect with loved ones. Retreat to the spacious owners' suite, meticulously crafted for comfort and relaxation, offering a peaceful sanctuary at day's end. With three additional large bedrooms, each boasting walk-in closets, there's plenty of space for family and guests. Step onto the deck to savor serene views a perfect spot for morning coffee or evening entertaining. Choose from slab or basement options to suit your lifestyle needs. Located just one mile from the annual Georgia Apple Festival and a scenic drive away from orchards, wineries, hiking trails, river tubing, ziplining, and Carters Lake. Conveniently situated within 90 miles of Atlanta Hartsfield-Jackson International Airport. Address not showing on maps use Summit View Drive address to locate home.
Harry Norman Realtors, MLS 7708803
Information last verified by Jome: Today at 2:35 AM (January 30, 2026)
Book your tour. Save an average of $18,473. We'll handle the rest.
We collect exclusive builder offers, book your tours, and support you from start to housewarming.
- Confirmed tours
- Get matched & compare top deals
- Expert help, no pressure
- No added fees
Estimated value based on Jome data, T&C apply
Home details
- Property status:
- Under construction
- Lot size (acres):
- 0.20
- Size:
- 2,885 sqft
- Stories:
- 2
- Beds:
- 3
- Baths:
- 2
- Half baths:
- 1
- Garage spaces:
- 2
- Fence:
- No Fence
Construction details
- Year Built:
- 2026
- Roof:
- Shingle Roofing
Home features & finishes
- Construction Materials:
- Concrete
- Cooling:
- Central Air
- Flooring:
- Ceramic FlooringLaminate FlooringCarpet FlooringTile Flooring
- Foundation Details:
- Block
- Garage/Parking:
- Door OpenerGarageFront Entry Garage/ParkingAttached Garage
- Home amenities:
- Green Construction
- Interior Features:
- Ceiling-HighWalk-In ClosetFoyerBreakfast BarWalk-In PantryLoftDouble Vanity
- Kitchen:
- DishwasherMicrowave OvenOvenDisposalKitchen IslandGas Oven
- Laundry facilities:
- Laundry Facilities In Hall
- Property amenities:
- BarDeckGas Log FireplaceCabinetsFireplace
- Rooms:
- Primary Bedroom On MainKitchenOffice/StudyFamily RoomOpen Concept FloorplanPrimary Bedroom Downstairs
- Security system:
- Smoke DetectorCarbon Monoxide Detector

Get a consultation with our New Homes Expert
- See how your home builds wealth
- Plan your home-buying roadmap
- Discover hidden gems
Utility information
- Heating:
- Zoned Heating, Central Heating, Gas Heating
- Utilities:
- Electricity Available, Phone Available, HVAC, Water Available
Community amenities
- Woods View
- Mountain(s) View
Neighborhood
Home address
Schools in Gilmer County School District
GreatSchools’ Summary Rating calculation is based on 4 of the school’s themed ratings, including test scores, student/academic progress, college readiness, and equity. This information should only be used as a reference. Jome is not affiliated with GreatSchools and does not endorse or guarantee this information. Please reach out to schools directly to verify all information and enrollment eligibility. Data provided by GreatSchools.org © 2025
Getting around
Natural hazards risk
Provided by FEMA

Considering this home?
Our expert will guide your tour, in-person or virtual
Need more information?
Text or call (888) 486-2818
Financials
Estimated monthly payment
Let us help you find your dream home
How many bedrooms are you looking for?
Similar homes nearby
Recently added communities in this area
Nearby communities in Ellijay
New homes in nearby cities
More New Homes in Ellijay, GA
Harry Norman Realtors, MLS 7708803
Some IDX listings have been excluded from this IDX display. Listings identified with the FMLS IDX logo come from FMLS and are held by brokerage firms other than the owner of this website. The listing brokerage is identified in any listing details. Information is deemed reliable but is not guaranteed. If you believe any FMLS listing contains material that infringes your copyrighted work please click here to review our DMCA policy and learn how to submit a takedown request. © 2025 First Multiple Listing Service, Inc.
Read moreLast checked Jan 30, 7:40 pm
- Jome
- New homes search
- Georgia
- Gilmer County
- Ellijay
- 187 Summit View Ln, Ellijay, GA 30540


























