



Book your tour. Save an average of $18,473. We'll handle the rest.
We collect exclusive builder offers, book your tours, and support you from start to housewarming.
- Confirmed tours
- Get matched & compare top deals
- Expert help, no pressure
- No added fees
Estimated value based on Jome data, T&C apply
- 2 bd
- 2 ba
- 1,023 sqft
105 Winston Wy, Carrollton, GA 30117
Why tour with Jome?
- No pressure toursTour at your own pace with no sales pressure
- Expert guidanceGet insights from our home buying experts
- Exclusive accessSee homes and deals not available elsewhere
Jome is featured in
- Single-Family
- Under construction
- $278.59/sqft
- 0.19-acre lot
Home description
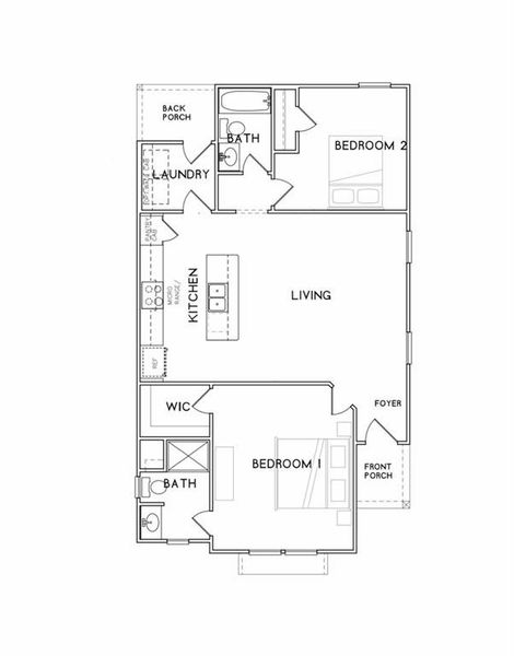
Welcome to The Goose Cottage — a brand-new 2 bedroom, 2 bath home in Carrollton!
This efficient, open-concept layout places the living room and kitchen at the center of the home for a clean, seamless flow. The kitchen offers great prep space and modern finishes, while the living area is perfect for relaxing or entertaining guests.
The primary bedroom and secondary bedroom are located on opposite sides of the home for added privacy. Step out onto the covered rear porch overlooking the Carrollton GreenBelt, a beloved 18-mile paved trail system perfect for walking, biking, jogging, and connecting with nature. Enjoy peaceful views and convenient access to one of Carrollton’s most cherished amenities right from your backyard.
Located within the Carrollton city limits, this home offers city sewer, street lights, walkability, and access to award-winning Carrollton City Schools. A two-bedroom home in this location opens the door to so many possibilities: a low-maintenance downsizing opportunity, a comfortable starter home, a flexible roommate layout, or a perfect fit for an active individual or small family who wants convenience and lifestyle without sacrificing charm.
Don’t miss your chance to own The Goose Cottage- where simplicity, efficiency, and comfort come together beautifully in Carrollton. Contact us today for builder/lender incentives.
Local Realty, MLS 7690390
Information last verified by Jome: Today at 2:30 AM (February 12, 2026)
Home highlights
Book your tour. Save an average of $18,473. We'll handle the rest.
We collect exclusive builder offers, book your tours, and support you from start to housewarming.
- Confirmed tours
- Get matched & compare top deals
- Expert help, no pressure
- No added fees
Estimated value based on Jome data, T&C apply
Home details
- Property status:
- Under construction
- Lot size (acres):
- 0.19
- Size:
- 1,023 sqft
- Stories:
- 1
- Beds:
- 2
- Baths:
- 2
- Fence:
- No Fence
Construction details
- Year Built:
- 2025
- Roof:
- Roof Gutter, Shingle Roofing
Home features & finishes
- Construction Materials:
- Cement
- Cooling:
- Central Air
- Flooring:
- Vinyl FlooringCarpet Flooring
- Foundation Details:
- Slab
- Interior Features:
- Walk-In ClosetFoyerBreakfast Bar
- Kitchen:
- DishwasherMicrowave OvenGas CooktopGas OvenKitchen Range
- Laundry facilities:
- Laundry Facilities On Main Level
- Property amenities:
- BarBackyardLandscapingCabinetsPatioYardPorch
- Rooms:
- Primary Bedroom On MainLiving RoomOpen Concept FloorplanPrimary Bedroom Downstairs
- Security system:
- Smoke DetectorCarbon Monoxide Detector

Get a consultation with our New Homes Expert
- See how your home builds wealth
- Plan your home-buying roadmap
- Discover hidden gems
Utility information
- Heating:
- Electric Heating, Heat Pump, Water Heater, Tankless water heater
- Utilities:
- Electricity Available, Natural Gas Available, Underground Utilities, Sewer Available, Water Available
Community amenities
- Sidewalks Available
- Greenbelt View
- Walking, Jogging, Hike Or Bike Trails
- Shopping Nearby
Neighborhood
Home address
- City:
- Carrollton
- County:
- Carroll
- Zip Code:
- 30117
Schools in Carroll County School District
GreatSchools’ Summary Rating calculation is based on 4 of the school’s themed ratings, including test scores, student/academic progress, college readiness, and equity. This information should only be used as a reference. Jome is not affiliated with GreatSchools and does not endorse or guarantee this information. Please reach out to schools directly to verify all information and enrollment eligibility. Data provided by GreatSchools.org © 2025
Getting around
Air quality
Natural hazards risk
Provided by FEMA

Considering this home?
Our expert will guide your tour, in-person or virtual
Need more information?
Text or call (888) 486-2818
Financials
Estimated monthly payment
Let us help you find your dream home
How many bedrooms are you looking for?
Similar homes nearby
Recently added communities in this area
Nearby communities in Carrollton
New homes in nearby cities
More New Homes in Carrollton, GA
Local Realty, MLS 7690390
Some IDX listings have been excluded from this IDX display. Listings identified with the FMLS IDX logo come from FMLS and are held by brokerage firms other than the owner of this website. The listing brokerage is identified in any listing details. Information is deemed reliable but is not guaranteed. If you believe any FMLS listing contains material that infringes your copyrighted work please click here to review our DMCA policy and learn how to submit a takedown request. © 2025 First Multiple Listing Service, Inc.
Read moreLast checked Feb 12, 7:40 am
- Jome
- New homes search
- Georgia
- Atlanta Metropolitan Area
- Carroll County
- Carrollton
- 105 Winston Wy, Carrollton, GA 30117


















