


































- 4 bd
- 2.5 ba
- 2,340 sqft
6081 Airedale Dr, Fairburn, GA 30213
- Single-Family
- $170.94/sqft
- $820/annual HOA
- 0.25-acre lot
New Homes for Sale Near 6081 Airedale Dr, Fairburn, GA 30213
About this Home
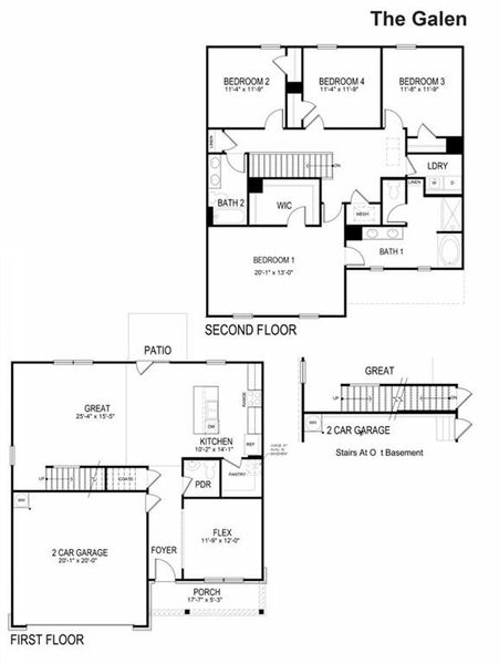
Welcome to 6081 Airedale Drive in the new South Wind community in Union City, GA. Featuring the Galen, is a two-story floorplan with 4 bedrooms, 2.5 bathrooms, and a 2-car in its 2,340 square feet, you'll find the space you need to thrive. As you step through the front door, a foyer welcomes you passed a flex space - perfect for a formal dining room or a home office - and powder room into the open living space. The spacious great room is anchored by a corner fireplace and opens seamlessly into the kitchen. A large island is home to the sink and dishwasher and allows for countertop seating for casual eating. Stainless-steel appliances and shaker-style cabinets make this kitchen visually appealing, and the large corner pantry provides ample storage. The second level is home to all four of the bedrooms, two bathrooms, and the laundry room. The primary suite offers a spacious bedroom, huge walk-in closet, and a well-appointed bathroom with double vanity and separate soaking tub and shower. Three additional bedrooms share a bathroom with two sinks and a tub-shower. If the Galen at 6081 Airedale Drive has everything you're looking for in a home and more, give us a call today! We would love to schedule an on-site appointment at South Wind in Union City, GA. Photos are representative in nature and do not depict actual home listed. Features may differ.
D.R. Horton Realty of Georgia Inc, MLS 7689330
May also be listed on the D.R. Horton website
Information last verified by Jome: Today at 2:04 AM (April 22, 2026)
Home details
- Property status:
- Sold
- Lot size (acres):
- 0.25
- Size:
- 2,340 sqft
- Stories:
- 2
- Beds:
- 4
- Baths:
- 2
- Half baths:
- 1
- Garage spaces:
- 2
- Fence:
- No Fence
Construction details
- Builder Name:
- D.R. Horton
- Year Built:
- 2025
- Roof:
- Roof Gutter, Composition Roofing, Shingle Roofing
Home features & finishes
- Construction Materials:
- Cement
- Cooling:
- Central Air
- Flooring:
- Ceramic FlooringVinyl FlooringCarpet FlooringTile Flooring
- Foundation Details:
- Slab
- Garage/Parking:
- GarageFront Entry Garage/Parking
- Home amenities:
- Home Accessibility Features
- Interior Features:
- Ceiling-HighWalk-In ClosetCrown MoldingTray CeilingWalk-In PantrySeparate ShowerDouble Vanity
- Kitchen:
- DishwasherMicrowave OvenDisposalGas CooktopKitchen IslandGas OvenKitchen RangeElectric Oven
- Laundry facilities:
- Laundry Facilities In HallLaundry Facilities On Upper Level
- Property amenities:
- LandscapingCabinetsPatioYardSmart Home SystemPorch
- Rooms:
- AtticKitchenDining RoomFamily RoomOpen Concept FloorplanSeparate Living and Dining
- Security system:
- Fire Alarm SystemSmoke DetectorCarbon Monoxide Detector
Utility information
- Heating:
- Zoned Heating, Water Heater, Central Heating, Gas Heating, Forced Air Heating
- Sewer:
- Public Sewer
- Utilities:
- Electricity Available, Natural Gas Available, Underground Utilities, Phone Available, Cable Available, Sewer Available, Water Available
- Water source:
- Public

Community details
South Wind
by D.R. Horton, South Fulton, GA
- 7 homes
- 5 plans
- 1,774 - 3,209 sqft
View South Wind details
Community amenities
- Woods View
- Playground
- Club House
- Golf Course
- Tennis Courts
- Community Pool
- Sidewalks Available
- Walking, Jogging, Hike Or Bike Trails
More homes in South Wind
- Home at address 6016 Muirfield Pt, Union City, GA 30213

$379,990
Move-in ready- 4 bd
- 2 ba
- 1,774 sqft
6016 Muirfield Pt, Union City, GA 30213
- Home at address 6012 Muirfield Pt, Fairburn, GA 30213
Savings$384,990
Under construction- 4 bd
- 2 ba
- 1,774 sqft
6012 Muirfield Pt, Fairburn, GA 30213
- Home at address 6008 Muirfield Pt, Union City, GA 30213

$409,990
Move-in ready- 5 bd
- 3 ba
- 2,511 sqft
6008 Muirfield Pt, Union City, GA 30213
- Home at address 6008 Muirfield Pt, Union City, GA 30291
Savings$409,990
Move-in ready- 5 bd
- 3 ba
- 2,511 sqft
6008 Muirfield Pt, Union City, GA 30291
- Home at address 6017 Airedale Dr, Union City, GA 30213
Savings$419,990
Move-in ready- 5 bd
- 3.5 ba
- 2,711 sqft
6017 Airedale Dr, Union City, GA 30213
- Home at address 6021 Airedale Dr, Union City, GA 30291

$427,990
Move-in ready- 5 bd
- 3 ba
- 3,209 sqft
6021 Airedale Dr, Union City, GA 30291
Floor plans in South Wind
About the builder - D.R. Horton

- 1,153communities on Jome
- 10,805homes on Jome
Neighborhood
Home address
Schools in Fulton County School District
GreatSchools’ Summary Rating calculation is based on 4 of the school’s themed ratings, including test scores, student/academic progress, college readiness, and equity. This information should only be used as a reference. Jome is not affiliated with GreatSchools and does not endorse or guarantee this information. Please reach out to schools directly to verify all information and enrollment eligibility. Data provided by GreatSchools.org © 2025
Places of interest
Getting around
Air quality
Noise level
A Soundscore™ rating is a number between 50 (very loud) and 100 (very quiet) that tells you how loud a location is due to environmental noise.
Financials
Nearby communities in Fairburn
Homes in Fairburn by D.R. Horton
Recently added communities in this area
Other Builders in Fairburn, GA
Nearby sold homes
New homes in nearby cities
More New Homes in Fairburn, GA
D.R. Horton Realty of Georgia Inc, MLS 7689330
Some IDX listings have been excluded from this IDX display. Listings identified with the FMLS IDX logo come from FMLS and are held by brokerage firms other than the owner of this website. The listing brokerage is identified in any listing details. Information is deemed reliable but is not guaranteed. If you believe any FMLS listing contains material that infringes your copyrighted work please click here to review our DMCA policy and learn how to submit a takedown request. © 2025 First Multiple Listing Service, Inc.
Read moreLast checked Apr 22, 1:40 am
- Jome
- New homes search
- Georgia
- Atlanta Metropolitan Area
- Fulton County
- Fairburn
- South Wind
- 6081 Airedale Dr, Fairburn, GA 30213

































































