





































- 4 bd
- 2.5 ba
- 2,203 sqft
100 Juniper Dr, Guyton, GA 31312
- Single-Family
- $184.29/sqft
- 154 days on Jome
New Homes for Sale Near 100 Juniper Dr, Guyton, GA 31312
About this Home
About this home
New Hardie Plank siding home in the amenity-rich community of Laurel Grove, located in Guyton, GA, within an award-winning school district! This community offers planned amenities including a swimming pool and large open-air pavilion, plus sidewalk-lined streets that make it easy to walk to nearby top-rated schools and enjoy the neighborhood’s peaceful setting.
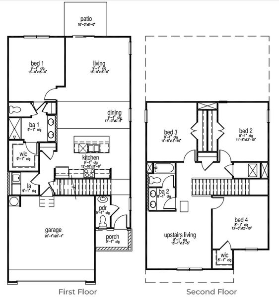
The Manning plan features a spacious, open floorplan with a chef’s kitchen, large central quartz island, and stainless steel appliances. The kitchen opens to the dining area and a generous family room with sliding door access to the back patio — perfect for indoor-outdoor living and entertaining.
The primary suite is conveniently located on the main level and boasts a double vanity bath, large walk-in shower, and a huge walk-in closet. A convenient laundry room is located just off the two-car garage for everyday ease.
Laurel Grove’s ideal location provides easy access to the airport, Pooler, Rincon, Savannah, and the new Hyundai plant.
Home is under construction, and features, sizes, and colors may vary. Photos are not of the subject home.
May also be listed on the D.R. Horton website
Information last verified by Jome: Thursday at 5:23 AM (April 9, 2026)
Home details
- Property status:
- Sold
- Size:
- 2,203 sqft
- Stories:
- 2
- Beds:
- 4
- Baths:
- 2.5
- Garage spaces:
- 2
Construction details
- Builder Name:
- D.R. Horton
Home features & finishes
- Garage/Parking:
- GarageAttached Garage
- Interior Features:
- Walk-In Closet
- Laundry facilities:
- Utility/Laundry Room
- Property amenities:
- PatioPorch
- Rooms:
- KitchenPowder RoomDining RoomLiving RoomPrimary Bedroom Downstairs

Community details
Laurel Grove
by D.R. Horton, Guyton, GA
- 11 homes
- 13 plans
- 1,618 - 3,503 sqft
View Laurel Grove details
More homes in Laurel Grove
- Home at address 116 Juniper Dr, Guyton, GA 31312

$379,990
Move-in ready- 4 bd
- 2 ba
- 1,774 sqft
116 Juniper Dr, Guyton, GA 31312
- Home at address 110 Juniper Dr, Guyton, GA 31312

$388,640
Move-in ready- 4 bd
- 2 ba
- 1,774 sqft
110 Juniper Dr, Guyton, GA 31312
- Home at address 114 Juniper Dr, Guyton, GA 31312

$388,640
Move-in ready- 4 bd
- 2 ba
- 1,774 sqft
114 Juniper Dr, Guyton, GA 31312
- Home at address 115 Juniper Dr, Guyton, GA 31312

$389,015
Move-in ready- 4 bd
- 2 ba
- 1,774 sqft
115 Juniper Dr, Guyton, GA 31312
- Home at address 101 Sumter St, Guyton, GA 31312

$407,765
Move-in ready- 4 bd
- 2.5 ba
- 2,203 sqft
101 Sumter St, Guyton, GA 31312
- Home at address 119 Grove Dr, Guyton, GA 31312

$410,165
Move-in ready- 4 bd
- 2.5 ba
- 2,203 sqft
119 Grove Dr, Guyton, GA 31312
Floor plans in Laurel Grove
About the builder - D.R. Horton

- 1,152communities on Jome
- 10,637homes on Jome
Neighborhood
Home address
Schools in Effingham County School District
GreatSchools’ Summary Rating calculation is based on 4 of the school’s themed ratings, including test scores, student/academic progress, college readiness, and equity. This information should only be used as a reference. Jome is not affiliated with GreatSchools and does not endorse or guarantee this information. Please reach out to schools directly to verify all information and enrollment eligibility. Data provided by GreatSchools.org © 2025
Places of interest
Getting around
Financials
Nearby communities in Guyton
Homes in Guyton by D.R. Horton
Recently added communities in this area
Other Builders in Guyton, GA
Nearby sold homes
New homes in nearby cities
More New Homes in Guyton, GA
- Jome
- New homes search
- Georgia
- Effingham County
- Guyton
- Laurel Grove
- 100 Juniper Dr, Guyton, GA 31312

































































