














Book your tour. Save an average of $18,473. We'll handle the rest.
We collect exclusive builder offers, book your tours, and support you from start to housewarming.
- Confirmed tours
- Get matched & compare top deals
- Expert help, no pressure
- No added fees
Estimated value based on Jome data, T&C apply


































- 3 bd
- 4.5 ba
- 3,360 sqft
1323 N Highland Ave Ne, Atlanta, GA 30306
Why tour with Jome?
- No pressure toursTour at your own pace with no sales pressure
- Expert guidanceGet insights from our home buying experts
- Exclusive accessSee homes and deals not available elsewhere
Jome is featured in
- Single-Family
- Quick move-in
- $712.8/sqft
- West facing
Home description
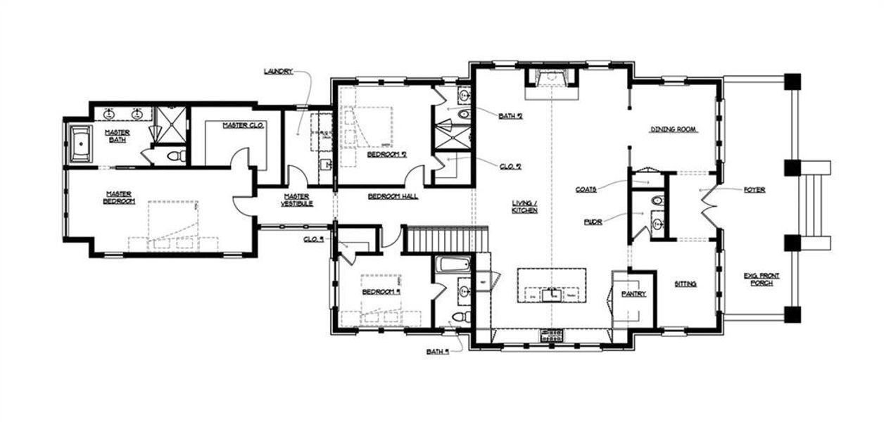
Looking for a fully renovated luxury home in Morningside with timeless design and walkable Intown living? Welcome to 1323 N Highland Avenue, a down-to-the-studs renovation by Ladisic Fine Homes, offering the perfect blend of classic bungalow charm and modern sophistication in one of Atlanta's most desirable neighborhoods. This 3-bedroom, 4.5-bath home features custom mill work, designer lighting, and premium finishes throughout. The open main living area showcases cathedral ceilings, a separate dining room with wood paneled walls, a chef's kitchen with a Thermador appliance package, large island, and elegant details designed for both everyday living and entertaining.
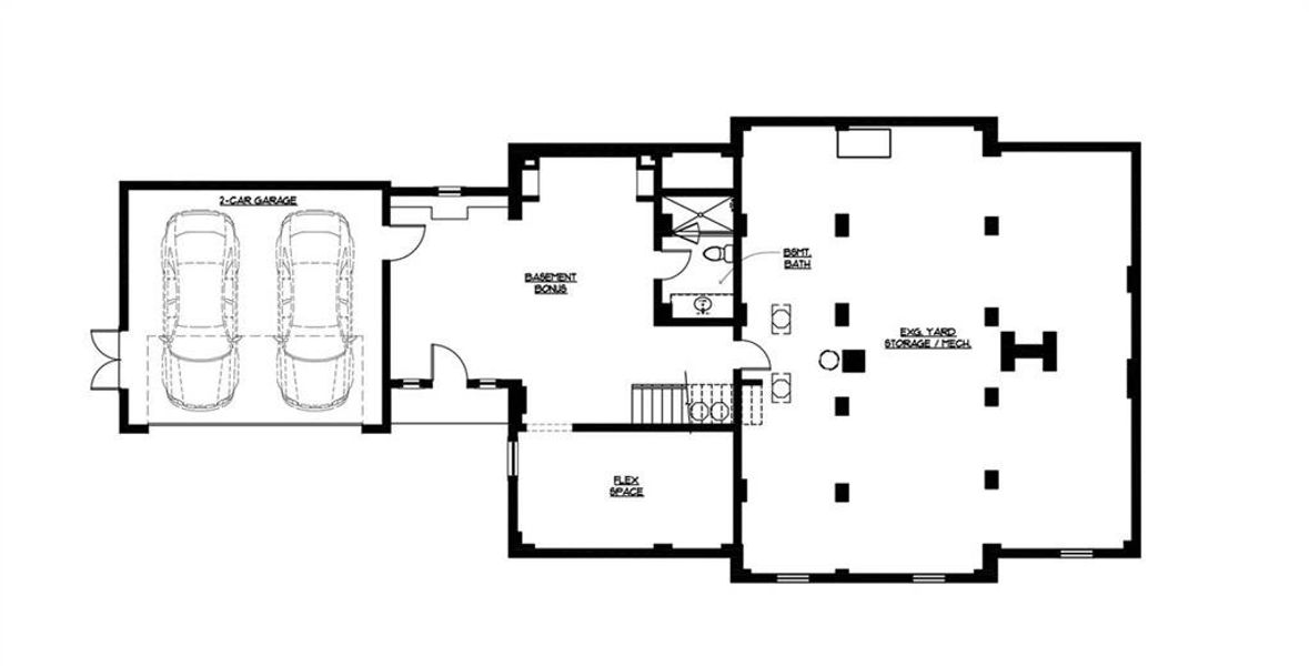
Also located on the main level is the primary suite with a spa-inspired bathroom, double vanity, soaking tub, and custom walk-in closet, two secondary bedrooms each with its own en-suite bath, ideal for family or guests, and the spacious laundry room. The lower level, finished to the same high standard as the main, offers a media/family room, a bonus room perfect for a home office, gym, or bunk room, plus a mudroom, full bath, and a two-car garage. A major highlight is the cedar shake-style roof by Brava Roof Tiles. Known for its durability, aesthetic appeal, and 50-year warranty, Brava Roof Tiles offer a rare combination of beauty and long-term peace of mind. Outdoor spaces include a fenced backyard, beautifully landscaped green spaces, and a welcoming front porch that enhances the home's curb appeal. Located just moments from Piedmont Park, Morningside Elementary, and the shops and restaurants of Morningside and Virginia-Highland, this property offers the best of Atlanta Intown living, elegance, and convenience. Perfect for anyone seeking luxury design plus everyday comfort.
Atlanta Fine Homes Sotheby's International, MLS 7672192
Information last verified by Jome: Today at 2:16 AM (March 5, 2026)
Home highlights
Book your tour. Save an average of $18,473. We'll handle the rest.
We collect exclusive builder offers, book your tours, and support you from start to housewarming.
- Confirmed tours
- Get matched & compare top deals
- Expert help, no pressure
- No added fees
Estimated value based on Jome data, T&C apply
Home details
- Property status:
- Move-in ready
- Lot size (acres):
- 0.17
- Size:
- 3,360 sqft
- Stories:
- 2
- Beds:
- 3
- Baths:
- 4
- Half baths:
- 1
- Garage spaces:
- 2
- Facing direction:
- West
Construction details
- Year Built:
- 2024
- Roof:
- Shingle Roofing
Home features & finishes
- Construction Materials:
- Brick
- Cooling:
- Central Air
- Flooring:
- Hardwood Flooring
- Garage/Parking:
- GarageSide Entry Garage/ParkingAttached Garage
- Home amenities:
- Internet
- Interior Features:
- Ceiling-HighWalk-In ClosetFoyerPantryWalk-In PantrySeparate ShowerDouble Vanity
- Kitchen:
- DishwasherRefrigeratorDisposalGas CooktopKitchen IslandGas OvenKitchen Range
- Laundry facilities:
- Laundry Facilities On Main LevelUtility/Laundry Room
- Property amenities:
- BasementBackyardCabinetsFireplaceYardPorch
- Rooms:
- Bonus RoomExercise RoomPrimary Bedroom On MainKitchenDen RoomMedia RoomOffice/StudyDining RoomFamily RoomSeparate Living and DiningPrimary Bedroom Downstairs

Get a consultation with our New Homes Expert
- See how your home builds wealth
- Plan your home-buying roadmap
- Discover hidden gems
Utility information
- Heating:
- Central Heating
- Utilities:
- Electricity Available, Natural Gas Available, Cable Available, Sewer Available, Water Available, High Speed Internet Access
Community amenities
- Sidewalks Available
- Walking, Jogging, Hike Or Bike Trails
- Shopping Nearby
Neighborhood
Home address
Schools in Atlanta City School District
- Grades 01-12Privatelaurel heights academy (hospital)0.9 mi934 briarcliff rd nena
- Grades PK-KGPrivateatlanta international school - druid hills campus1.3 mi1215 s ponce de leon ave nena
GreatSchools’ Summary Rating calculation is based on 4 of the school’s themed ratings, including test scores, student/academic progress, college readiness, and equity. This information should only be used as a reference. Jome is not affiliated with GreatSchools and does not endorse or guarantee this information. Please reach out to schools directly to verify all information and enrollment eligibility. Data provided by GreatSchools.org © 2025
Places of interest
Getting around
5 nearby routes: 5 bus, 0 rail, 0 otherAir quality
Noise level
A Soundscore™ rating is a number between 50 (very loud) and 100 (very quiet) that tells you how loud a location is due to environmental noise.
Natural hazards risk
Provided by FEMA

Considering this home?
Our expert will guide your tour, in-person or virtual
Need more information?
Text or call (888) 488-9243
Financials
Estimated monthly payment
Let us help you find your dream home
How many bedrooms are you looking for?
Similar homes nearby
Recently added communities in this area
Nearby communities in Atlanta
New homes in nearby cities
More New Homes in Atlanta, GA
Atlanta Fine Homes Sotheby's International, MLS 7672192
Some IDX listings have been excluded from this IDX display. Listings identified with the FMLS IDX logo come from FMLS and are held by brokerage firms other than the owner of this website. The listing brokerage is identified in any listing details. Information is deemed reliable but is not guaranteed. If you believe any FMLS listing contains material that infringes your copyrighted work please click here to review our DMCA policy and learn how to submit a takedown request. © 2025 First Multiple Listing Service, Inc.
Read moreLast checked Mar 5, 7:40 pm
- Jome
- New homes search
- Georgia
- Atlanta Metropolitan Area
- Fulton County
- Atlanta
- 1323 N Highland Ave Ne, Atlanta, GA 30306



























