














Book your tour. Save an average of $18,473. We'll handle the rest.
- Confirmed tours
- Get matched & compare top deals
- Expert help, no pressure
- No added fees
Estimated value based on Jome data, T&C apply
























- 3 bd
- 2.5 ba
- 1,805 sqft
19 Fausett Ln, Dawsonville, GA 30534
Why tour with Jome?
- No pressure toursTour at your own pace with no sales pressure
- Expert guidanceGet insights from our home buying experts
- Exclusive accessSee homes and deals not available elsewhere
Jome is featured in
- Townhouse
- Quick move-in
- $193.85/sqft
- $150/monthly HOA
Home description
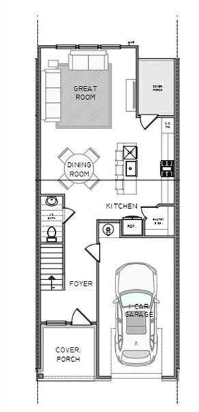
Seller is offering $10,000 in incentives! New Construction townhome in Downtown Dawsonville! End Unit, lot 1. Move-in ready. One car garage with extra parking in the driveway. First floor is open concept with family room, powder room, dining area and a beautiful kitchen (Stainless steel appliances, pendant lights over the island, white cabinetry and quartz countertops). Luxury vinyl flooring throughout the first floor. Second floor has 3 bedrooms. Huge master suite with walk-in closet is connected to the laundry room for convenience. The secondary bath has a split layout to allow multiple family members to get ready at the same time. This quiet community will have a total of 24 townhomes on a cul-de-sac road with streetlights, sidewalks and lawn care provided. Walk to downtown Dawsonville festivals and amenities including a schools, Lanier Tech, park, restaurants, grocery, and coffee shop! 10 minute drive to I-400, North Georgia Premium Outlets, Rock Creek Park and Atlanta Motorsports Park. Interior photos in listing are of similar townhome in the neighborhood.
Berkshire Hathaway HomeServices Georgia Properties, MLS 7675033
May also be listed on the David Patterson Homes website
Information last verified by Jome: Today at 2:30 AM (December 19, 2025)
Home highlights
Popular North Georgia lake offering boating, fishing, and lakeside living near metro Atlanta and mountain getaways.
Book your tour. Save an average of $18,473. We'll handle the rest.
We collect exclusive builder offers, book your tours, and support you from start to housewarming.
- Confirmed tours
- Get matched & compare top deals
- Expert help, no pressure
- No added fees
Estimated value based on Jome data, T&C apply
Home details
- Property status:
- Move-in ready
- Size:
- 1,805 sqft
- Stories:
- 2
- Beds:
- 3
- Baths:
- 2
- Half baths:
- 1
- Garage spaces:
- 1
- Fence:
- No Fence
Construction details
- Builder Name:
- David Patterson Homes
- Year Built:
- 2025
- Roof:
- Shingle Roofing
Home features & finishes
- Construction Materials:
- Cement
- Cooling:
- Ceiling Fan(s)Central Air
- Flooring:
- Ceramic FlooringVinyl FlooringCarpet FlooringTile Flooring
- Foundation Details:
- Slab
- Garage/Parking:
- Door OpenerGarageFront Entry Garage/Parking
- Interior Features:
- Ceiling-HighWalk-In ClosetFoyerPantryDouble Vanity
- Kitchen:
- Microwave OvenDisposalKitchen IslandKitchen Range
- Laundry facilities:
- Laundry Facilities On Upper Level
- Property amenities:
- BackyardLandscapingCabinets
- Rooms:
- KitchenFamily RoomOpen Concept Floorplan
- Security system:
- Smoke DetectorCarbon Monoxide Detector

Get a consultation with our New Homes Expert
- See how your home builds wealth
- Plan your home-buying roadmap
- Discover hidden gems
Utility information
- Heating:
- Electric Heating
- Utilities:
- Electricity Available, Underground Utilities, Sewer Available, Water Available

Community details
Downtown Fausett
by David Patterson Homes, Dawsonville, GA
- 3 homes
- 1 plan
View Downtown Fausett details
Community amenities
- Sidewalks Available
More homes in Downtown Fausett
Floor plans in Downtown Fausett
About the builder - David Patterson Homes
Neighborhood
Home address
- City:
- Dawsonville
- County:
- Dawson
- Zip Code:
- 30534
Schools in Dawson County School District
GreatSchools’ Summary Rating calculation is based on 4 of the school’s themed ratings, including test scores, student/academic progress, college readiness, and equity. This information should only be used as a reference. Jome is not affiliated with GreatSchools and does not endorse or guarantee this information. Please reach out to schools directly to verify all information and enrollment eligibility. Data provided by GreatSchools.org © 2025
Places of interest
Getting around
Air quality
Natural hazards risk
Climate hazards can impact homes and communities, with risks varying by location. These scores reflect the potential impact of natural disasters and climate-related risks on Dawson County
Provided by FEMA

Considering this home?
Our expert will guide your tour, in-person or virtual
Need more information?
Text or call (888) 486-2818
Financials
Estimated monthly payment
Let us help you find your dream home
How many bedrooms are you looking for?
Similar homes nearby
Recently added communities in this area
Nearby communities in Dawsonville
New homes in nearby cities
More New Homes in Dawsonville, GA
Berkshire Hathaway HomeServices Georgia Properties, MLS 7675033
Some IDX listings have been excluded from this IDX display. Listings identified with the FMLS IDX logo come from FMLS and are held by brokerage firms other than the owner of this website. The listing brokerage is identified in any listing details. Information is deemed reliable but is not guaranteed. If you believe any FMLS listing contains material that infringes your copyrighted work please click here to review our DMCA policy and learn how to submit a takedown request. © 2025 First Multiple Listing Service, Inc.
Read moreLast checked Dec 19, 7:40 am
- Jome
- New homes search
- Georgia
- Atlanta Metropolitan Area
- Dawson County
- Dawsonville
- Downtown Fausett
- 19 Fausett Ln, Dawsonville, GA 30534
































