
























































































- 5 bd
- 3 ba
- 3,209 sqft
849 Lost Creek Pkwy, Dallas, GA 30132
- Single-Family
- $139.92/sqft
- $762/annual HOA
- 0.28-acre lot
New Homes for Sale Near 849 Lost Creek Pkwy, Dallas, GA 30132
About this Home
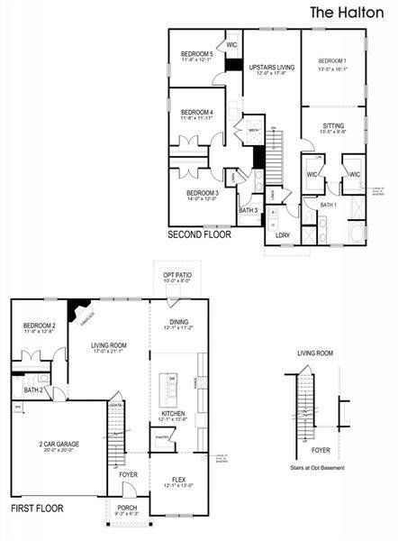
New construction two-story home at 839 Lost Creek Parkway is a 3,209 sq. ft Halton plan in Dallas, GA's Lost Creek community boasting of 5 bedrooms and 3 bathrooms, including a spectacular primary suite, quartz counter tops in kitchen & bath along with LVP flooring throughout the main including bathrooms. A spacious foyer leads you into the home with access to the stairs, a hallway leading into the living room and an entryway into the flex room at the front of the home. Through the flex room you'll enter a butler's pantry that acts as a pass-through--especially beneficial if the flex space is used as a dining room--and also provides access to the roomy walk-in pantry. The large kitchen feels boundless with seamless flow into the attached dining area and adjacent living room. Stainless-steel appliances, oversized island and bountiful counter space make the kitchen a chef's dream. A bedroom and full bathroom round out the main living area. At the top of the stairs is an additional living area. On one side, are three secondary bedrooms and a bathroom with double vanity and a linen closet. On the other side, the primary suite sprawls from the front of the home to the back, featuring a roomy bedroom with its own large sitting area, two expansive walk-in closets and a primary bathroom with double vanity, separate soaking tub and shower plus a water closet. A convenient laundry room rounds out the second floor. Contact us to learn more about your new home at 839 Lost Creek Parkway.
D.R. Horton Realty of Georgia Inc, MLS 7653251
May also be listed on the D.R. Horton website
Information last verified by Jome: Today at 2:12 AM (March 7, 2026)
Home details
- Property status:
- Sold
- Lot size (acres):
- 0.28
- Size:
- 3,209 sqft
- Stories:
- 2
- Beds:
- 5
- Baths:
- 3
- Garage spaces:
- 2
- Fence:
- No Fence
Construction details
- Builder Name:
- D.R. Horton
- Year Built:
- 2025
- Roof:
- Composition Roofing, Shingle Roofing
Home features & finishes
- Construction Materials:
- Cement
- Flooring:
- Vinyl FlooringCarpet Flooring
- Foundation Details:
- Slab
- Garage/Parking:
- GarageFront Entry Garage/ParkingAttached Garage
- Home amenities:
- Internet
- Interior Features:
- Ceiling-HighWalk-In ClosetCrown MoldingFoyerWalk-In PantryLoftSeparate ShowerDouble Vanity
- Kitchen:
- DishwasherMicrowave OvenDisposalGas CooktopKitchen IslandGas OvenKitchen Range
- Laundry facilities:
- Laundry Facilities On Upper LevelDryerUtility/Laundry Room
- Property amenities:
- BackyardSoaking TubLandscapingCabinetsPatioYardSmart Home SystemPorch
- Rooms:
- Flex RoomKitchenDining RoomFamily RoomLiving RoomOpen Concept FloorplanPrimary Bedroom Upstairs
- Security system:
- Fire Alarm SystemSmoke DetectorCarbon Monoxide Detector
Utility information
- Heating:
- Electric Heating, Heat Pump, Zoned Heating, Water Heater
- Utilities:
- Electricity Available, Natural Gas Available, Underground Utilities, Phone Available, Cable Available, Sewer Available, Water Available, High Speed Internet Access

Community details
Lost Creek
by D.R. Horton, Dallas, GA
- 9 homes
- 9 plans
- 1,618 - 3,209 sqft
View Lost Creek details
Community amenities
- Woods View
- Playground
- Club House
- Tennis Courts
- Community Pool
- Sidewalks Available
- Shopping Nearby
More homes in Lost Creek
- Home at address 1034 Lost Creek Pkwy, Dallas, GA 30132

$416,990
Under construction- 5 bd
- 3 ba
- 2,511 sqft
1034 Lost Creek Pkwy, Dallas, GA 30132
- Home at address 82 Buckthorn Wy, Dallas, GA 30132

$417,990
Move-in ready- 5 bd
- 3 ba
- 2,511 sqft
82 Buckthorn Wy, Dallas, GA 30132
- Home at address 1065 Lost Creek Pkwy, Dallas, GA 30132

$426,990
Move-in ready- 5 bd
- 3 ba
- 2,804 sqft
1065 Lost Creek Pkwy, Dallas, GA 30132
- Home at address 1022 Lost Creek Pkwy, Dallas, GA 30132

$431,990
Move-in ready- 5 bd
- 3 ba
- 2,804 sqft
1022 Lost Creek Pkwy, Dallas, GA 30132
Floor plans in Lost Creek
About the builder - D.R. Horton

- 1,182communities on Jome
- 10,253homes on Jome
Neighborhood
Home address
Schools in Paulding County School District
GreatSchools’ Summary Rating calculation is based on 4 of the school’s themed ratings, including test scores, student/academic progress, college readiness, and equity. This information should only be used as a reference. Jome is not affiliated with GreatSchools and does not endorse or guarantee this information. Please reach out to schools directly to verify all information and enrollment eligibility. Data provided by GreatSchools.org © 2025
Places of interest
Getting around
Air quality
Financials
Nearby communities in Dallas
Homes in Dallas by D.R. Horton
Recently added communities in this area
Other Builders in Dallas, GA
Nearby sold homes
New homes in nearby cities
More New Homes in Dallas, GA
D.R. Horton Realty of Georgia Inc, MLS 7653251
Some IDX listings have been excluded from this IDX display. Listings identified with the FMLS IDX logo come from FMLS and are held by brokerage firms other than the owner of this website. The listing brokerage is identified in any listing details. Information is deemed reliable but is not guaranteed. If you believe any FMLS listing contains material that infringes your copyrighted work please click here to review our DMCA policy and learn how to submit a takedown request. © 2025 First Multiple Listing Service, Inc.
Read moreLast checked Mar 7, 1:40 pm
- Jome
- New homes search
- Georgia
- Atlanta Metropolitan Area
- Paulding County
- Dallas
- Lost Creek
- 849 Lost Creek Pkwy, Dallas, GA 30132




































































