













Book your tour. Save an average of $18,473. We'll handle the rest.
We collect exclusive builder offers, book your tours, and support you from start to housewarming.
- Confirmed tours
- Get matched & compare top deals
- Expert help, no pressure
- No added fees
Estimated value based on Jome data, T&C apply





Why tour with Jome?
- No pressure toursTour at your own pace with no sales pressure
- Expert guidanceGet insights from our home buying experts
- Exclusive accessSee homes and deals not available elsewhere
Jome is featured in
- Single-Family
- Quick move-in
- $186.84/sqft
- 184 days on Jome
Home description
Available Now
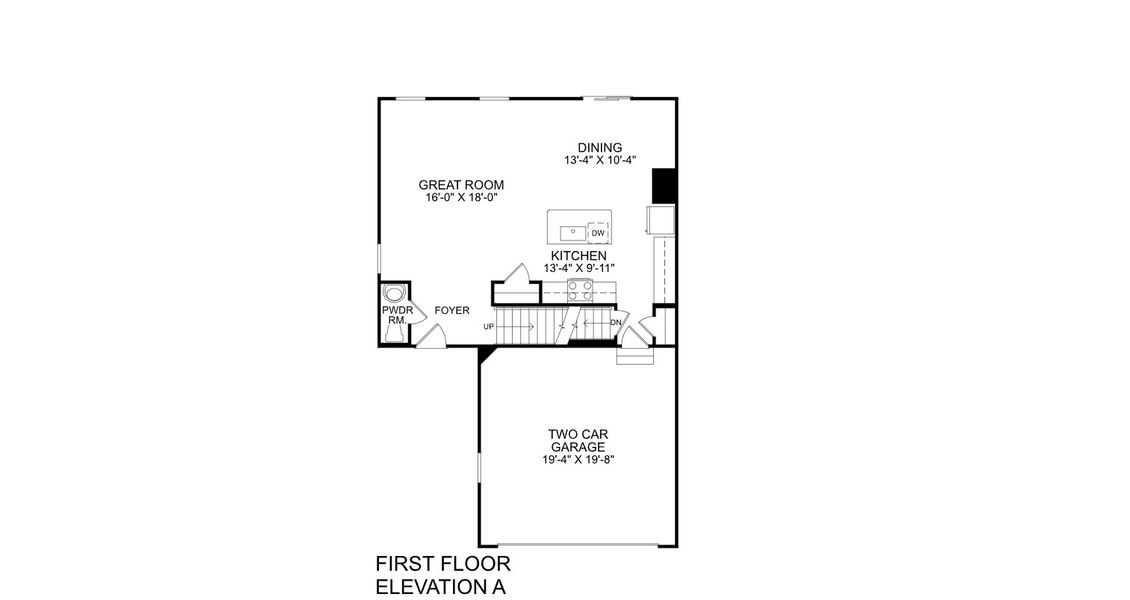
Welcome to our Lily Quick Move-In at 120 Acer Court – Aspen Meadows, where modern charm meets everyday convenience! This stunning home features rich Espresso Cabinets, upgraded with 36" upper kitchen cabinets for added storage and style, paired beautifully with gleaming granite countertops. The kitchen comes fully equipped with stainless steel appliances—including the refrigerator, washer, and dryer! The entire first level is finished with scratch-resistant and waterproof Luxury Vinyl Plank (LVP) flooring, perfect for pets, kids, and entertaining with ease. With spacious living areas, sunlit rooms, and sleek finishes throughout, the Lily offers a stylish and low-maintenance lifestyle in a vibrant community. Whether you're hosting friends or enjoying a quiet night in, this home is designed to impress and built to last!
May also be listed on the Ryan Homes website
Information last verified by Jome: Today at 1:30 AM (February 15, 2026)
Book your tour. Save an average of $18,473. We'll handle the rest.
We collect exclusive builder offers, book your tours, and support you from start to housewarming.
- Confirmed tours
- Get matched & compare top deals
- Expert help, no pressure
- No added fees
Estimated value based on Jome data, T&C apply
Home details
- Property status:
- Move-in ready
- Size:
- 1,900 sqft
- Beds:
- 4
- Baths:
- 2
- Half baths:
- 1
- Garage spaces:
- 2
Construction details
- Builder Name:
- Ryan Homes
- Completion Date:
- November, 2025
Home features & finishes
- Garage/Parking:
- GarageAttached Garage
- Interior Features:
- Walk-In ClosetFoyerPantry
- Kitchen:
- Kitchen Island
- Laundry facilities:
- Utility/Laundry Room
- Property amenities:
- Basement
- Rooms:
- KitchenPowder RoomDining RoomFamily RoomOpen Concept FloorplanPrimary Bedroom Upstairs

Get a consultation with our New Homes Expert
- See how your home builds wealth
- Plan your home-buying roadmap
- Discover hidden gems

Community details
Aspen Meadows
by Ryan Homes, Hampton, GA
- 3 homes
- 6 plans
- 1,307 - 2,275 sqft
View Aspen Meadows details
More homes in Aspen Meadows
- Home at address 124 Acer Ct, Hampton, GA 30228

Marigold
$369,990
- 4 bd
- 2.5 ba
- 2,134 sqft
124 Acer Ct, Hampton, GA 30228
- Home at address 904 Inman Ave, Hampton, GA 30228

Marigold
$369,990
- 4 bd
- 2.5 ba
- 2,134 sqft
904 Inman Ave, Hampton, GA 30228
Floor plans in Aspen Meadows
About the builder - Ryan Homes
Neighborhood
Home address
Schools in Henry County School District
GreatSchools’ Summary Rating calculation is based on 4 of the school’s themed ratings, including test scores, student/academic progress, college readiness, and equity. This information should only be used as a reference. Jome is not affiliated with GreatSchools and does not endorse or guarantee this information. Please reach out to schools directly to verify all information and enrollment eligibility. Data provided by GreatSchools.org © 2025
Places of interest
Getting around
Air quality

Considering this home?
Our expert will guide your tour, in-person or virtual
Need more information?
Text or call (888) 486-2818
Financials
Estimated monthly payment
Let us help you find your dream home
How many bedrooms are you looking for?
Similar homes nearby
Recently added communities in this area
Nearby communities in Hampton
New homes in nearby cities
More New Homes in Hampton, GA
- Jome
- New homes search
- Georgia
- Atlanta Metropolitan Area
- Henry County
- Hampton
- Aspen Meadows
- 120 Acer Ct, Hampton, GA 30228






























