





















- 4 bd
- 2.5 ba
- 1,660 sqft
116 Acer Ct, Hampton, GA 30228
- Single-Family
- $201.8/sqft
- 207 days on Jome
New Homes for Sale Near 116 Acer Ct, Hampton, GA 30228
About this Home
Available Now
READY FOR MOVE-IN JANUARY 2026
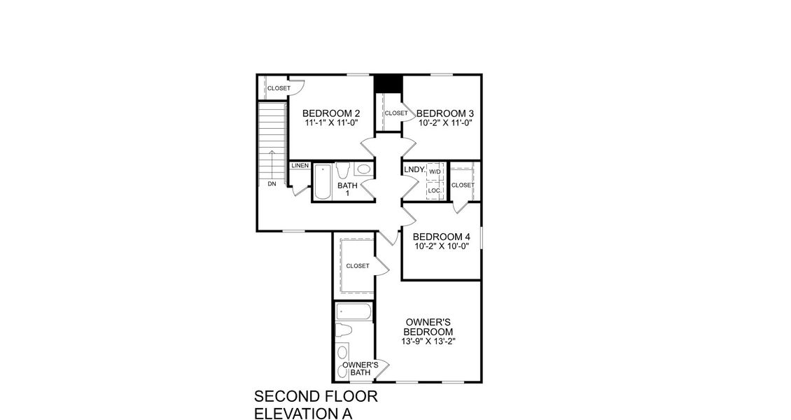
Experience elevated living in this exquisitely designed Iris Floorplan by Ryan Homes, nestled in the prestigious Aspen Meadows community. Boasting 1,660 SQFT of thoughtfully curated space, this elegant residence features 4 spacious bedrooms, 2.5 baths, and a two-car garage, all crafted with modern sophistication. The open-concept layout flows seamlessly into a gourmet kitchen adorned with granite countertops, premium stainless-steel appliances, and crisp white cabinetry, centered around a generous island with bar seating—perfect for hosting and everyday luxury. Rich, 100% waterproof LVP flooring extends throughout the main living areas, bathrooms, and laundry room, offering both durability and style. The expansive owner's suite is a private retreat, complete with a walk-in closet and spa-inspired bath. With energy-efficient construction, ample storage, and striking curb appeal, this home is the perfect blend of comfort and refinement in a vibrant, growing neighborhood.
May also be listed on the Ryan Homes website
Information last verified by Jome: Tuesday at 1:30 AM (February 3, 2026)
Home details
- Property status:
- Sold
- Size:
- 1,660 sqft
- Beds:
- 4
- Baths:
- 2
- Half baths:
- 1
- Garage spaces:
- 2
Construction details
- Builder Name:
- Ryan Homes
- Completion Date:
- January, 2026
Home features & finishes
- Garage/Parking:
- Garage

Community details
Aspen Meadows
by Ryan Homes, Hampton, GA
- 3 homes
- 6 plans
- 1,307 - 2,275 sqft
View Aspen Meadows details
More homes in Aspen Meadows
- Home at address 120 Acer Ct, Hampton, GA 30228

$329,990
Move-in ready- 4 bd
- 2.5 ba
- 1,900 sqft
120 Acer Ct, Hampton, GA 30228
- Home at address 124 Acer Ct, Hampton, GA 30228

$349,990
Move-in ready- 4 bd
- 2.5 ba
- 2,134 sqft
124 Acer Ct, Hampton, GA 30228
- Home at address 904 Inman Ave, Hampton, GA 30228

$349,990
Move-in ready- 4 bd
- 2.5 ba
- 2,134 sqft
904 Inman Ave, Hampton, GA 30228
Floor plans in Aspen Meadows
About the builder - Ryan Homes
Neighborhood
Home address
Schools in Henry County School District
GreatSchools’ Summary Rating calculation is based on 4 of the school’s themed ratings, including test scores, student/academic progress, college readiness, and equity. This information should only be used as a reference. Jome is not affiliated with GreatSchools and does not endorse or guarantee this information. Please reach out to schools directly to verify all information and enrollment eligibility. Data provided by GreatSchools.org © 2025
Places of interest
Getting around
Air quality
Financials
Nearby communities in Hampton
Homes in Hampton by Ryan Homes
Recently added communities in this area
Other Builders in Hampton, GA
Nearby sold homes
New homes in nearby cities
More New Homes in Hampton, GA
- Jome
- New homes search
- Georgia
- Atlanta Metropolitan Area
- Henry County
- Hampton
- Aspen Meadows
- 116 Acer Ct, Hampton, GA 30228

































































