









Book your tour. Save an average of $18,473. We'll handle the rest.
We collect exclusive builder offers, book your tours, and support you from start to housewarming.
- Confirmed tours
- Get matched & compare top deals
- Expert help, no pressure
- No added fees
Estimated value based on Jome data, T&C apply












- 3 bd
- 2 ba
- 1,811 sqft
242 Strawberry Ln, Woodstock, GA 30189
Why tour with Jome?
- No pressure toursTour at your own pace with no sales pressure
- Expert guidanceGet insights from our home buying experts
- Exclusive accessSee homes and deals not available elsewhere
Jome is featured in
- Single-Family
- Quick move-in
- $309.22/sqft
- $295/monthly HOA
Home description
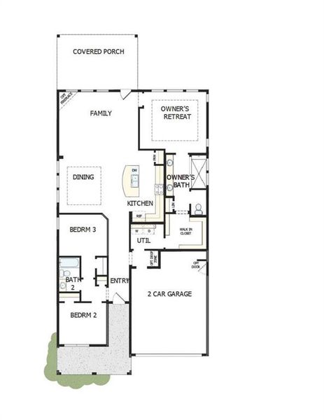
The Octavia by David Weekley Homes in Maple Grove at Towne Lake offers a great mix of classic style and everyday comfort.
From the moment you walk up to the covered front porch, it makes a strong first impression that carries throughout the home. Inside, you’ll find bright, open living spaces with 11 foot ceilings that add to the open, airy feel. This ranch style layout features 3 bedrooms and 2 bathrooms.
The kitchen sits right at the center of the home, making it perfect for everything from weeknight dinners to hosting friends and family.
The Owner’s Retreat is tucked away for privacy and includes a modern en suite bathroom with a super shower and a spacious walk in closet.
A flexible study has been converted into a third bedroom, and along with the additional secondary bedroom, both are conveniently located near the second full bathroom. These spaces work well for guests, a home office, or whatever fits your lifestyle.
Out back, the extended covered patio gives you even more room to relax or entertain year round.
Reach out to the David Weekley Homes at Towne Lake team to learn more about this home in Woodstock and schedule a tour.
Weekley Homes Realty, MLS 7717004
May also be listed on the David Weekley Homes website
Information last verified by Jome: Today at 1:40 PM (April 19, 2026)
Home highlights
Home of the Atlanta Braves with modern ballpark vibes, dining, and housing in the vibrant Battery Atlanta district.
Book your tour. Save an average of $18,473. We'll handle the rest.
We collect exclusive builder offers, book your tours, and support you from start to housewarming.
- Confirmed tours
- Get matched & compare top deals
- Expert help, no pressure
- No added fees
Estimated value based on Jome data, T&C apply
Home details
- Property status:
- Move-in ready
- Size:
- 1,811 sqft
- Stories:
- 1
- Beds:
- 3
- Baths:
- 2
- Garage spaces:
- 2
- Fence:
- No Fence
- HERS index:
- 58
Construction details
- Builder Name:
- David Weekley Homes
- Completion Date:
- November, 2025
- Year Built:
- 2025
- Roof:
- Composition Roofing, Shingle Roofing
Home features & finishes
- Cooling:
- Central Air
- Flooring:
- Laminate FlooringCarpet Flooring
- Foundation Details:
- Slab
- Garage/Parking:
- Door OpenerGarageFront Entry Garage/ParkingAttached Garage
- Home amenities:
- HERS CertifiedGreen Construction
- Interior Features:
- Ceiling-HighWalk-In ClosetPantryDouble Vanity
- Kitchen:
- DishwasherMicrowave OvenOvenGas CooktopKitchen IslandGas Oven
- Laundry facilities:
- Laundry Facilities In HallLaundry Facilities On Main LevelUtility/Laundry Room
- Property amenities:
- BackyardYard
- Rooms:
- Primary Bedroom On MainKitchenOffice/StudyDining RoomFamily RoomOpen Concept FloorplanPrimary Bedroom Downstairs
- Security system:
- Smoke Detector

Get a consultation with our New Homes Expert
- See how your home builds wealth
- Plan your home-buying roadmap
- Discover hidden gems
Utility information
- Heating:
- Water Heater, Gas Heating, Tankless water heater
- Sewer:
- Public Sewer
- Utilities:
- Electricity Available, Natural Gas Available, Underground Utilities, Phone Available, HVAC, Cable Available, Sewer Available, Water Available
- Water source:
- Public

Community details
Maple Grove at Towne Lake
by David Weekley Homes, Woodstock, GA
- 5 homes
- 7 plans
- 1,602 - 2,301 sqft
View Maple Grove at Towne Lake details
Community amenities
- Woods View
- Gated Community
- Community Pool
- Sidewalks Available
- Pickleball Court
- Meeting Space
More homes in Maple Grove at Towne Lake
- Home at address 263 Strawberry Ln, Woodstock, GA 30189

The Stillhouse
$649,415
- 3 bd
- 2 ba
- 2,287 sqft
263 Strawberry Ln, Woodstock, GA 30189
- Home at address 259 Strawberry Ln, Woodstock, GA 30189

The Stillhouse
$654,971
- 3 bd
- 2 ba
- 2,301 sqft
259 Strawberry Ln, Woodstock, GA 30189
- Home at address 266 Strawberry Ln, Woodstock, GA 30189

The Ridgeford
$666,846
- 3 bd
- 2.5 ba
- 2,118 sqft
266 Strawberry Ln, Woodstock, GA 30189
- Home at address 275 Strawberry Ln, Woodstock, GA 30189

The Stillhouse
$667,028
- 3 bd
- 2 ba
- 2,301 sqft
275 Strawberry Ln, Woodstock, GA 30189
Floor plans in Maple Grove at Towne Lake
About the builder - David Weekley Homes

- 358communities on Jome
- 1,511homes on Jome
Neighborhood
Home address
Schools in Cherokee County School District
GreatSchools’ Summary Rating calculation is based on 4 of the school’s themed ratings, including test scores, student/academic progress, college readiness, and equity. This information should only be used as a reference. Jome is not affiliated with GreatSchools and does not endorse or guarantee this information. Please reach out to schools directly to verify all information and enrollment eligibility. Data provided by GreatSchools.org © 2025
Places of interest
Getting around
Air quality
Noise level
A Soundscore™ rating is a number between 50 (very loud) and 100 (very quiet) that tells you how loud a location is due to environmental noise.

Considering this home?
Our expert will guide your tour, in-person or virtual
Need more information?
Text or call (888) 545-5198
Financials
Estimated monthly payment
Let us help you find your dream home
How many bedrooms are you looking for?
Similar homes nearby
Recently added communities in this area
Nearby communities in Woodstock
New homes in nearby cities
More New Homes in Woodstock, GA
Weekley Homes Realty, MLS 7717004
Some IDX listings have been excluded from this IDX display. Listings identified with the FMLS IDX logo come from FMLS and are held by brokerage firms other than the owner of this website. The listing brokerage is identified in any listing details. Information is deemed reliable but is not guaranteed. If you believe any FMLS listing contains material that infringes your copyrighted work please click here to review our DMCA policy and learn how to submit a takedown request. © 2025 First Multiple Listing Service, Inc.
Read moreLast checked Apr 19, 1:40 pm
- Jome
- New homes search
- Georgia
- Atlanta Metropolitan Area
- Cherokee County
- Woodstock
- Maple Grove at Towne Lake
- 242 Strawberry Ln, Woodstock, GA 30189






























