














Book your tour. Save an average of $18,473. We'll handle the rest.
- Confirmed tours
- Get matched & compare top deals
- Expert help, no pressure
- No added fees
Estimated value based on Jome data, T&C apply

- 3 bd
- 2 ba
- 1,770 sqft
110 Fort Gibson Ct, Waleska, GA 30183
Why tour with Jome?
- No pressure toursTour at your own pace with no sales pressure
- Expert guidanceGet insights from our home buying experts
- Exclusive accessSee homes and deals not available elsewhere
Jome is featured in
- Single-Family
- Quick move-in
- $282.43/sqft
- $2,700/annual HOA
Home description
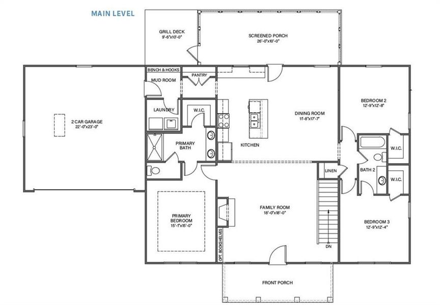
Amazing Opportunity! Model Home Now For Sale!! True Ranch Plan. Live and play in a community voted TOP BEST 100 PLACES TO LIVE! Great True Ranch Plan with Charming Covered Front Porch on Full Unfinished Basement! 3 Bedrooms 2 Bath Open Floor Plan, Rear Covered Deck with Beautiful Wooded Mountain Views, Gourmet Kitchen with Granite Counters and Loads of Cabinet Space. Private Master Suite with Double Vanity, Walk In Closet and Spacious Shower.
Atlanta Communities, MLS 7658744
Information last verified by Jome: Today at 2:27 AM (December 30, 2025)
Home highlights
Book your tour. Save an average of $18,473. We'll handle the rest.
We collect exclusive builder offers, book your tours, and support you from start to housewarming.
- Confirmed tours
- Get matched & compare top deals
- Expert help, no pressure
- No added fees
Estimated value based on Jome data, T&C apply
Home details
- Property status:
- Move-in ready
- Lot size (acres):
- 0.38
- Size:
- 1,770 sqft
- Stories:
- 1
- Beds:
- 3
- Baths:
- 2
- Garage spaces:
- 2
- Fence:
- No Fence
- Facing direction:
- South
Construction details
- Year Built:
- 2025
- Roof:
- Composition Roofing
Home features & finishes
- Construction Materials:
- CementStone
- Cooling:
- Ceiling Fan(s)Central Air
- Flooring:
- Vinyl FlooringCarpet Flooring
- Foundation Details:
- Slab
- Garage/Parking:
- Door OpenerGarageFront Entry Garage/ParkingAttached Garage
- Home amenities:
- Internet
- Interior Features:
- Ceiling-HighCeiling-VaultedWalk-In ClosetPantryDouble Vanity
- Kitchen:
- DishwasherMicrowave OvenDisposalGranite countertopKitchen CountertopKitchen IslandKitchen Range
- Laundry facilities:
- DryerLaundry Facilities On Main LevelUtility/Laundry Room
- Property amenities:
- ShowerDeckBackyardLandscapingCabinetsFireplaceYardPorch
- Rooms:
- AtticPrimary Bedroom On MainKitchenFamily RoomOpen Concept FloorplanPrimary Bedroom Downstairs
- Security system:
- Smoke DetectorCarbon Monoxide Detector

Get a consultation with our New Homes Expert
- See how your home builds wealth
- Plan your home-buying roadmap
- Discover hidden gems
Utility information
- Heating:
- Electric Heating, Heat Pump, Water Heater, Central Heating
- Utilities:
- Electricity Available, Underground Utilities, Phone Available, Cable Available, Sewer Available, Water Available, High Speed Internet Access
Community amenities
- Marina
- Woods View
- Dog Park
- Golf Course
- Tennis Courts
- Gated Community
- Community Pool
- Mountain(s) View
Neighborhood
Home address
Schools in Cherokee County School District
GreatSchools’ Summary Rating calculation is based on 4 of the school’s themed ratings, including test scores, student/academic progress, college readiness, and equity. This information should only be used as a reference. Jome is not affiliated with GreatSchools and does not endorse or guarantee this information. Please reach out to schools directly to verify all information and enrollment eligibility. Data provided by GreatSchools.org © 2025
Places of interest
Getting around
Air quality
Natural hazards risk
Climate hazards can impact homes and communities, with risks varying by location. These scores reflect the potential impact of natural disasters and climate-related risks on Cherokee County
Provided by FEMA

Considering this home?
Our expert will guide your tour, in-person or virtual
Need more information?
Text or call (888) 486-2818
Financials
Let us help you find your dream home
How many bedrooms are you looking for?
Similar homes nearby
Recently added communities in this area
Nearby communities in Waleska
New homes in nearby cities
More New Homes in Waleska, GA
Atlanta Communities, MLS 7658744
Some IDX listings have been excluded from this IDX display. Listings identified with the FMLS IDX logo come from FMLS and are held by brokerage firms other than the owner of this website. The listing brokerage is identified in any listing details. Information is deemed reliable but is not guaranteed. If you believe any FMLS listing contains material that infringes your copyrighted work please click here to review our DMCA policy and learn how to submit a takedown request. © 2025 First Multiple Listing Service, Inc.
Read moreLast checked Dec 30, 7:40 pm
- Jome
- New homes search
- Georgia
- Cherokee County
- Waleska
- 110 Fort Gibson Ct, Waleska, GA 30183
























