









Book your tour. Save an average of $18,473. We'll handle the rest.
We collect exclusive builder offers, book your tours, and support you from start to housewarming.
- Confirmed tours
- Get matched & compare top deals
- Expert help, no pressure
- No added fees
Estimated value based on Jome data, T&C apply





















- 3 bd
- 2.5 ba
- 2,232 sqft
101 Marion Dr, Cartersville, GA 30120
Why tour with Jome?
- No pressure toursTour at your own pace with no sales pressure
- Expert guidanceGet insights from our home buying experts
- Exclusive accessSee homes and deals not available elsewhere
Jome is featured in
- Single-Family
- Quick move-in
- $164.87/sqft
- $500/annual HOA
Home description
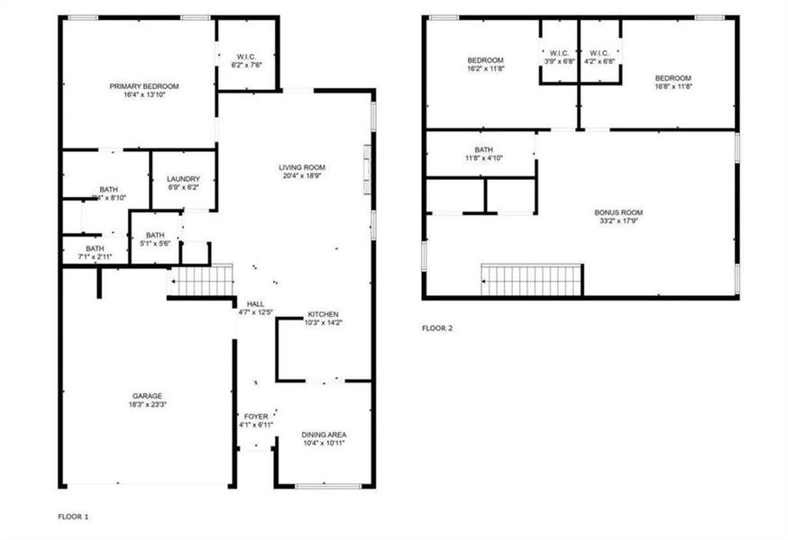
Welcome to this beautiful three-bedroom home situated on a rare double lot. The home boasts many upgrades. With three bedrooms, 2 1/2 baths, located in a desirable subdivision, with a fully fenced yard. The property offers the largest yard in the neighborhood, where there’s space for outdoor living, playing, and entertaining. Inside, you can find a bright open concept with 9-foot ceiling on both levels. Luxury, plank flooring on the main level, while the upstairs is fully carpeted*. The kitchen is equipped with granite countertops, upgraded cabinetry, a pantry, and a peninsula island for all your casual dining or entertaining, which overlooks a spacious family room with a built-in electric fireplace, nearby laundry room, and easy access to the covered patio with your new expansive backyard. The owner's suite, situated on the main level, offers a walk-in closet and a large, upgraded tile shower. Upstairs includes two additional closets in the hall for storage, two more bedrooms with deep closets, and a full-size bath with ample storage. The flexible loft would make a great MEDIA room or extra play area for the kids! Additional highlights include upgraded lighted fixtures with modern finishes throughout. Located in a growing community with nearby schools, parks, and amenities. Move-in ready, this home blends comfort and style while remaining totally functional. Don’t miss this rare opportunity for this DOUBLE LOT home. Schedule your showing today.
Vineyard Real Estate Group, MLS 7671469
Information last verified by Jome: Today at 2:04 AM (April 21, 2026)
Home highlights
Home of the Atlanta Braves with modern ballpark vibes, dining, and housing in the vibrant Battery Atlanta district.
Book your tour. Save an average of $18,473. We'll handle the rest.
We collect exclusive builder offers, book your tours, and support you from start to housewarming.
- Confirmed tours
- Get matched & compare top deals
- Expert help, no pressure
- No added fees
Estimated value based on Jome data, T&C apply
Home details
- Property status:
- Move-in ready
- Lot size (acres):
- 0.23
- Size:
- 2,232 sqft
- Stories:
- 2
- Beds:
- 3
- Baths:
- 2
- Half baths:
- 1
- Garage spaces:
- 2
- Fence:
- Wood Fence, Privacy Fence
- Facing direction:
- North
Construction details
- Roof:
- Shingle Roofing
Home features & finishes
- Cooling:
- Central Air
- Flooring:
- Vinyl FlooringCarpet FlooringTile Flooring
- Foundation Details:
- Concrete Perimeter
- Garage/Parking:
- GarageAttached Garage
- Interior Features:
- Ceiling-HighWalk-In ClosetFoyerPantryBreakfast BarDouble Vanity
- Kitchen:
- DishwasherMicrowave OvenOvenDisposalGranite countertopKitchen CountertopKitchen IslandKitchen RangeDouble OvenElectric Oven
- Laundry facilities:
- Laundry Facilities On Main LevelUtility/Laundry Room
- Lighting:
- Lighting
- Property amenities:
- BarShowerBackyardCabinetsElectric FireplacePatioFireplaceYardPorch
- Rooms:
- AtticBonus RoomPrimary Bedroom On MainKitchenOffice/StudyDining RoomFamily RoomLiving RoomOpen Concept FloorplanSeparate Living and DiningPrimary Bedroom Downstairs
- Security system:
- Smoke Detector

Get a consultation with our New Homes Expert
- See how your home builds wealth
- Plan your home-buying roadmap
- Discover hidden gems
Utility information
- Heating:
- Central Heating
- Sewer:
- Public Sewer
- Utilities:
- Electricity Available, Underground Utilities, Phone Available, Cable Available, Sewer Available, Water Available
- Water source:
- Public
Community amenities
- Sidewalks Available
- Greenbelt View
- Shopping Nearby
Neighborhood
Home address
- City:
- Cartersville
- County:
- Bartow
- Zip Code:
- 30120
Schools in Bartow County School District
GreatSchools’ Summary Rating calculation is based on 4 of the school’s themed ratings, including test scores, student/academic progress, college readiness, and equity. This information should only be used as a reference. Jome is not affiliated with GreatSchools and does not endorse or guarantee this information. Please reach out to schools directly to verify all information and enrollment eligibility. Data provided by GreatSchools.org © 2025
Places of interest
Getting around
Air quality
Noise level
A Soundscore™ rating is a number between 50 (very loud) and 100 (very quiet) that tells you how loud a location is due to environmental noise.
Natural hazards risk
Provided by FEMA

Considering this home?
Our expert will guide your tour, in-person or virtual
Need more information?
Text or call (888) 545-5198
Financials
Estimated monthly payment
Let us help you find your dream home
How many bedrooms are you looking for?
Similar homes nearby
Recently added communities in this area
Nearby communities in Cartersville
New homes in nearby cities
More New Homes in Cartersville, GA
Vineyard Real Estate Group, MLS 7671469
Some IDX listings have been excluded from this IDX display. Listings identified with the FMLS IDX logo come from FMLS and are held by brokerage firms other than the owner of this website. The listing brokerage is identified in any listing details. Information is deemed reliable but is not guaranteed. If you believe any FMLS listing contains material that infringes your copyrighted work please click here to review our DMCA policy and learn how to submit a takedown request. © 2025 First Multiple Listing Service, Inc.
Read moreLast checked Apr 21, 7:40 am
- Jome
- New homes search
- Georgia
- Atlanta Metropolitan Area
- Bartow County
- Cartersville
- 101 Marion Dr, Cartersville, GA 30120



























