


























- 5 bd
- 4 ba
- 3,373 sqft
200 Dawson Dr, Woodstock, GA 30188
- Townhouse
- $266.8/sqft
- 0.08-acre lot
- 222 days on Jome
New Homes for Sale Near 200 Dawson Dr, Woodstock, GA 30188
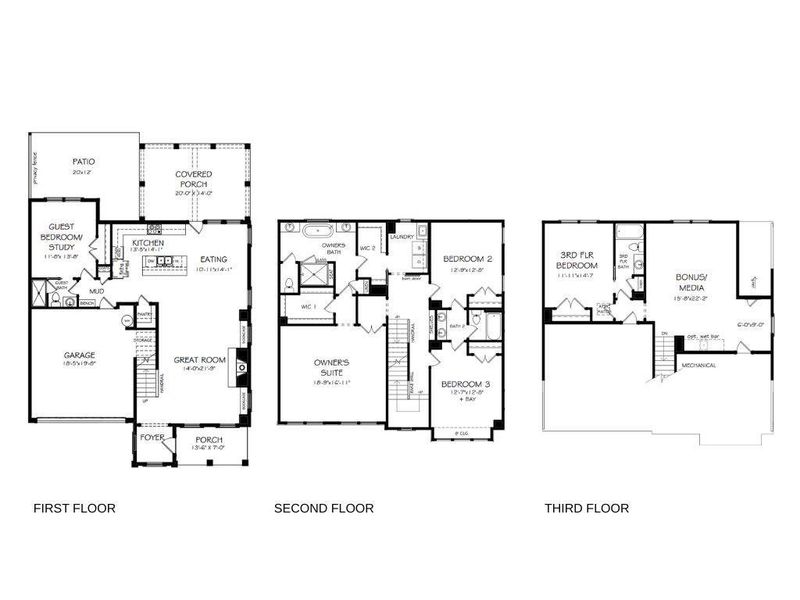
About this Home
The Baymont Paired Home Plan by JW Collection founded by John Wieland! Just released in South on Main, The Atlanta Home Builder's Association's "Community of the Year" for 2023!!! You start off with a beautiful lot that overlooks our fabulous clubhouse and will have a fenced in side yard to enjoy all the wonderful outdoor space. It also has open living space for all your entertaining needs. A nice outdoor patio and covered porch off of your well-appointed kitchen! This home is only attached on the side so you will enjoy lots of extra windows on 3 sides of the home! The kitchen has beautiful cabinets that go all the way to the top of the 10' ceilings. And EVERY cabinet in this home is soft close! The island is spacious and comes equipped with a double trash pullout, sink and dishwasher. Of course there are lots of beautiful quartz cabinets to choose from because you will get to completely customize the interior of your home. Enjoy the wood shelving in your walk in pantry. The stained hardwoods are on the entire main level and stairs to the owner's suite. Gleaming stainless steel appliances and tile to the ceiling behind your vent hood over your gas stove. And what home would be cozy without a fireplace with gas logs, built ins and bookcases in the great room. Well, you get that too! The owner's suite has so much extra space you just have to relax at the end of a long day. The owner's bath is a spa experience with a free standing soaking tub, large shower with bench, shampoo niche, frameless door and tile all the way to the ceiling. In fact it does not matter which bath you see, they all have tile to the ceiling, undermount sinks and quartz countertops. Enter from your garage to a mud room with bench, cubbies and hooks. And just wait until you see this laundry. right across from your bedrooms! You can also use that side patio for grilling, and a wonderful front porch, again to enjoy the outdoor lifestyle. South on Main is located less than a half mile from downtown Woodstock. We have a beautiful 6000 sq. ft. clubhouse with a full fitness center. A pool with a cabana, an outdoor play area, 2 dog parks, a community garden, a community firepit for gatherings, and an extensive outdoor pavilion (The Shed) for outdoor gatherings and events with a full amphitheater and stage. We have an Activities Director, to create exciting ways for our active community to get out and enjoy all it has to offer. We connect to the Noonday Creek Trail which is part of the Greenprint trail system that includes approximately 60 miles and biking trails. Come by and let us show you all we have to offer at South on Main!!! THIS HOME IS BEING BUILT! THE PICTURES ARE OF ANOTHER HOME THAT IS SIMULAR IN THE NEIGHBORHOOD.
JW Collection Brokers, LLC., MLS 7570714
May also be listed on the John Wieland website
Information last verified by Jome: Today at 2:11 AM (December 8, 2025)
Home details
- Property status:
- Sold
- Lot size (acres):
- 0.08
- Size:
- 3,373 sqft
- Stories:
- 3+
- Beds:
- 5
- Baths:
- 4
- Garage spaces:
- 2
- Fence:
- Wood Fence
Construction details
- Builder Name:
- John Wieland
- Year Built:
- 2025
- Roof:
- Shingle Roofing
Home features & finishes
- Construction Materials:
- CementBrick
- Cooling:
- Ceiling Fan(s)Central Air
- Flooring:
- Carpet FlooringHardwood Flooring
- Foundation Details:
- Slab
- Garage/Parking:
- Door OpenerGarageFront Entry Garage/ParkingAttached Garage
- Home amenities:
- Internet
- Interior Features:
- Ceiling-HighWalk-In ClosetCrown MoldingFoyerBuilt-in BookshelvesBreakfast BarWalk-In PantryLoftSeparate ShowerDouble Vanity
- Kitchen:
- DishwasherMicrowave OvenDisposalGas CooktopElectric Oven
- Laundry facilities:
- Laundry Facilities On Upper LevelUtility/Laundry Room
- Lighting:
- Lighting
- Property amenities:
- BarGas Log FireplaceBackyardSoaking TubCabinetsPatioFireplaceYardPorch
- Rooms:
- KitchenGame RoomMedia RoomFamily Room
- Security system:
- Smoke DetectorCarbon Monoxide Detector
Utility information
- Heating:
- Zoned Heating, Gas Heating, Forced Air Heating
- Utilities:
- Electricity Available, Natural Gas Available, Underground Utilities, Cable Available, Sewer Available, Water Available, High Speed Internet Access
Community amenities
- Dog Park
- Playground
- Fitness Center/Exercise Area
- Club House
- Community Pool
- Sidewalks Available
- Walking, Jogging, Hike Or Bike Trails
- Meeting Space
- Shopping Nearby
About the builder - John Wieland
Neighborhood
Home address
Schools in Cherokee County School District
GreatSchools’ Summary Rating calculation is based on 4 of the school’s themed ratings, including test scores, student/academic progress, college readiness, and equity. This information should only be used as a reference. Jome is not affiliated with GreatSchools and does not endorse or guarantee this information. Please reach out to schools directly to verify all information and enrollment eligibility. Data provided by GreatSchools.org © 2025
Places of interest
Getting around
Air quality
Noise level
A Soundscore™ rating is a number between 50 (very loud) and 100 (very quiet) that tells you how loud a location is due to environmental noise.
Natural hazards risk
Climate hazards can impact homes and communities, with risks varying by location. These scores reflect the potential impact of natural disasters and climate-related risks on Cherokee County
Provided by FEMA
Financials
Nearby communities in Woodstock
Recently added communities in this area
Other Builders in Woodstock, GA
Nearby sold homes
New homes in nearby cities
More New Homes in Woodstock, GA
JW Collection Brokers, LLC., MLS 7570714
Some IDX listings have been excluded from this IDX display. Listings identified with the FMLS IDX logo come from FMLS and are held by brokerage firms other than the owner of this website. The listing brokerage is identified in any listing details. Information is deemed reliable but is not guaranteed. If you believe any FMLS listing contains material that infringes your copyrighted work please click here to review our DMCA policy and learn how to submit a takedown request. © 2025 First Multiple Listing Service, Inc.
Read moreLast checked Dec 8, 7:40 am
- Home
- New homes
- Georgia
- Atlanta Metropolitan Area
- Cherokee County
- Woodstock
- 200 Dawson Dr, Woodstock, GA 30188
















































